← London Borough of Hillingdon

Status

Refusal House extension
Received
13 Jan 2025
New homes
0

Summary

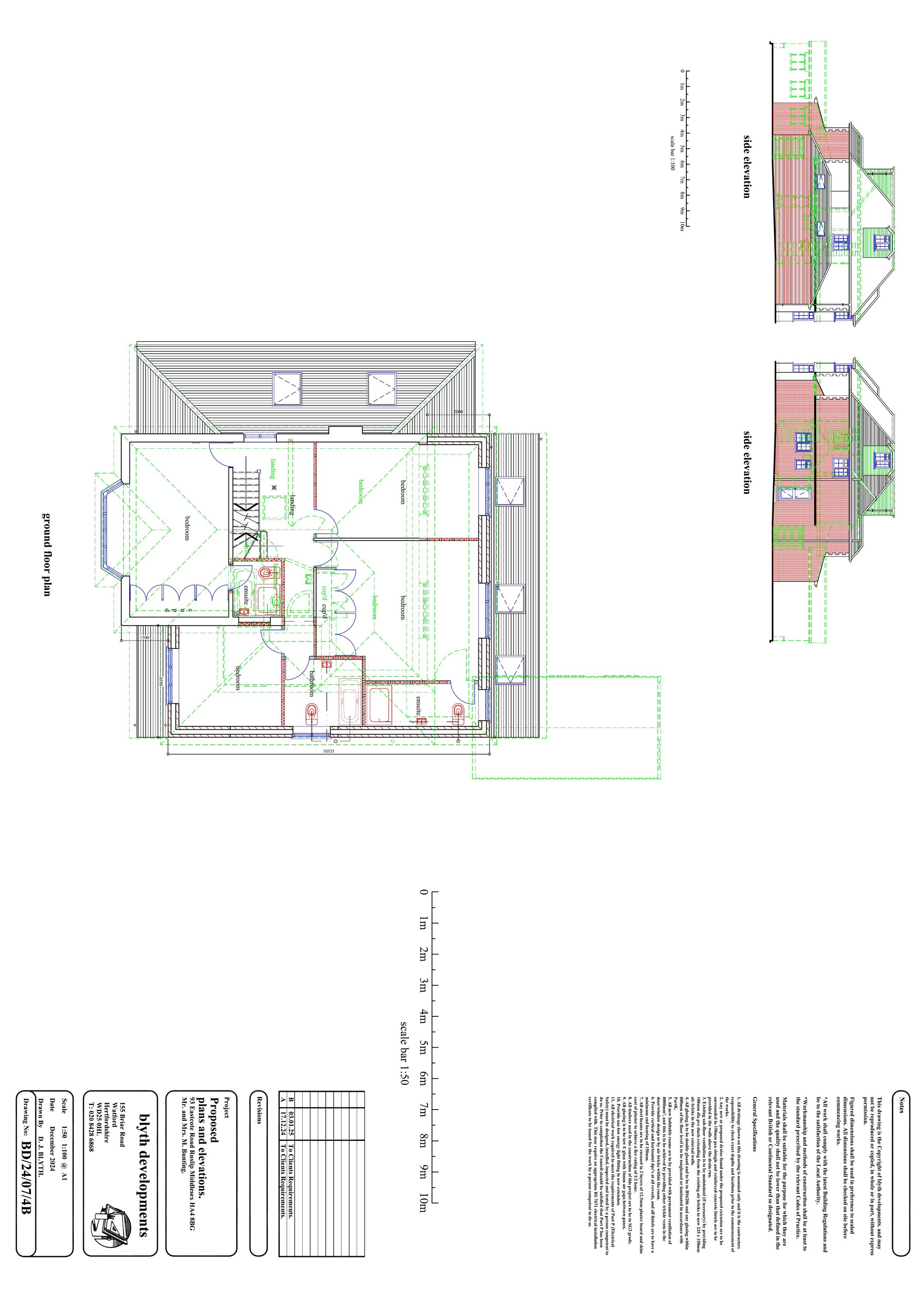
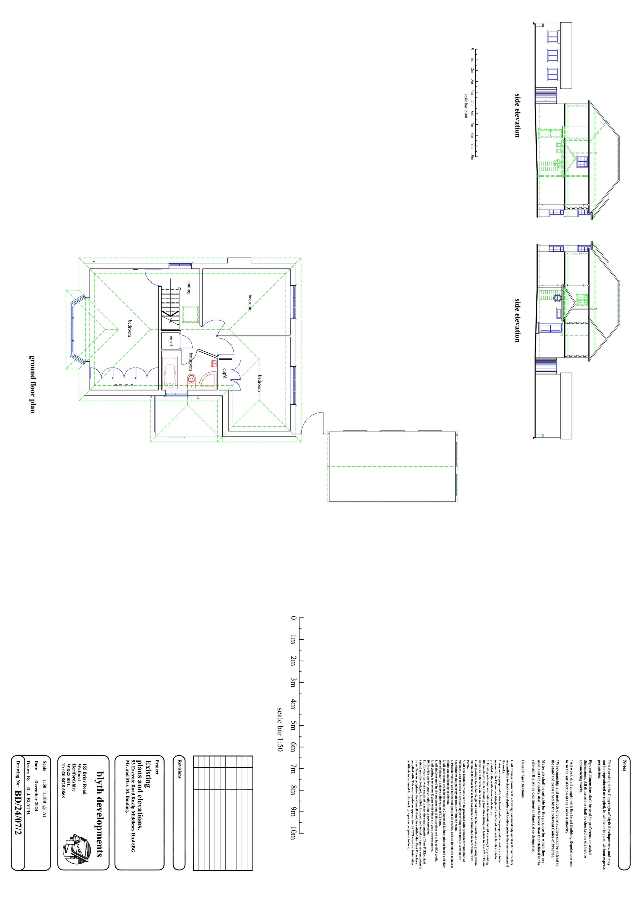
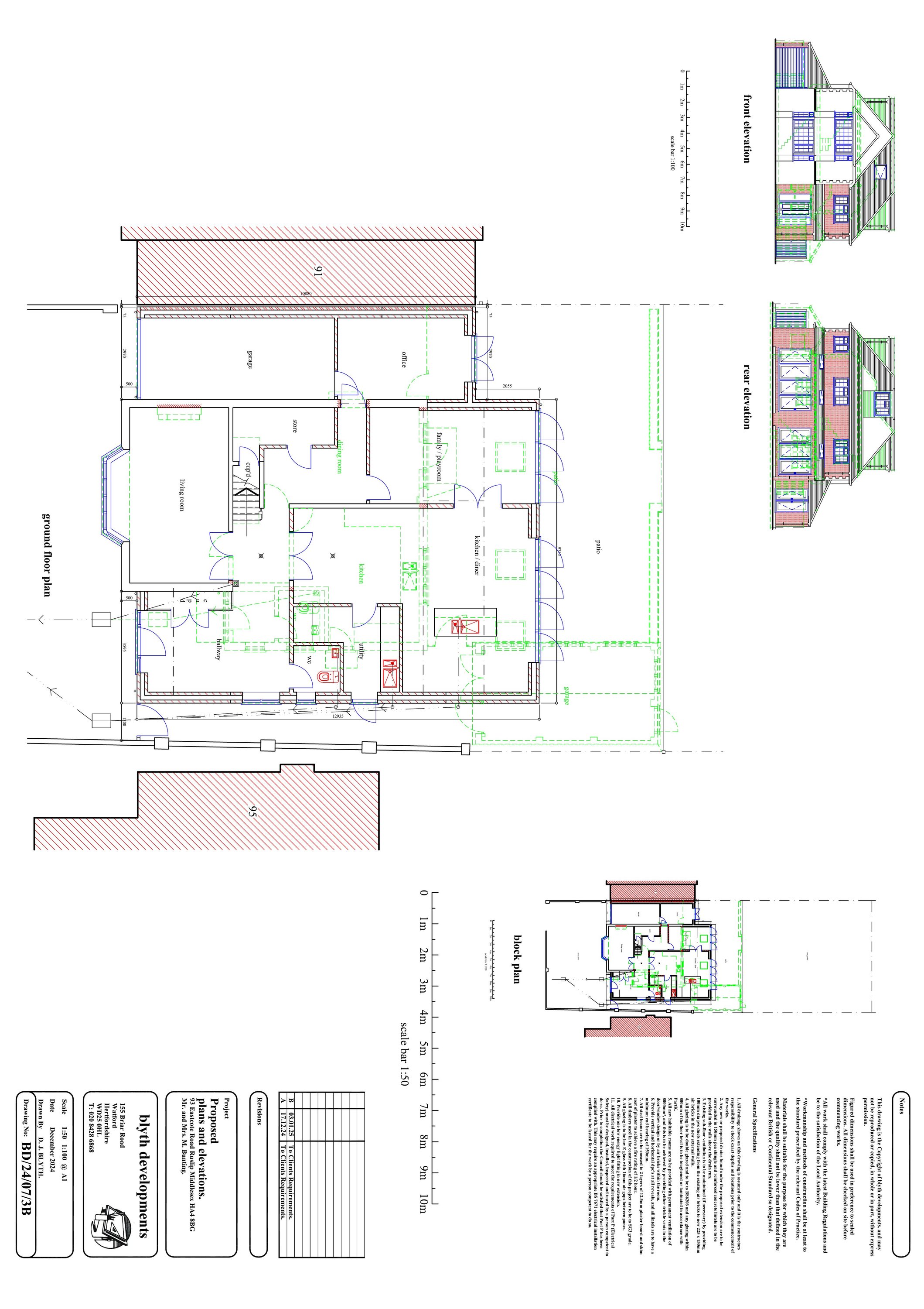
Part single/part two-storey side and rear extensions and roof conversion with dormers.

Full proposal

Erection of a part single storey, part two storey rear extension and a part single storey, part two storey side extension with amendments to fenestrations. Conversion of roof space to habitable use to include extension of the existing roof to create a crown roof, 2 side facing dormers, 1 rear facing dormer and 1 front roof light.

Documents

Document
Archived · Original link
Document
Archived · Original link
Document
Archived · Original link
Document
Archived · Original link
Document
Archived · Original link
Document
Archived · Original link
Document
Archived · Original link
Document
Archived · Original link
Document
Archived · Original link
Document
Archived · Original link

Have your say

Your comment matters. Councils must consider every representation that raises material planning considerations.

Write a comment