← London Borough of Hillingdon
36328/APP/2025/1170
London Borough of Hillingdon
Status
Approval
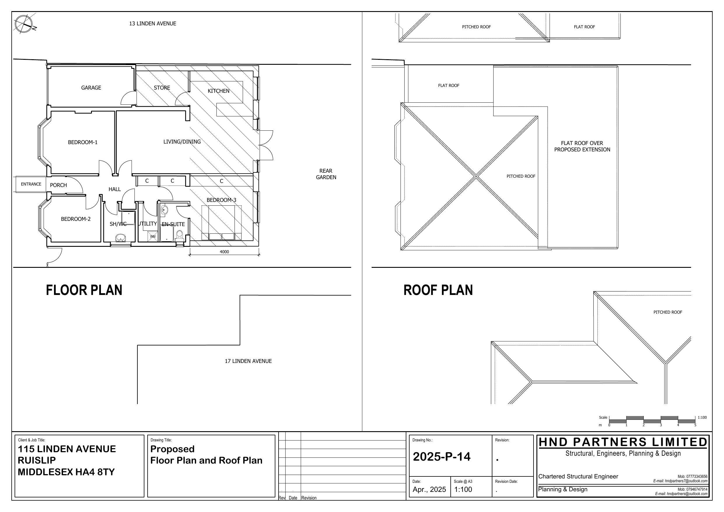
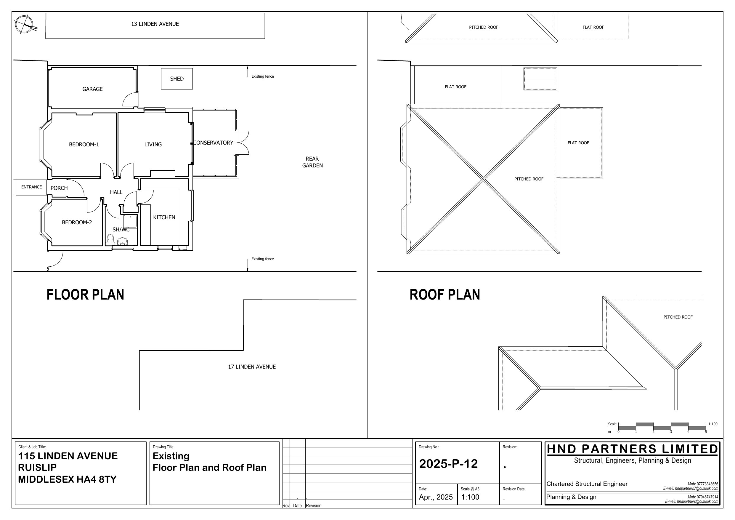
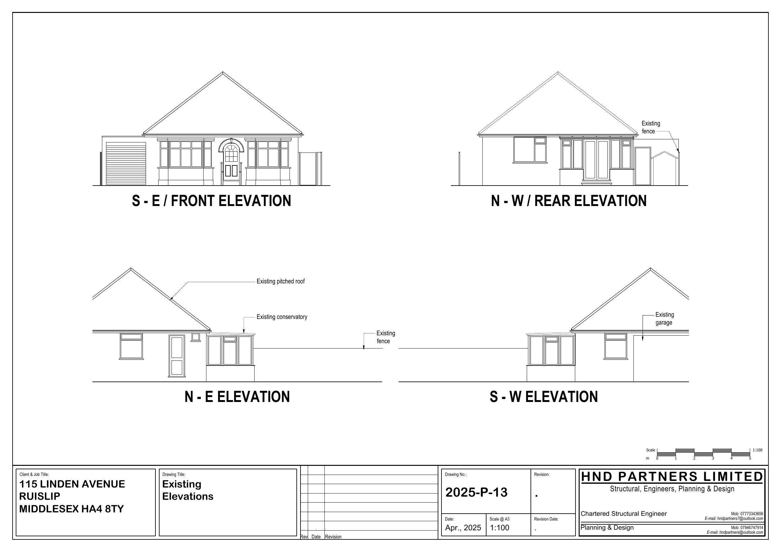
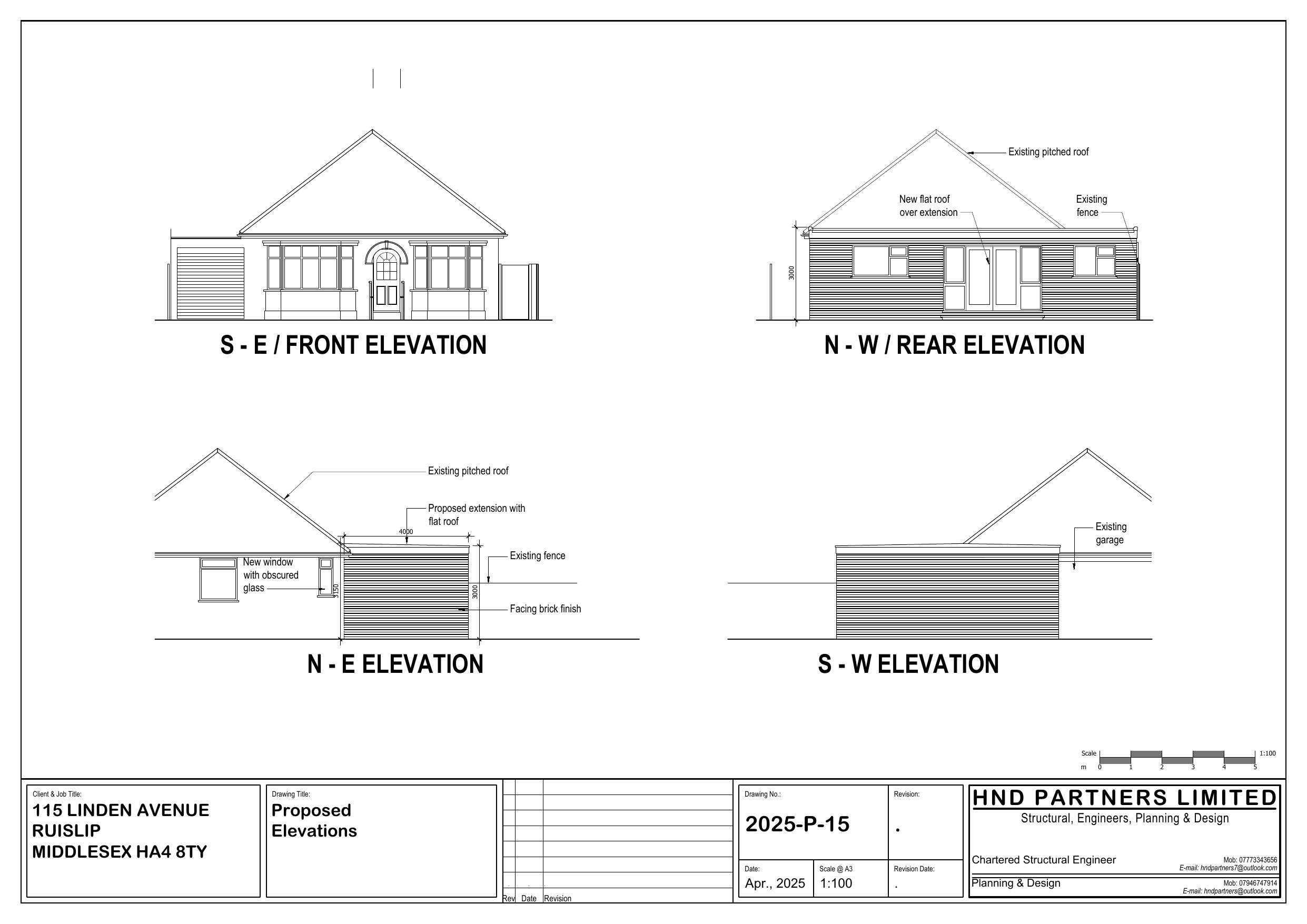
House extension
Received
25 Apr 2025
New homes
0
Full proposal
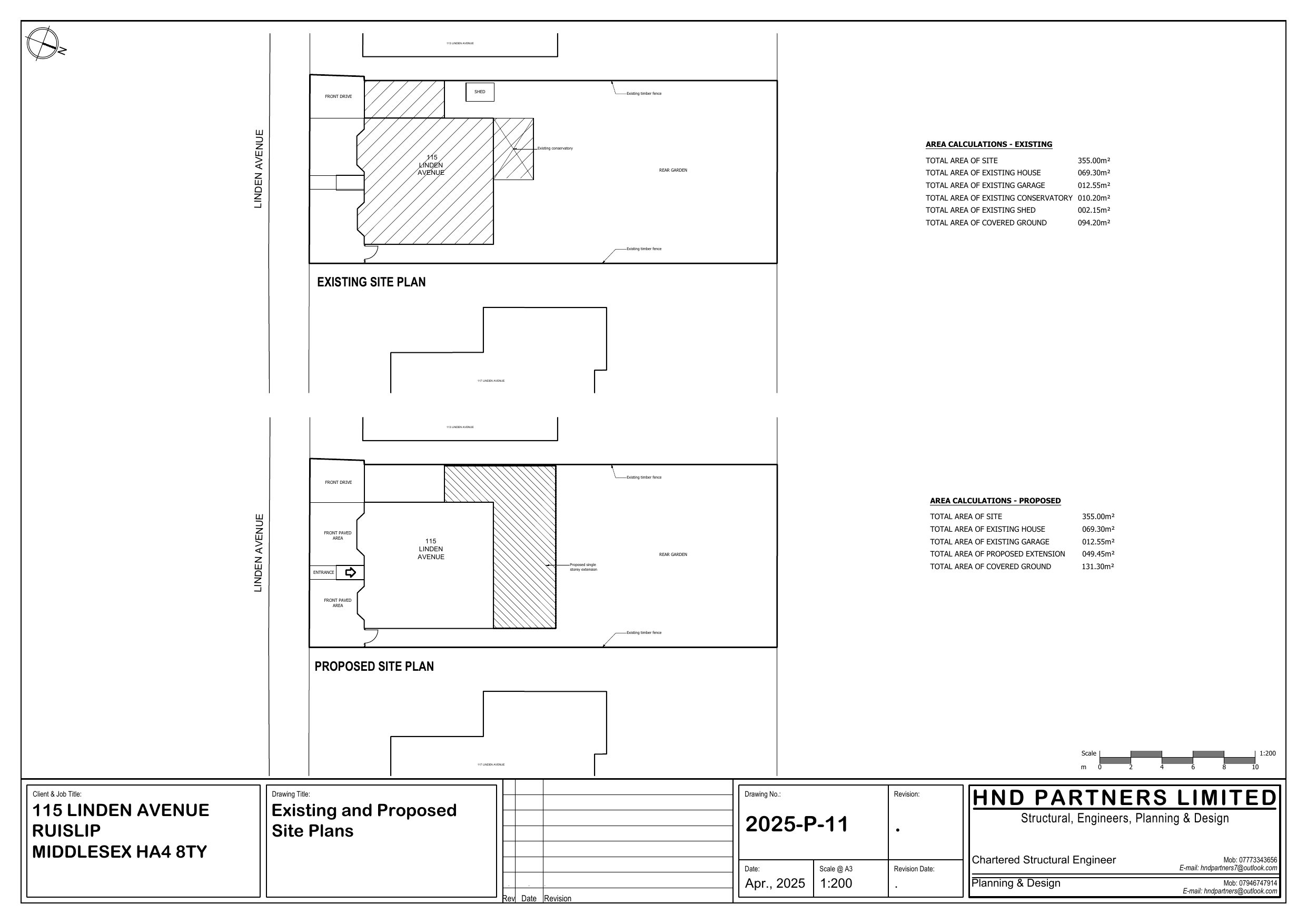
Erection of a single storey wraparound extension to the side and rear
Documents
Have your say
Your comment matters. Councils must consider every representation that raises material planning considerations.