← London Borough of Hillingdon

Status

Approval House extension
Received
28 Jan 2025
New homes
0

Summary

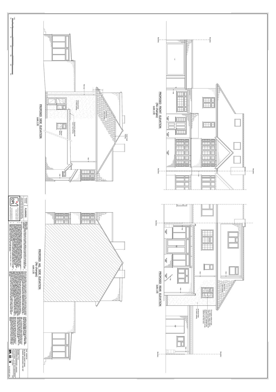
Part double-storey side and rear extension to existing dwelling.

Full proposal

Erection of a part double storey side/rear extension.

Documents

Document
Archived · Original link
APPLICATION FORM
Document
Not yet archived · Original link
Document
Archived · Original link
Document
Archived · Original link
Document
Archived · Original link
Document
Archived · Original link
Document
Archived · Original link
Document
Archived · Original link
Document
Archived · Original link
Document
Archived · Original link
Document
Archived · Original link

Have your say

Your comment matters. Councils must consider every representation that raises material planning considerations.

Write a comment