← London Borough of Hillingdon

Status

Approval House extension
Received
21 Mar 2025
New homes
0

Full proposal

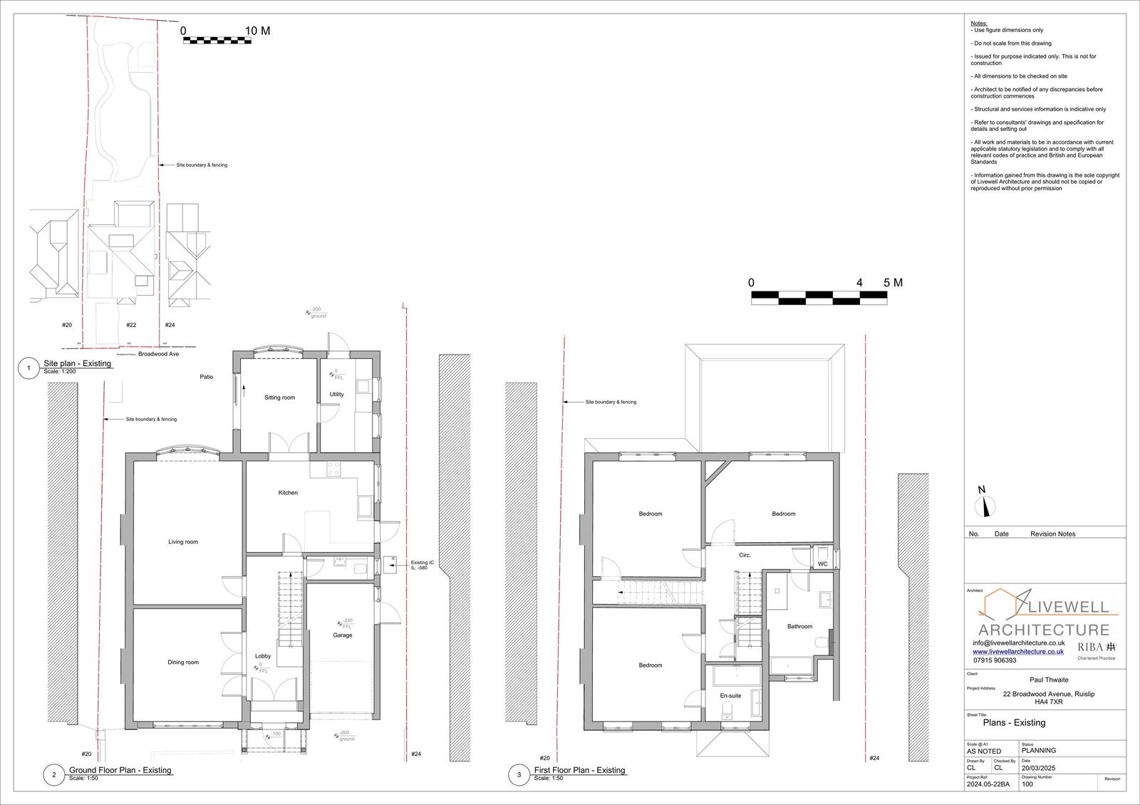
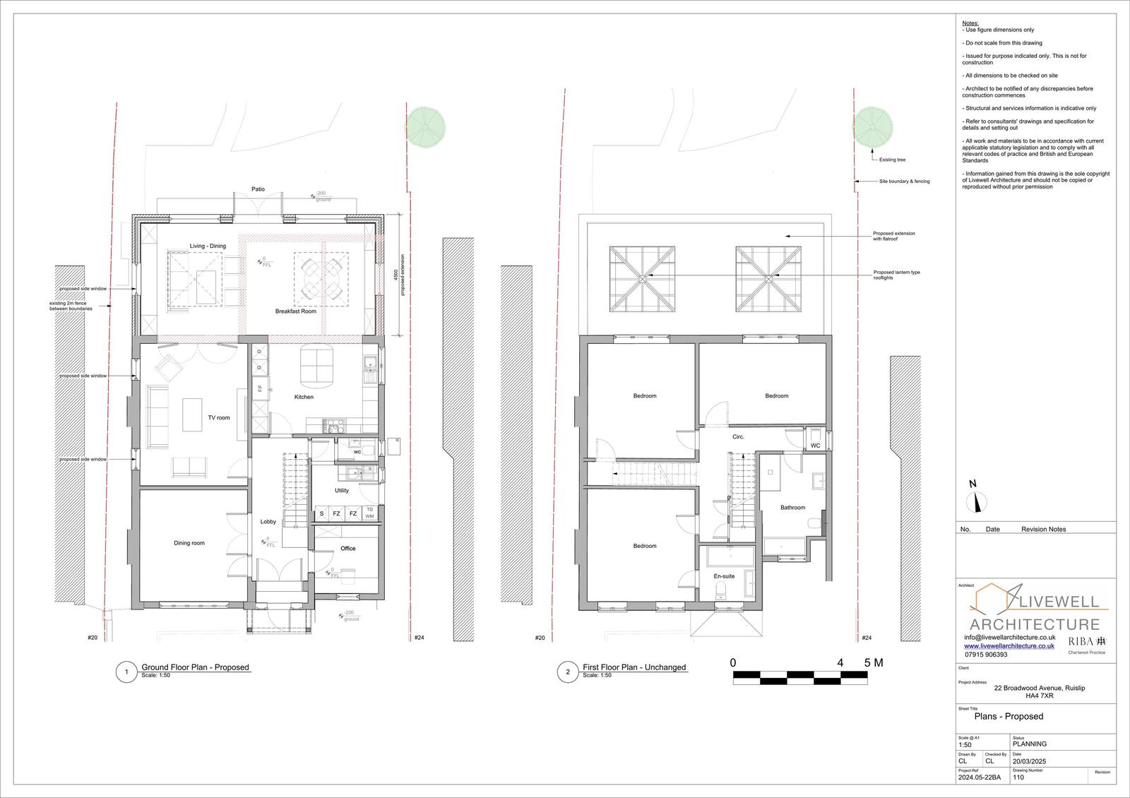
Erection of a single storey rear extension following demolition of the existing single storey rear extension. Conversion of garage to habitable space with amendments to fenestration including new windows.

Documents

Document
Archived · Original link
Document
Archived · Original link
Document
Archived · Original link
Document
Archived · Original link
Document
Archived · Original link
Document
Archived · Original link
Document
Archived · Original link
Document
Archived · Original link

Have your say

Your comment matters. Councils must consider every representation that raises material planning considerations.

Write a comment