← London Borough of Hillingdon

Status

Approval House extension
Received
21 Mar 2025
New homes
0

Full proposal

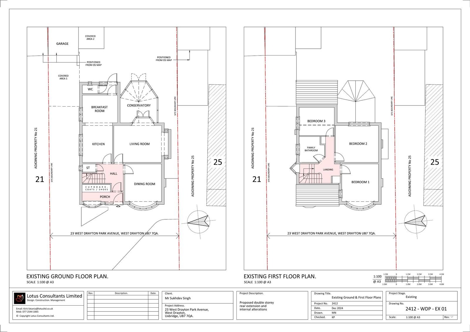
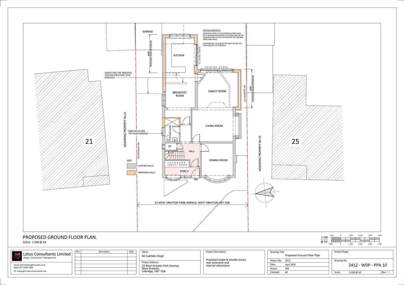
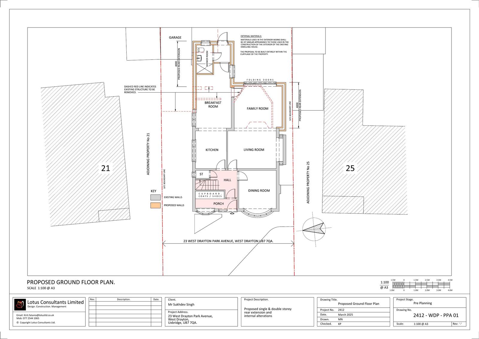
Erection of a part single, part double storey side and rear extension and rear dormer following demolition of existing rear extension.

Documents

Document
Archived · Original link
Document
Archived · Original link
Document
Archived · Original link
Document
Archived · Original link
Document
Archived · Original link
Document
Archived · Original link
Document
Archived · Original link
Document
Archived · Original link

Have your say

Your comment matters. Councils must consider every representation that raises material planning considerations.

Write a comment