← London Borough of Hillingdon
43692/APP/2025/1151
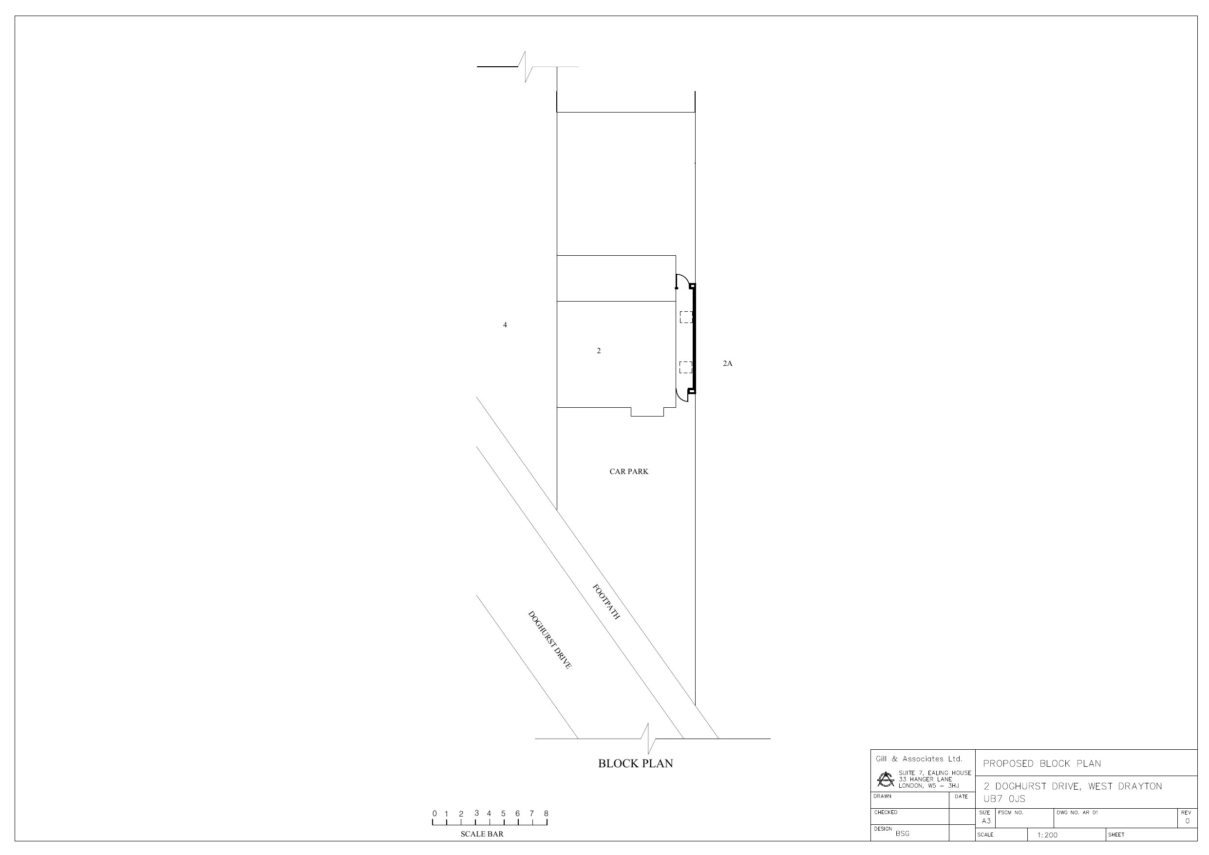
London Borough of Hillingdon
Status
Approval
House extension
Received
24 Apr 2025
New homes
0
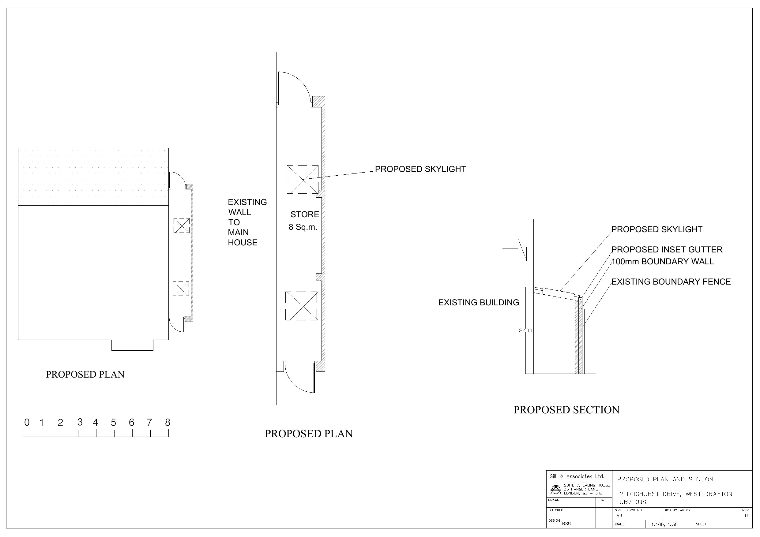
Full proposal
Erection of a single storey side extension.
Documents
Have your say
Your comment matters. Councils must consider every representation that raises material planning considerations.