← London Borough of Hillingdon

Status

Approval Demolition
Received
20 Mar 2025
New homes
0

Full proposal

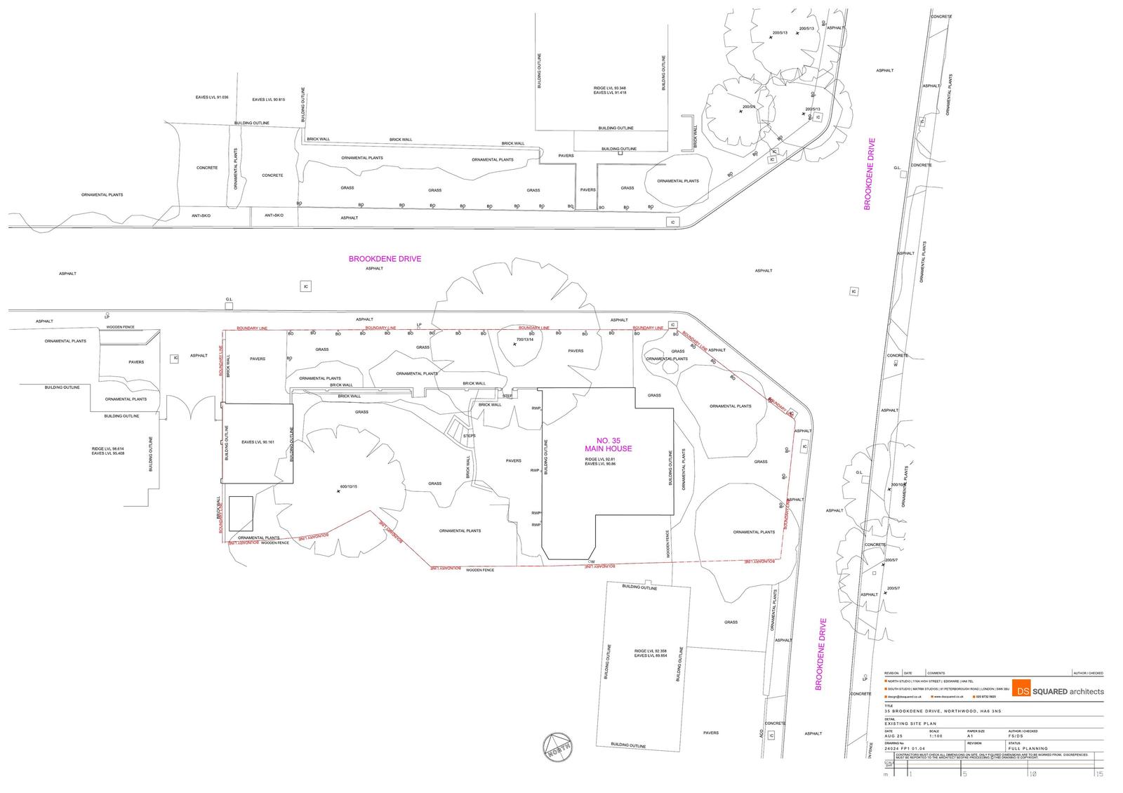
Demolition of existing two-storey dwelling and erection of a replacement two-storey dwelling with solar panels, associated bin storage, parking, electric vehicle charging and air source heat pump. Installation of vehicular crossover and alterations to landscaping including hardstanding for driveway, soft landscaping and new boundary treatment and siting.

Documents

Document
Archived · Original link
Document
Archived · Original link
Document
Archived · Original link
Document
Archived · Original link
Document
Archived · Original link
Document
Archived · Original link
Document
Archived · Original link
Document
Archived · Original link
Document
Archived · Original link
Document
Archived · Original link
Document
Archived · Original link
Document
Archived · Original link
Document
Archived · Original link
Document
Archived · Original link
Document
Archived · Original link
Document
Archived · Original link
Document
Archived · Original link
Document
Archived · Original link
Document
Archived · Original link
Document
Archived · Original link
Document
Archived · Original link
Document
Archived · Original link

Have your say

Your comment matters. Councils must consider every representation that raises material planning considerations.

Write a comment