← London Borough of Hillingdon
46227/APP/2025/558
London Borough of Hillingdon
Status
Refusal
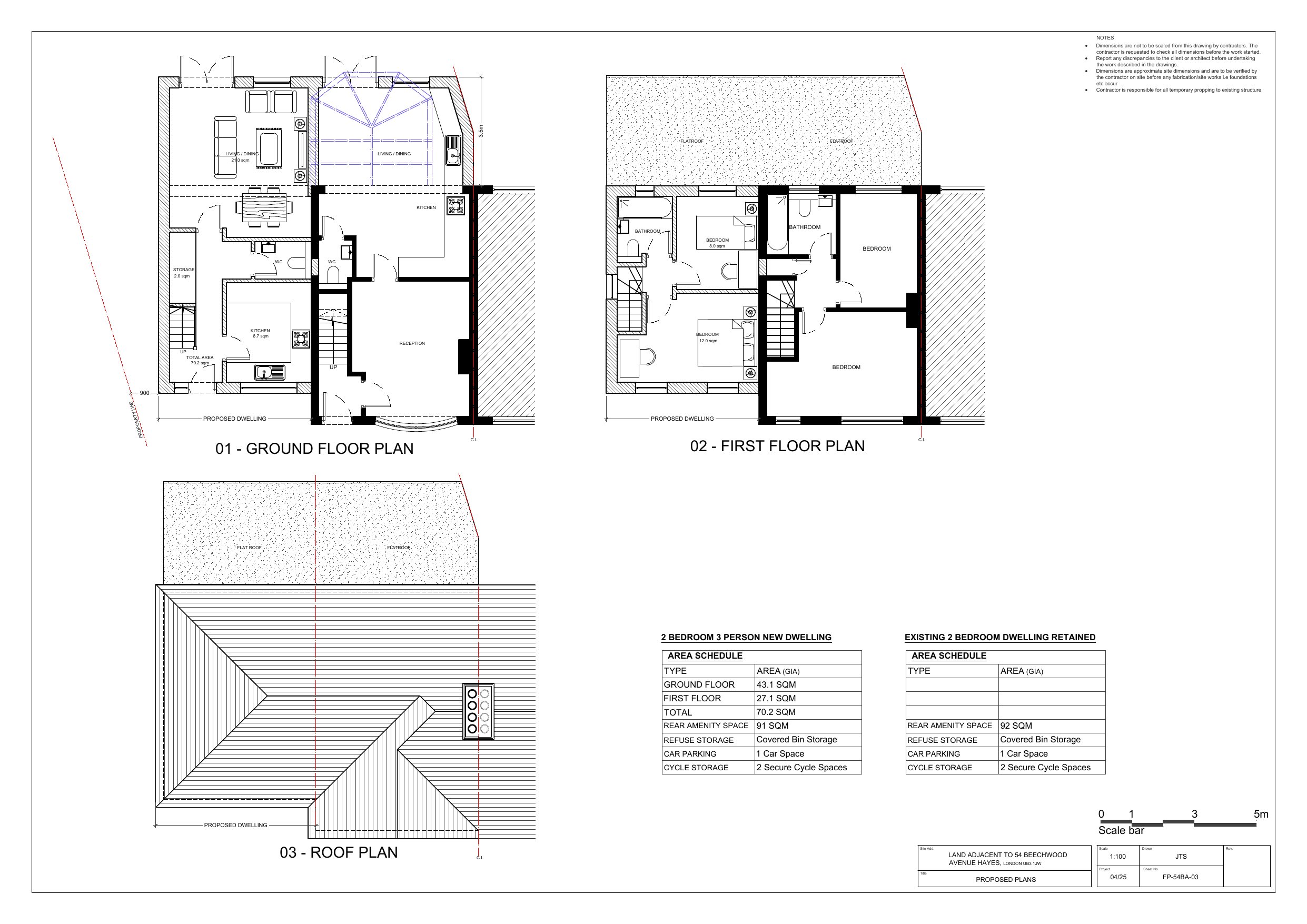
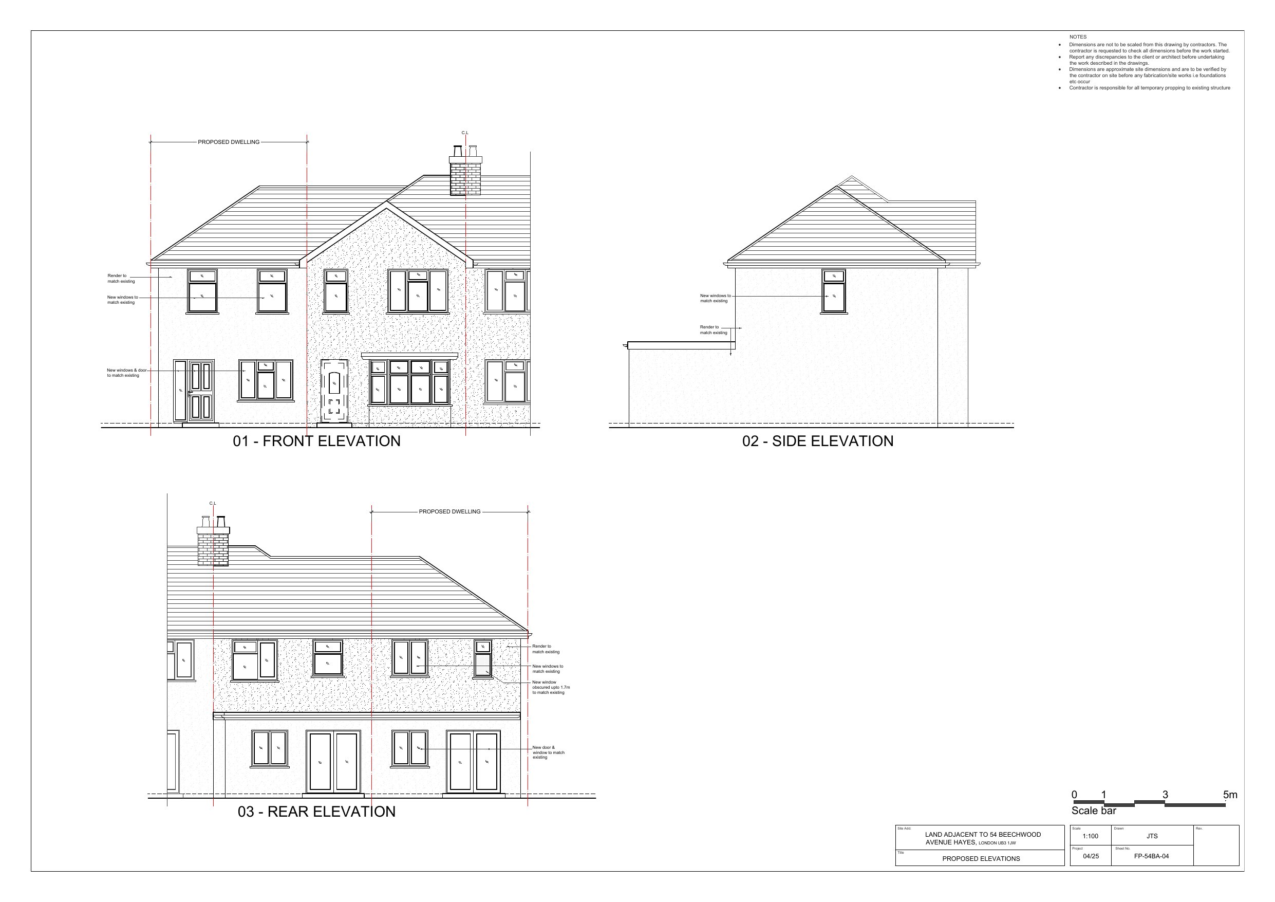
New housing
Received
28 Feb 2025
New homes
1
Full proposal
Erection of a 2-bedroom, 3-person dwelling with private amenity space , refuse area and car parking. Erection of a single storey rear extension to the original house.
Documents
Have your say
Your comment matters. Councils must consider every representation that raises material planning considerations.