← London Borough of Hillingdon

Status

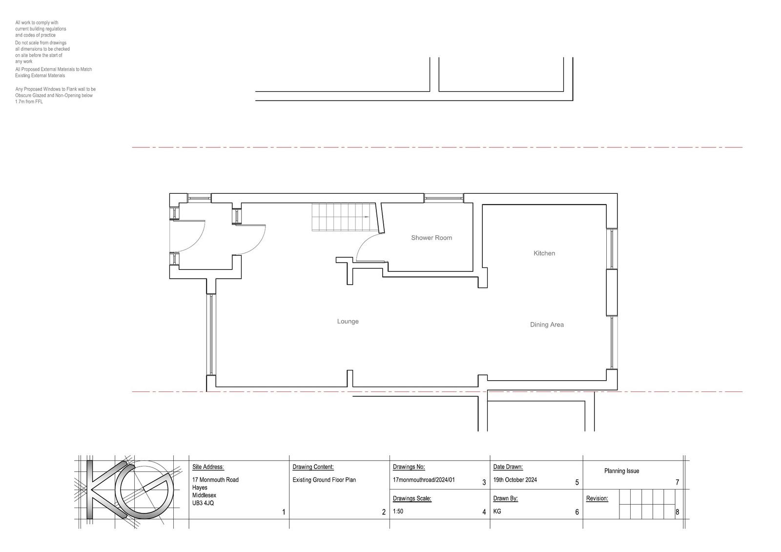
Approval House extension
Received
07 Jan 2025
New homes
0

Summary

Part single-storey, part two-storey rear extension to dwelling.

Full proposal

Construction of part single-storey, part two-storey rear extension

Documents

Document
Archived · Original link
Document
Archived · Original link
Document
Archived · Original link
Document
Archived · Original link
Document
Archived · Original link

Have your say

Your comment matters. Councils must consider every representation that raises material planning considerations.

Write a comment