← London Borough of Hillingdon
48898/APP/2025/1309
London Borough of Hillingdon
Status
Approval
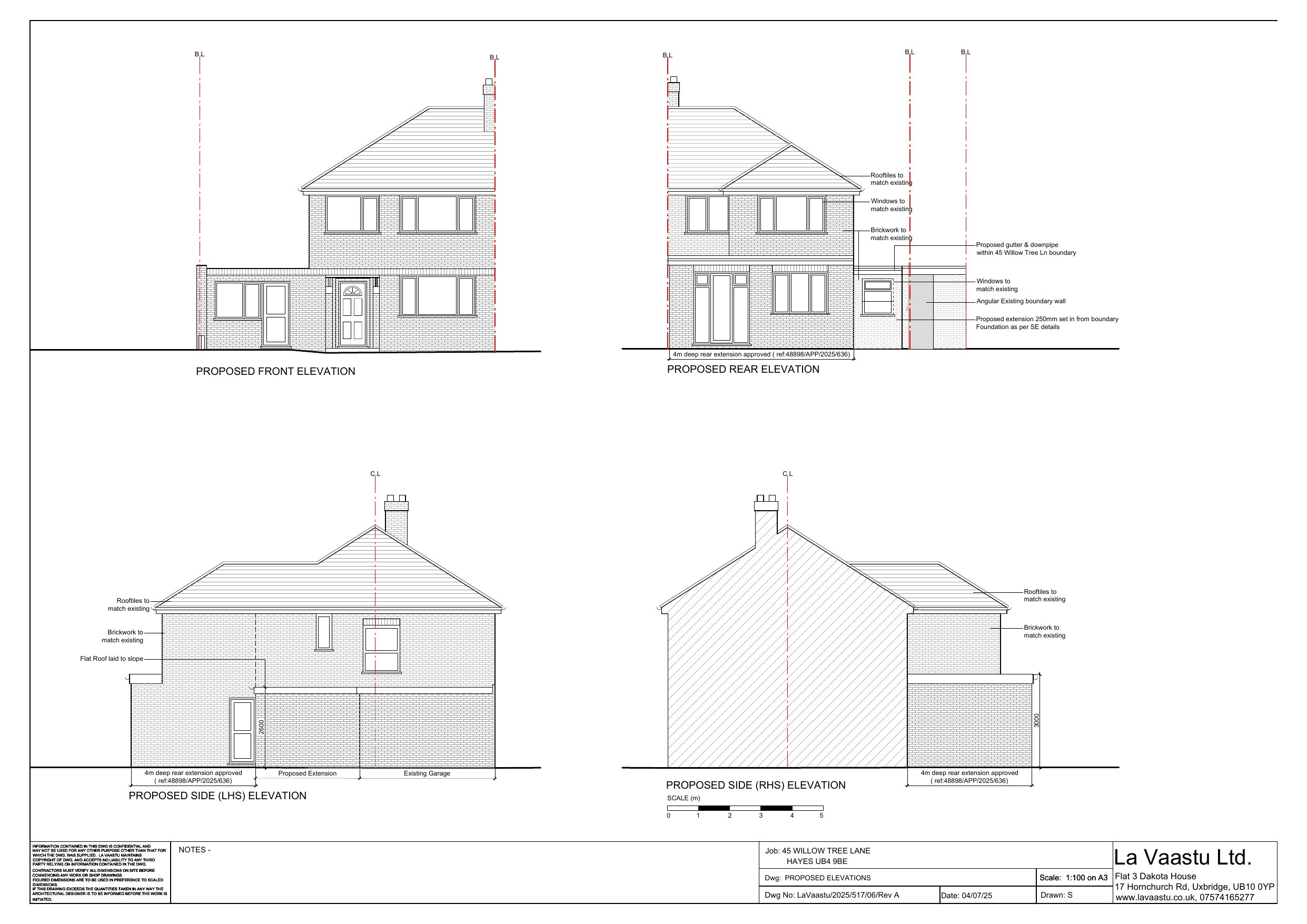
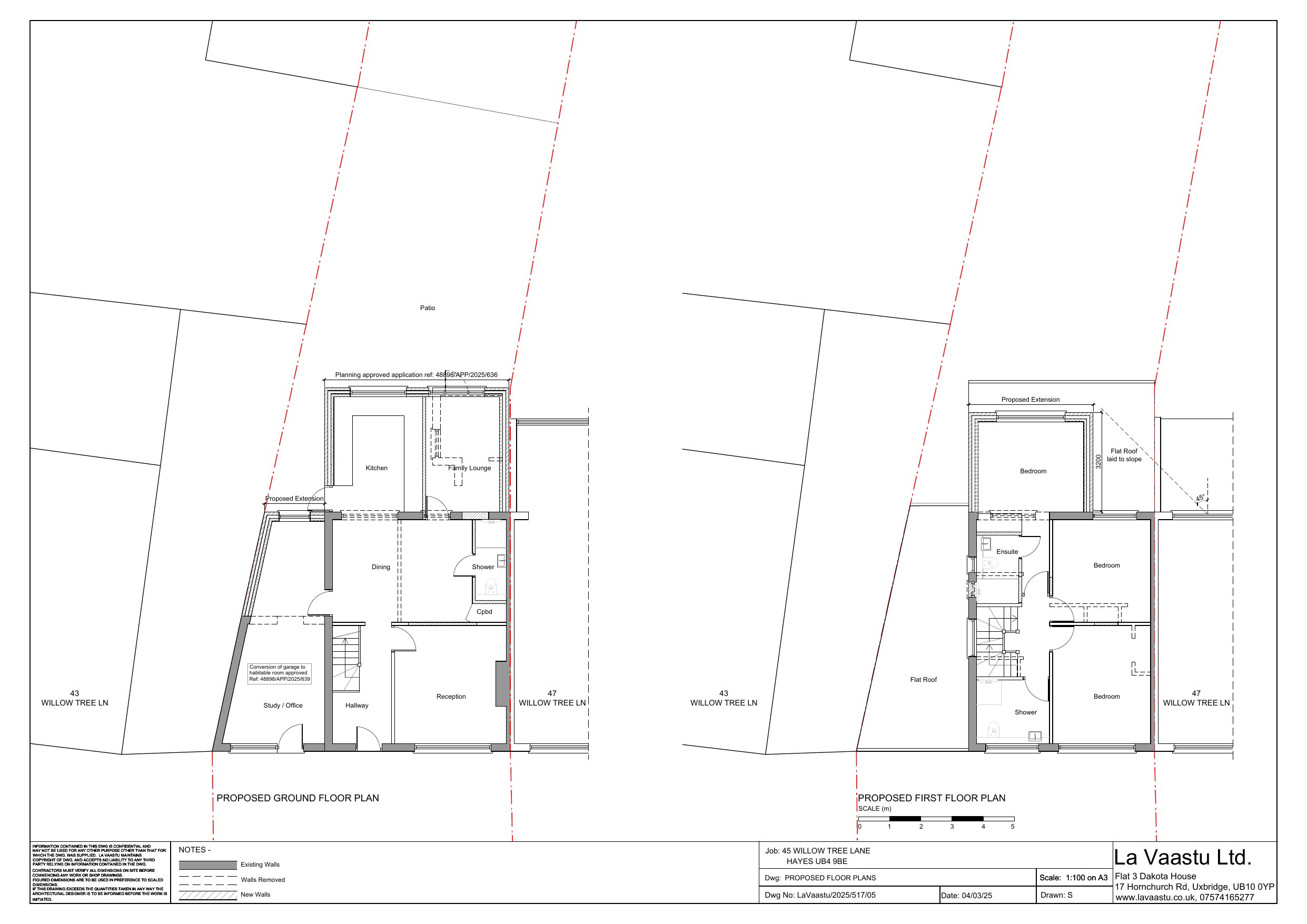
House extension
Received
09 May 2025
New homes
0
Full proposal
Erection of a part single storey, part two storey rear extension, a single storey side extension, and amendments to fenestration (Revised location plan)
Documents
Have your say
Your comment matters. Councils must consider every representation that raises material planning considerations.