← London Borough of Hillingdon
48898/APP/2025/636
London Borough of Hillingdon
Status
Approval
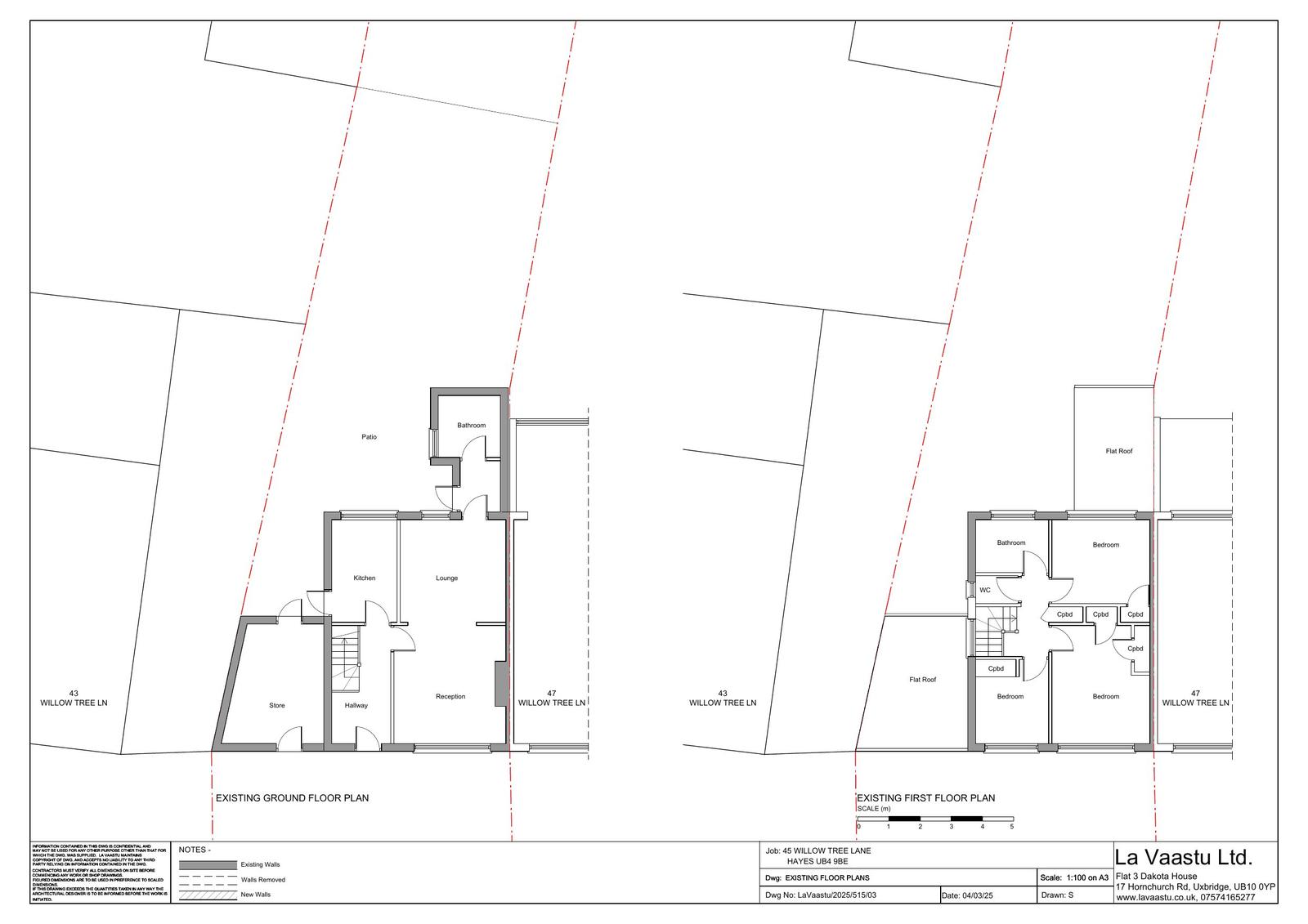
House extension
Received
07 Mar 2025
New homes
0
Full proposal
Erection of a single storey rear extension, which would extend beyond the rear wall of the original house by 4.00 metres, for which the maximum height would be 3.00 metres, and for which the height of the eaves would be 3.00 metres.
Documents
Have your say
Your comment matters. Councils must consider every representation that raises material planning considerations.