← London Borough of Hillingdon

Status

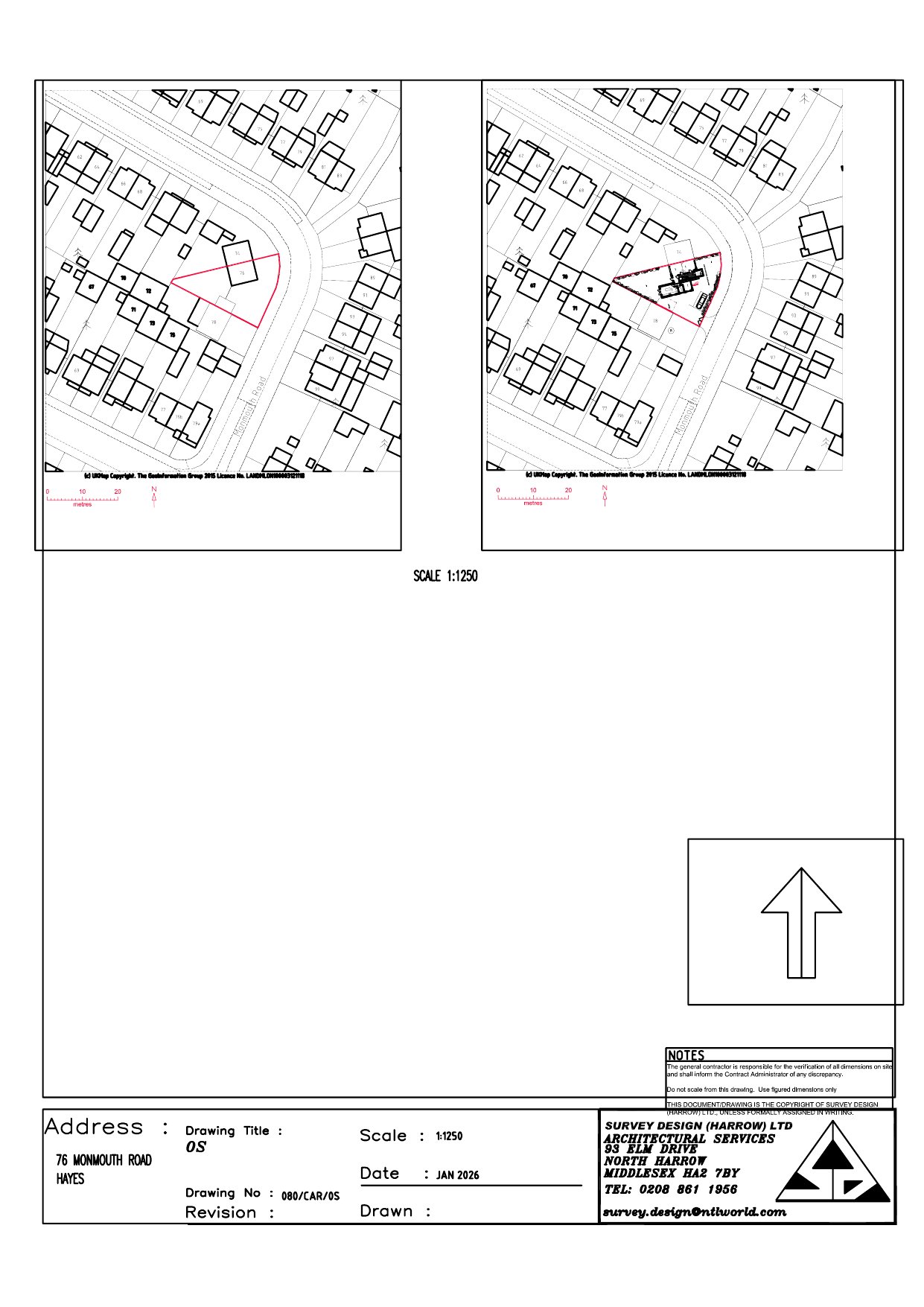
Approval House extension
Received
15 Jan 2026
New homes
0

Full proposal

Erection of two storey extension to the side and rear, and a front porch.

Documents

Document
Archived · Original link

Have your say

Your comment matters. Councils must consider every representation that raises material planning considerations.

Write a comment