← London Borough of Hillingdon

Status

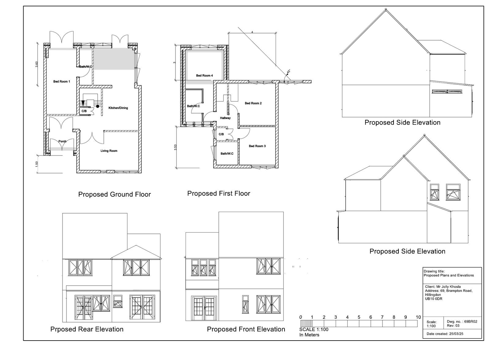
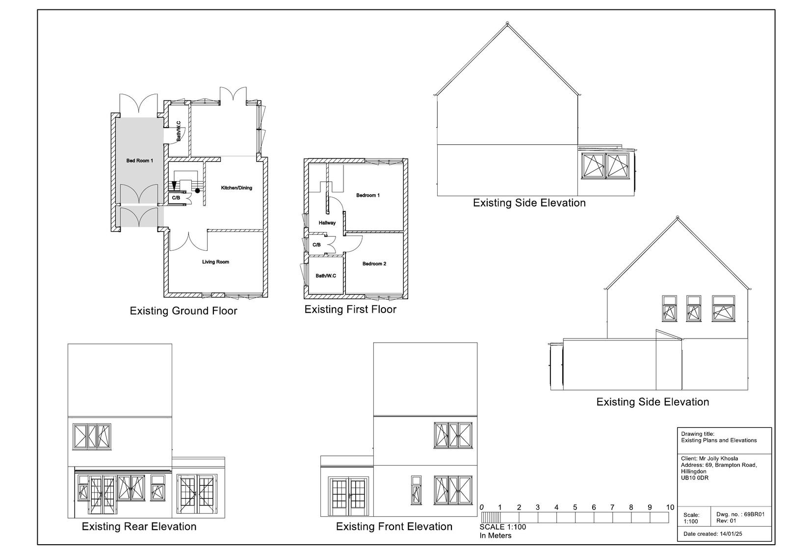
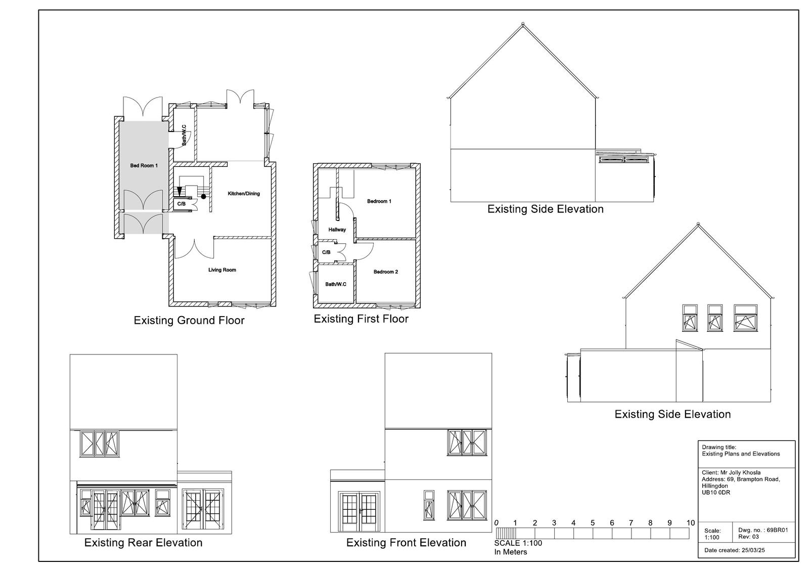
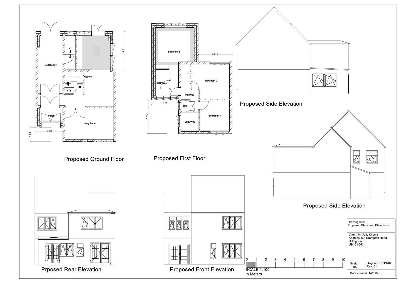
Approval House extension
Received
29 Jan 2025
New homes
0

Summary

Two-storey rear/side extension incorporating existing single-storey extensions.

Full proposal

Erection of a two storey rear/side extension incorporating existing single storey side and rear extension.

Documents

Document
Archived · Original link
Document
Archived · Original link
Document
Archived · Original link
Document
Archived · Original link
Document
Archived · Original link
Document
Archived · Original link
Document
Archived · Original link
Document
Archived · Original link
Document
Archived · Original link
Document
Archived · Original link
Document
Archived · Original link
Document
Archived · Original link
Document
Archived · Original link

Have your say

Your comment matters. Councils must consider every representation that raises material planning considerations.

Write a comment