← Back to London Borough of Hillingdon

Status

Prior Approval N/Req House extension
Received 07 Jan 2025
New dwellings 0

What you can do

Take Action

Make your voice heard. Authorities need to hear from people who support new homes.

Summary

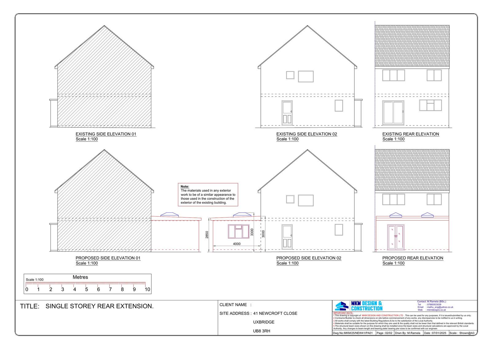
Single-storey rear extension projecting 4.00m with specified maximum and eaves heights.

Full Proposal

Erection of a single storey rear extension, which would extend beyond the rear wall of the original house by 4.00 metres, for which the maximum height would be 3.30 metres, and for which the height of the eaves would be 2.85 metres

Detail pages

Documents

APPLICATION FORM
Document
Not downloaded · Council link
DECISION NOTICE
Document
Not downloaded · Council link
OFFICERS REPORTS
Document
Not downloaded · Council link
PLAN AMENDED
Document
Not downloaded · Council link
PROPOSED AND EXISITNG ELEVATIONS
Document
Not downloaded · Council link
PROPOSED AND EXISTING FLOOR PLANS
Document
Not downloaded · Council link