← London Borough of Hillingdon

Status

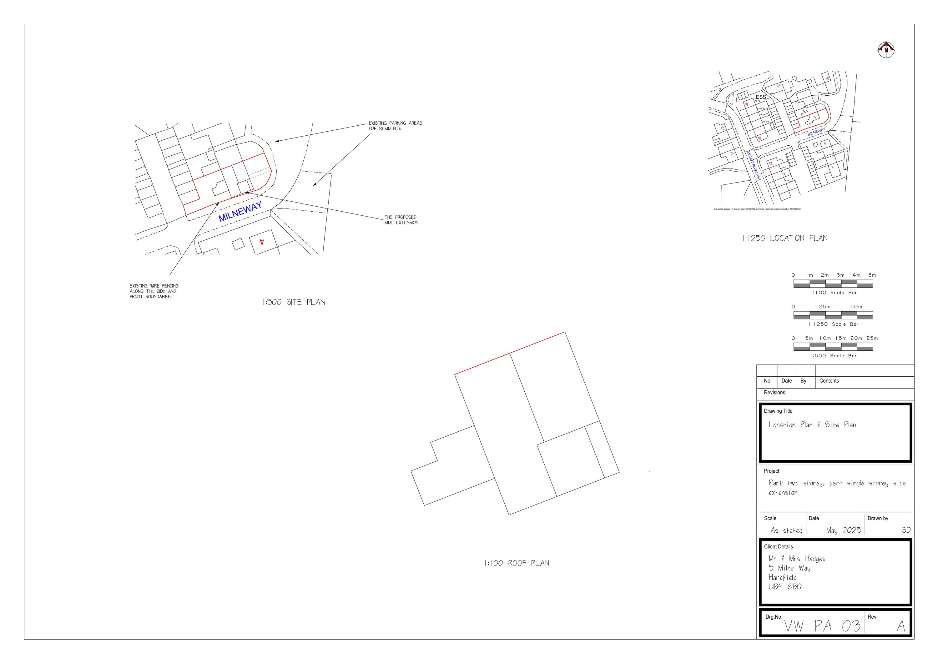
Approval House extension
Received
09 May 2025
New homes
0

Full proposal

Erection of a part two storey, part single storey side extension

Documents

Document
Archived · Original link
Document
Archived · Original link
Document
Archived · Original link
Document
Archived · Original link
Document
Archived · Original link
Document
Archived · Original link
Document
Archived · Original link
Document
Archived · Original link

Have your say

Your comment matters. Councils must consider every representation that raises material planning considerations.

Write a comment