← London Borough of Hillingdon
5235/APP/2025/188
London Borough of Hillingdon
Status
Approval
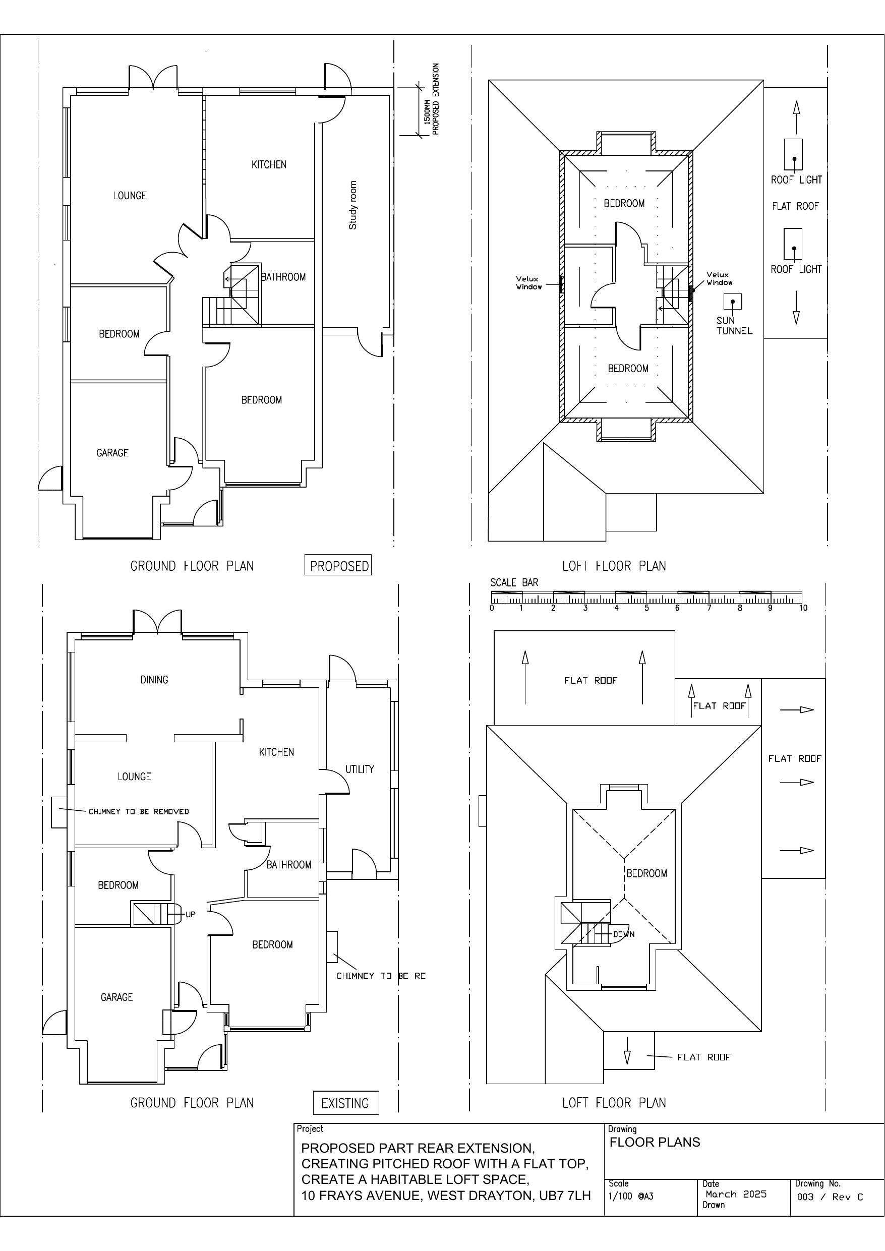
House extension
Received
27 Jan 2025
New homes
0
Summary
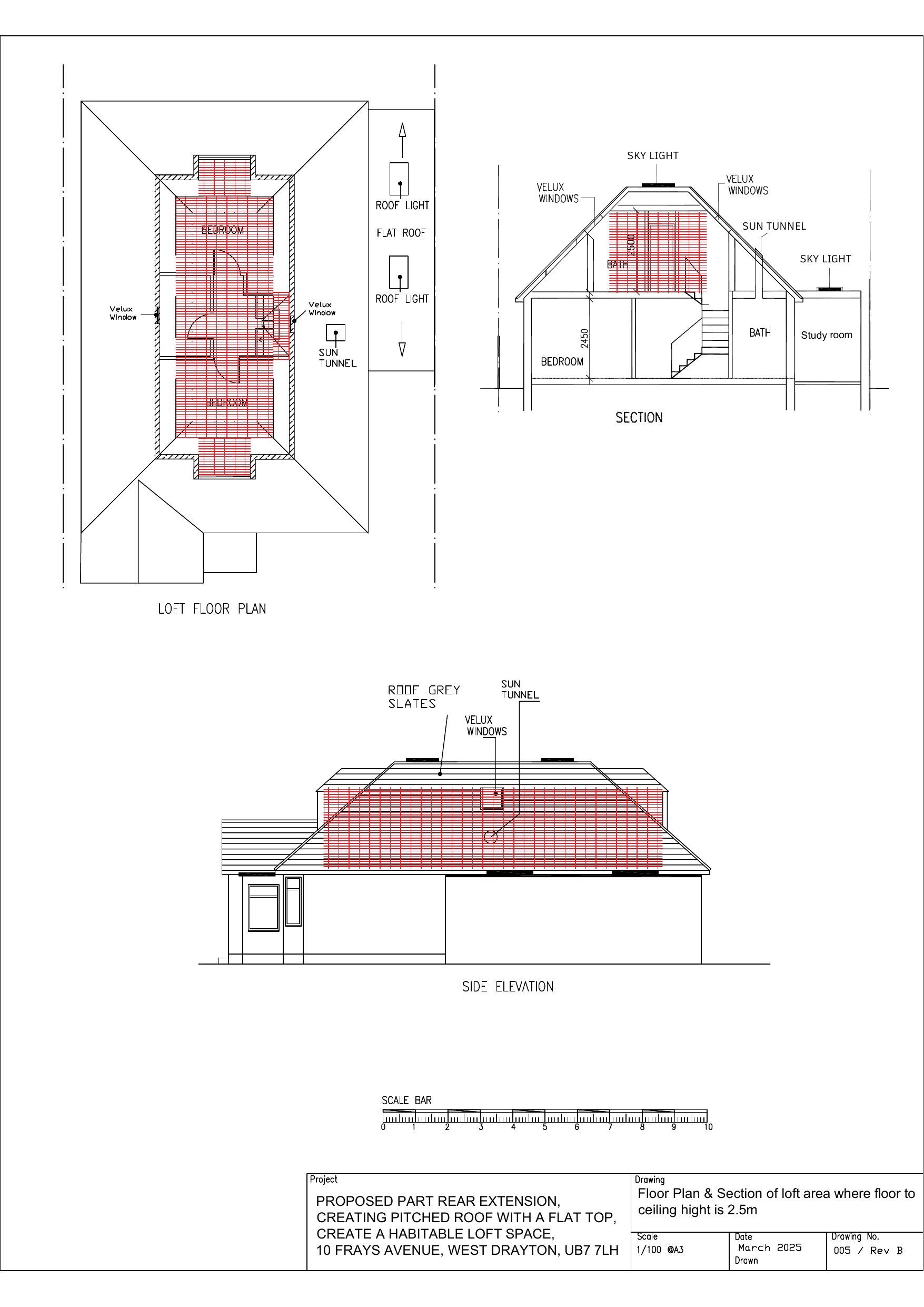
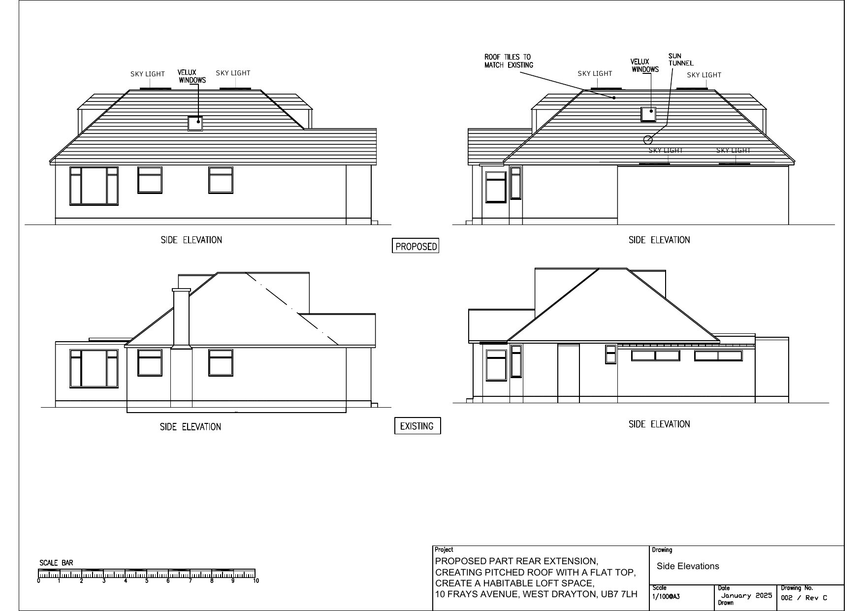
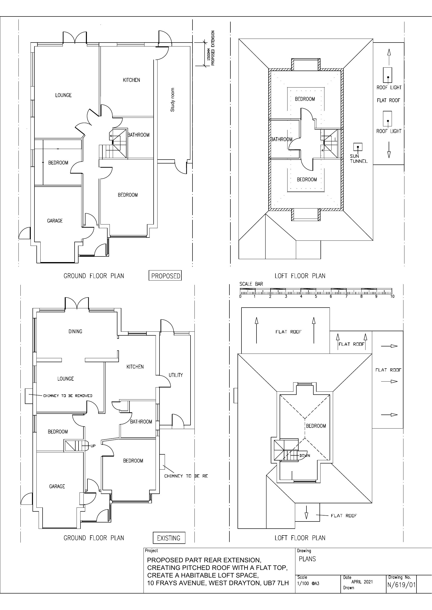
Single-storey rear extension, loft extension with crown roof, enlarged dormer and external insulation/render.
Full proposal
Erection of a single storey rear extension, amendments to side extension roof, extension to existing loft conversion including extension of roof to the rear and formation of crown roof, enlargement of rear dormer window, and installation of 2no. side facing roof lights, and addition of render and insulation to external walls (amended description)
Documents
Have your say
Your comment matters. Councils must consider every representation that raises material planning considerations.