← Back to London Borough of Hillingdon

Status

Approval House extension
Received 21 Jan 2025
New dwellings 0

What you can do

Take Action

Make your voice heard. Authorities need to hear from people who support new homes.

Summary

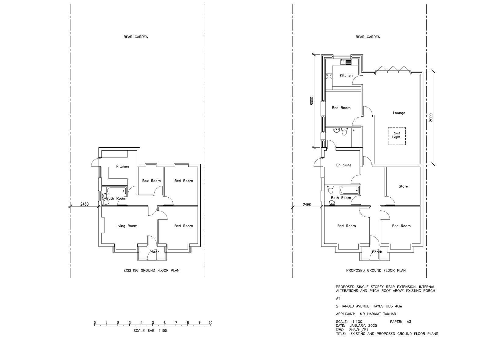
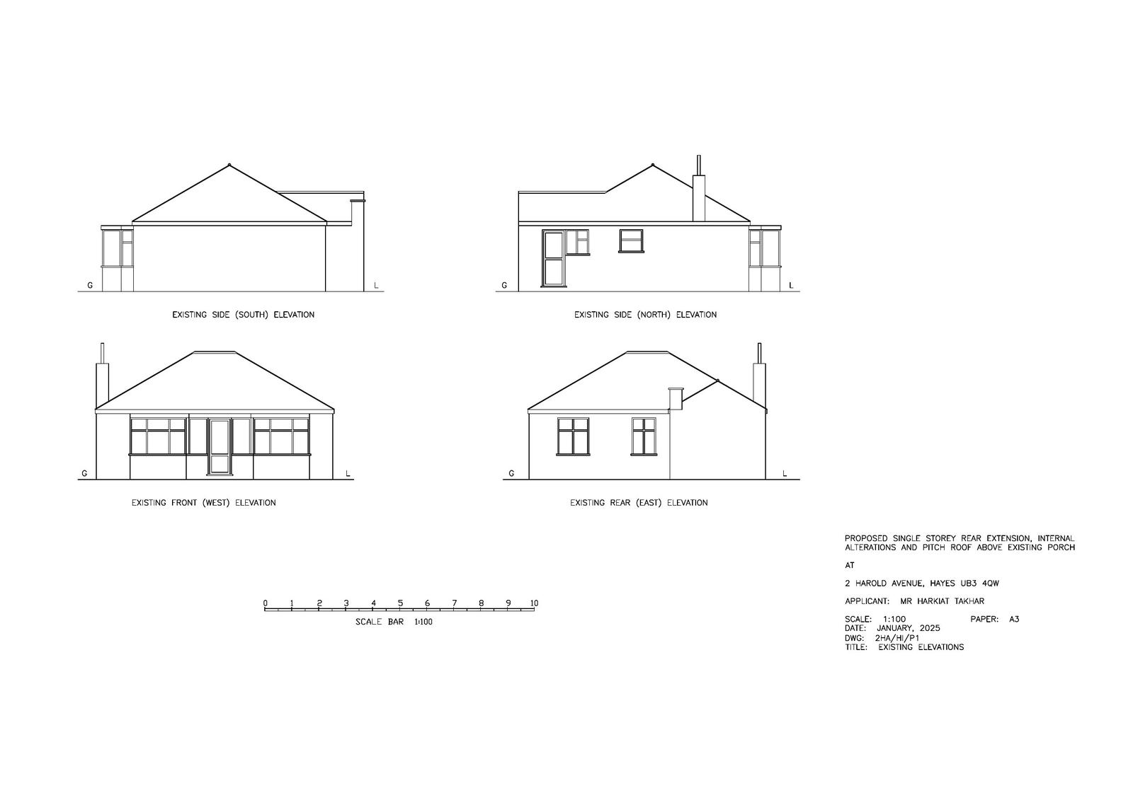
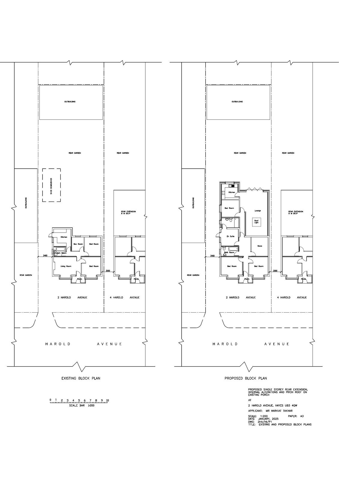
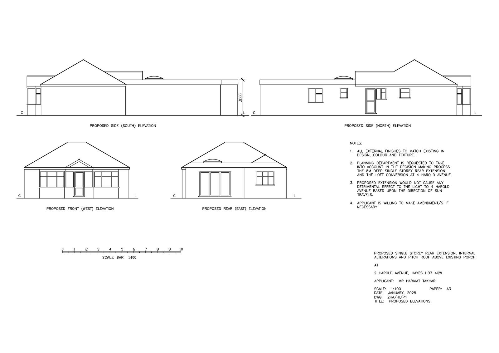
Single storey rear extension and alterations to existing front porch.

Full Proposal

Erection of a single storey rear extension and alterations to the existing front porch.

Detail pages

Documents

APPLICATION FORM
Document
Not downloaded · Council link
BLOCK PLAN
Document
Not downloaded · Council link
DECISION NOTICE
Document
Not downloaded · Council link
EXISTING FRONT ELEVATIONS
Document
Not downloaded · Council link
LOCATION PLAN
Document
Not downloaded · Council link
OFFICERS REPORTS
Document
Not downloaded · Council link
PROPOSED AND EXISTING FLOOR PLANS
Document
Not downloaded · Council link
PROPOSED FRONT ELEVATIONS
Document
Not downloaded · Council link