← Back to London Borough of Hillingdon

Status

Refusal House extension
Received 07 Jan 2025
New dwellings 0

What you can do

Take Action

Make your voice heard. Authorities need to hear from people who support new homes.

Summary

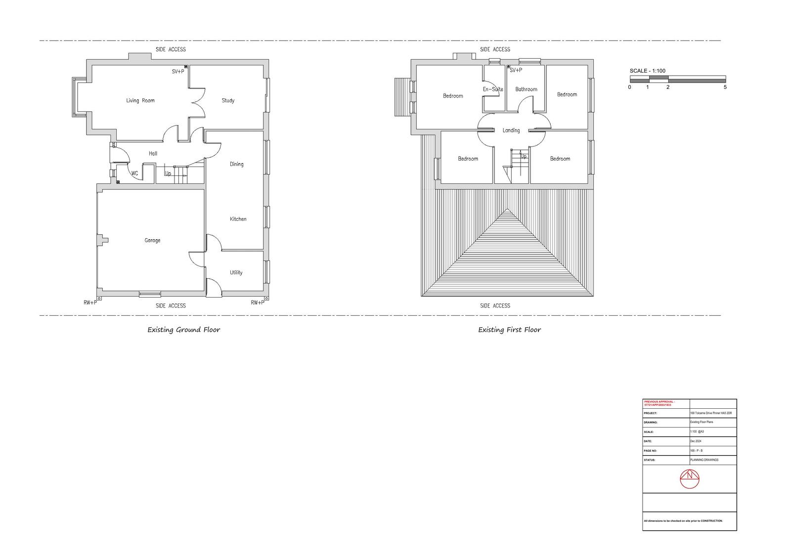
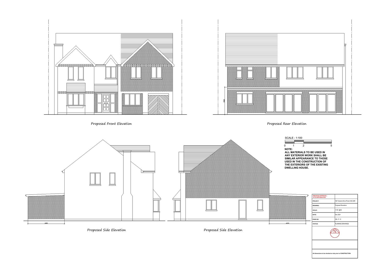
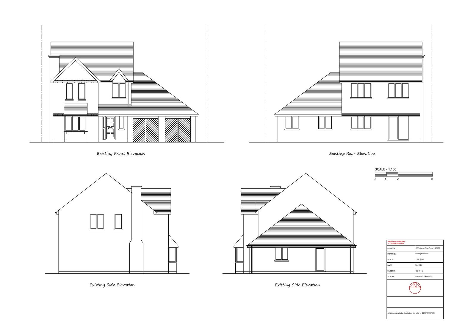
Single-storey rear, first-floor side extension, front porch and garage conversion to habitable space.

Full Proposal

Erection of single storey rear extension, first floor side extension, front porch, conversion of garage to habitable accommodation with amendments to fenestrations.

Detail pages

Documents

APPLICATION FORM
Document
Not downloaded · Council link
DECISION NOTICE
Document
Not downloaded · Council link
EXISTING ELEVATIONS
Document
Not downloaded · Council link
EXISTING FLOOR PLANS
Document
Not downloaded · Council link
LOCATION PLAN
Document
Not downloaded · Council link
OFFICERS REPORTS
Document
Not downloaded · Council link
PHOTOGRAPHS (Supporting info)
Document
Not downloaded · Council link
PROPOSED ELEVATIONS
Document
Not downloaded · Council link
PROPOSED FLOOR PLANS
Document
Archived copy · Council link