← London Borough of Hillingdon
58915/APP/2025/718
London Borough of Hillingdon
Status
Approval
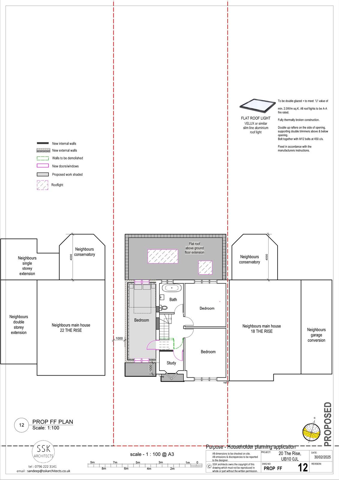
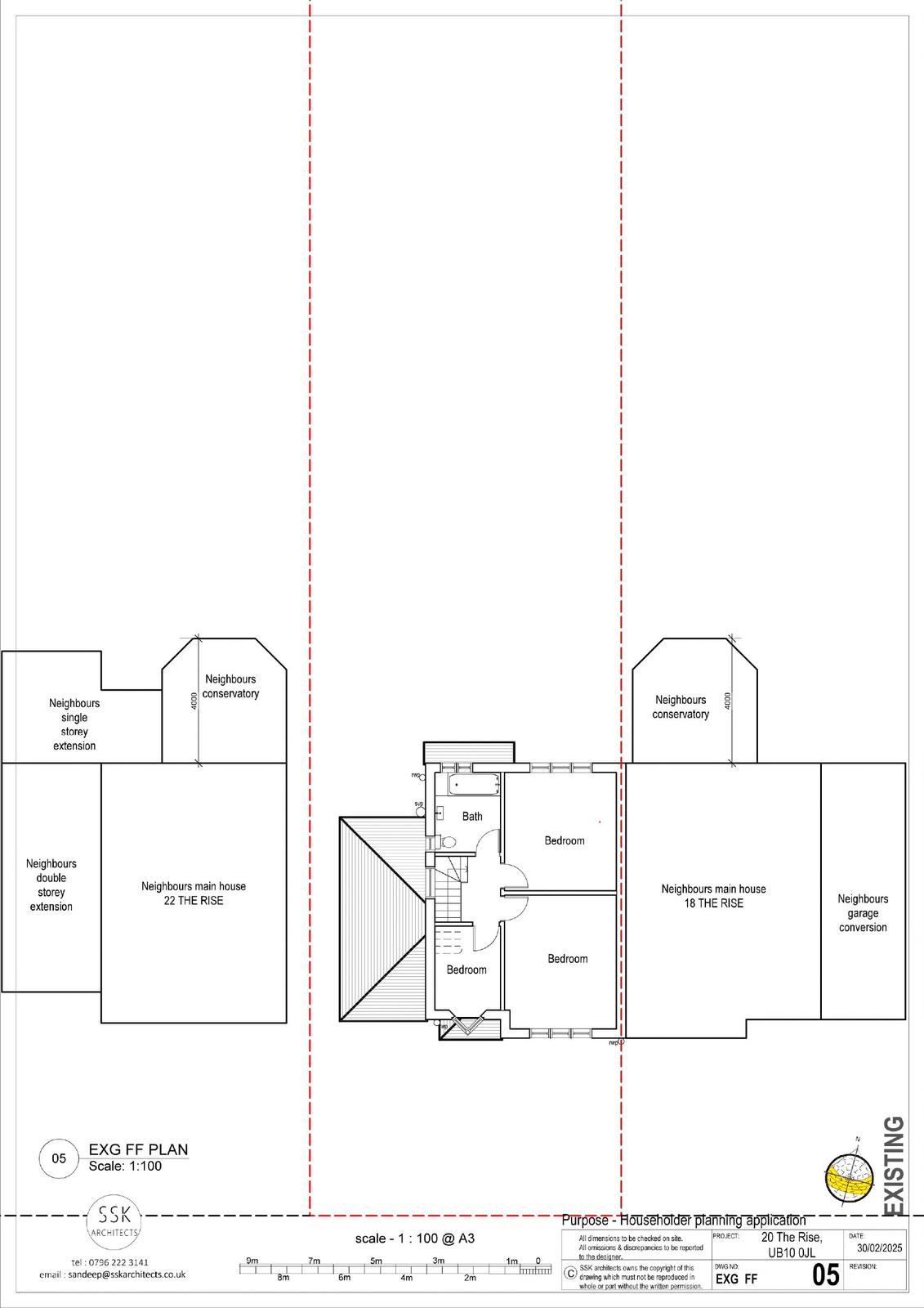
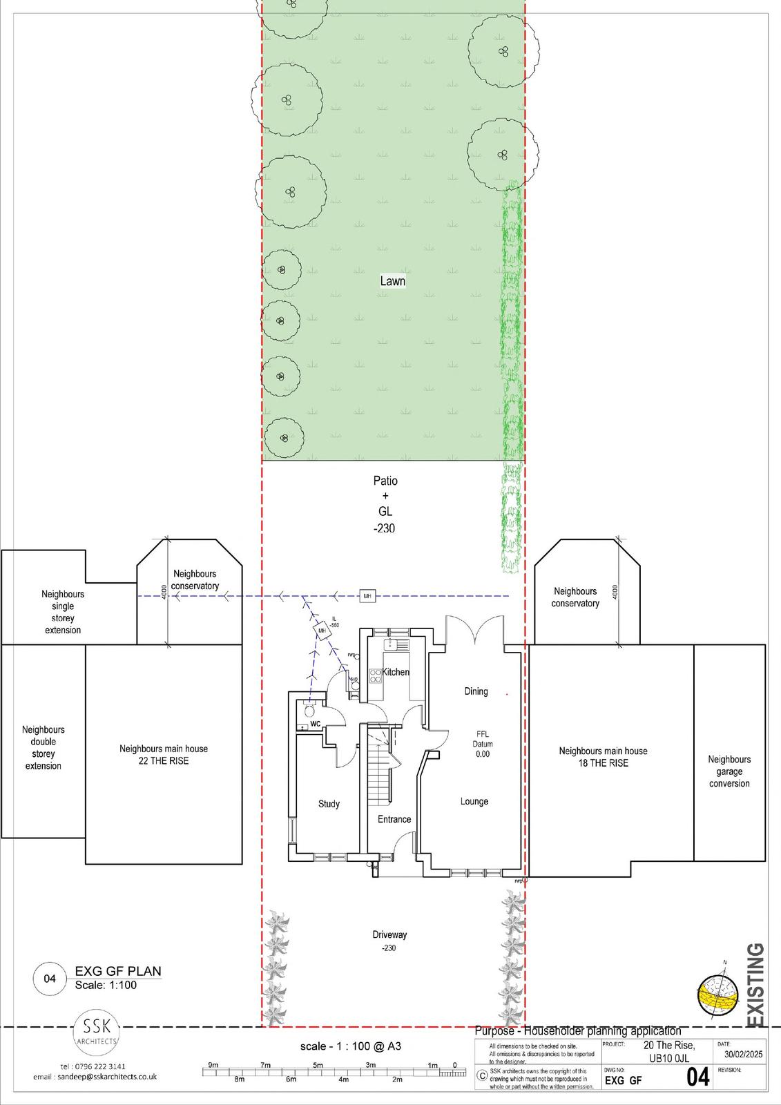
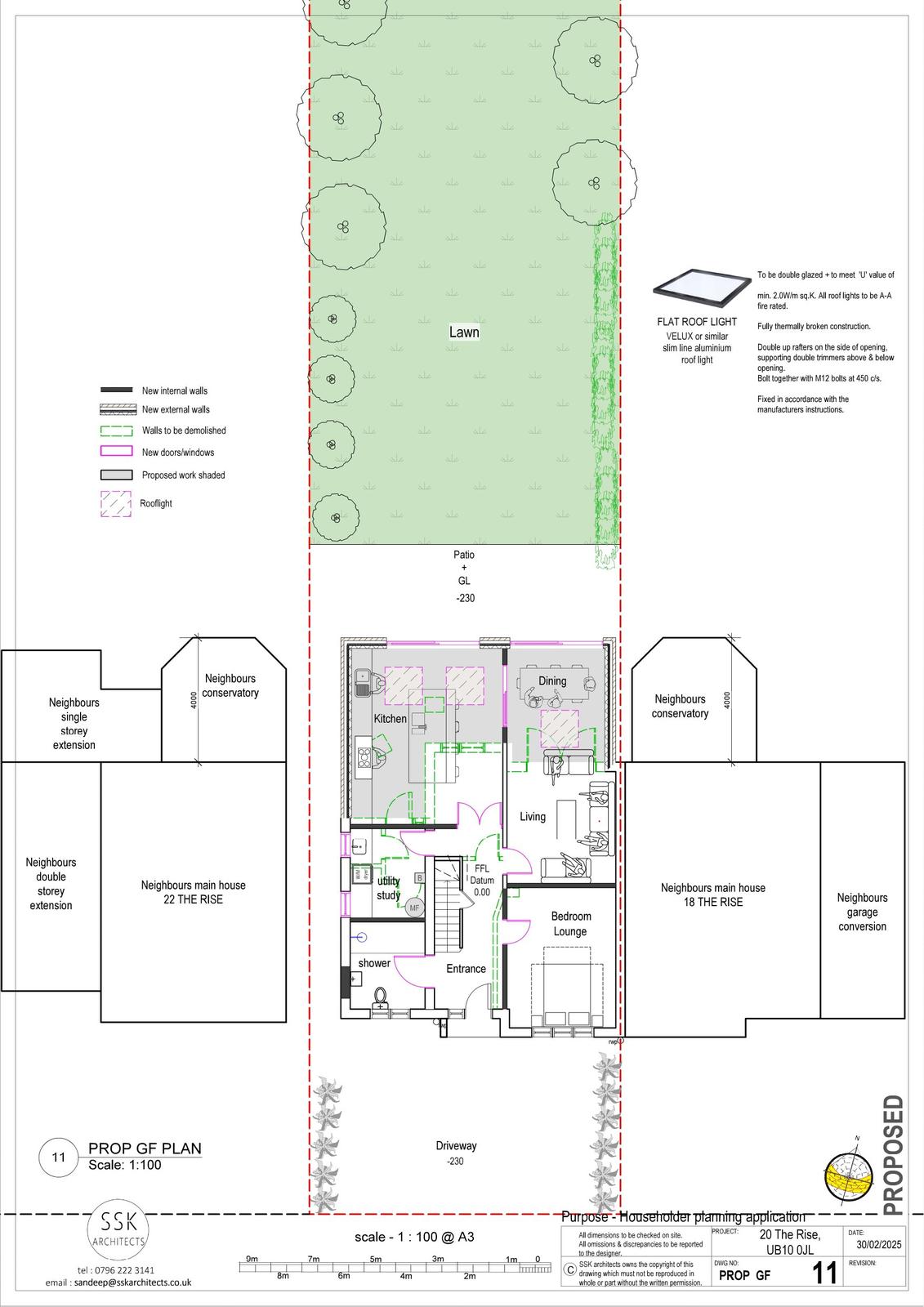
House extension
Received
14 Mar 2025
New homes
0
Full proposal
Erection of single storey side and rear extension, and first floor side extension.
Documents
Have your say
Your comment matters. Councils must consider every representation that raises material planning considerations.