← London Borough of Hillingdon

Status

Approval House extension
Received
13 Jan 2026
New homes
0

Full proposal

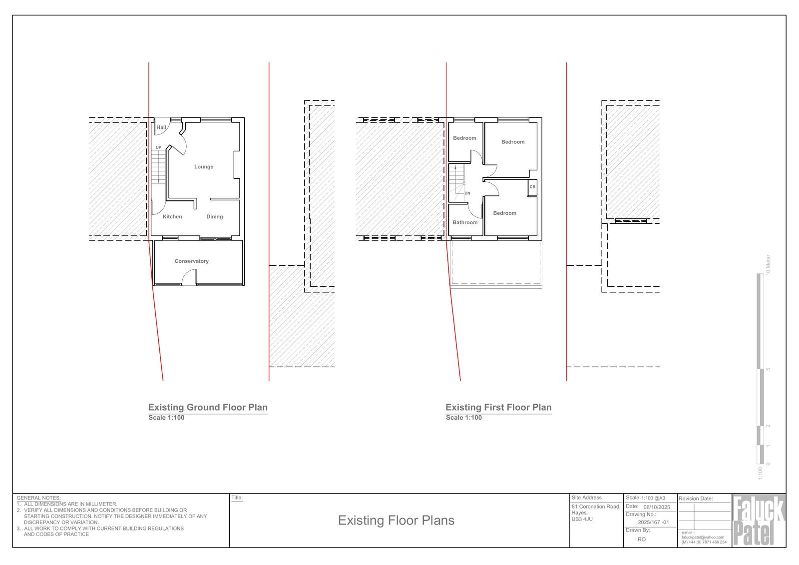
Erection of a part single part two storey wrap around extension to the side and rear

Documents

Document
Archived · Original link
Document
Archived · Original link
Document
Archived · Original link
Document
Archived · Original link
Document
Archived · Original link

Have your say

Your comment matters. Councils must consider every representation that raises material planning considerations.

Write a comment