← Back to London Borough of Hillingdon

Status

Approval New housing
Received 27 Jan 2025
New dwellings 1

What you can do

Take Action

Make your voice heard. Authorities need to hear from people who support new homes.

Summary

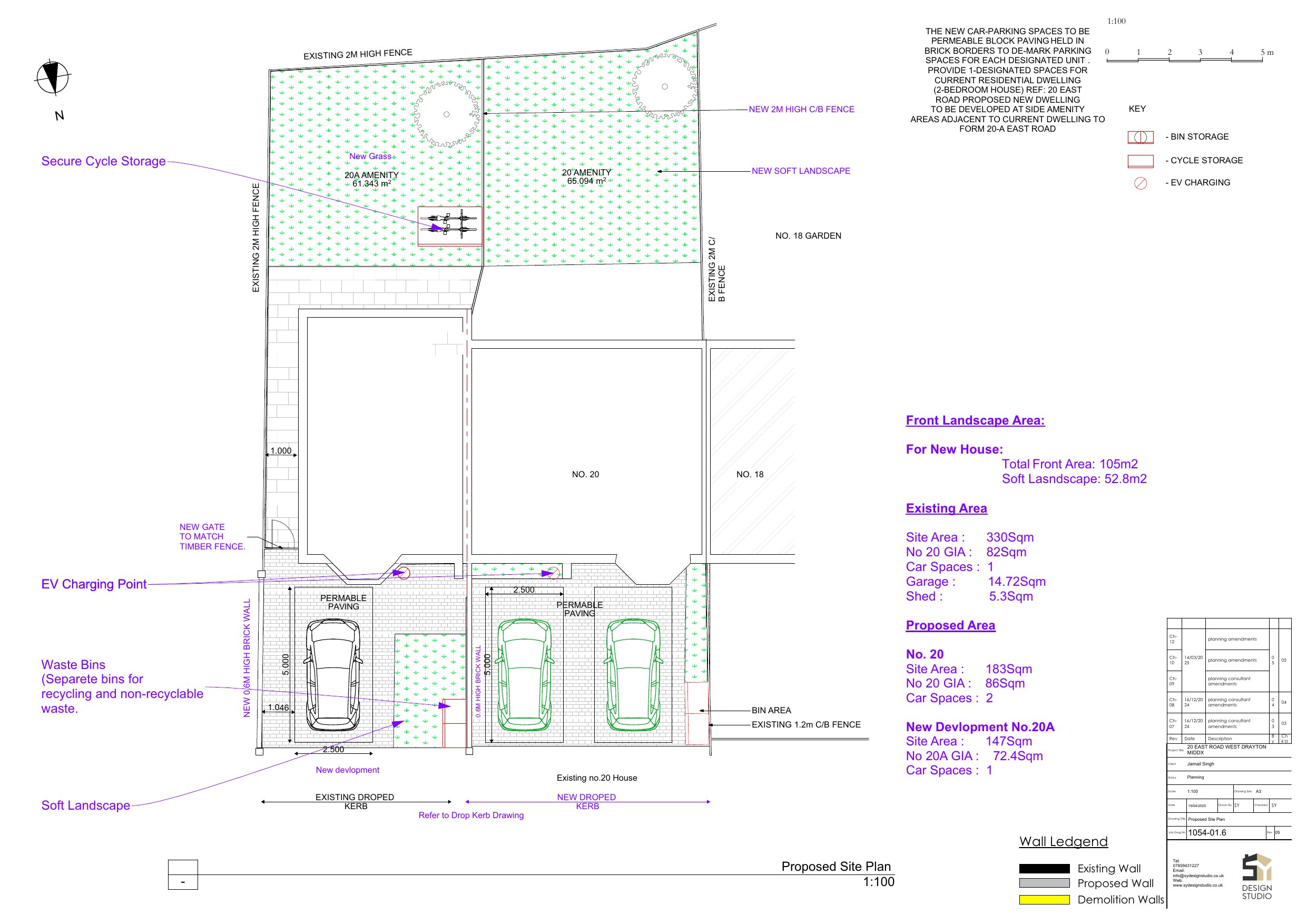
Erection of a two-storey two-bedroom dwelling with dropped kerb, parking and amenity space.

Full Proposal

Erection of a two storey 2-bed dwelling with a new dropped kerb, associated parking and amenity space (amended drawings)

Detail pages

Documents

APPLICATION FORM
Document
Not downloaded · Council link
DECISION NOTICE
Document
Not downloaded · Council link
DESIGN AND ACCESS STATEMENT
Document
Not downloaded · Council link
LOCATION PLAN
Document
Not downloaded · Council link
OFFICERS REPORTS
Document
Not downloaded · Council link
PHOTOGRAPHS (Supporting info)
Document
Not downloaded · Council link
PHOTOGRAPHS (Supporting info)
Document
Not downloaded · Council link
PLAN
Document
Not downloaded · Council link
PLAN
Document
Not downloaded · Council link
PLAN AMENDED
Document
Not downloaded · Council link
PLAN AMENDED
Document
Not downloaded · Council link
SITE LAYOUT - LANDSCAPING
Document
Not downloaded · Council link
SITE LAYOUT - LANDSCAPING
Document
Not downloaded · Council link
SITE LAYOUT - LANDSCAPING AMENDED
Document
Not downloaded · Council link
SITE LAYOUT - LANDSCAPING AMENDED
Document
Not downloaded · Council link
SITE LAYOUT - PROPOSED
Document
Not downloaded · Council link
SITE LAYOUT - PROPOSED AMENDED
Document
Not downloaded · Council link
SUPPORTING INFORMATION
Document
Not downloaded · Council link
SUPPORTING INFORMATION
Document
Not downloaded · Council link
SUPPORTING INFORMATION
Document
Not downloaded · Council link
SUPPORTING INFORMATION
Document
Not downloaded · Council link
SUPPORTING INFORMATION
Document
Not downloaded · Council link
SUPPORTING INFORMATION
Document
Not downloaded · Council link
SUPPORTING INFORMATION
Document
Not downloaded · Council link
SUPPORTING INFORMATION
Document
Not downloaded · Council link
SUPPORTING INFORMATION
Document
Not downloaded · Council link
SUPPORTING INFORMATION
Document
Not downloaded · Council link