← London Borough of Hillingdon
64719/APP/2025/491
London Borough of Hillingdon
Status
Refusal
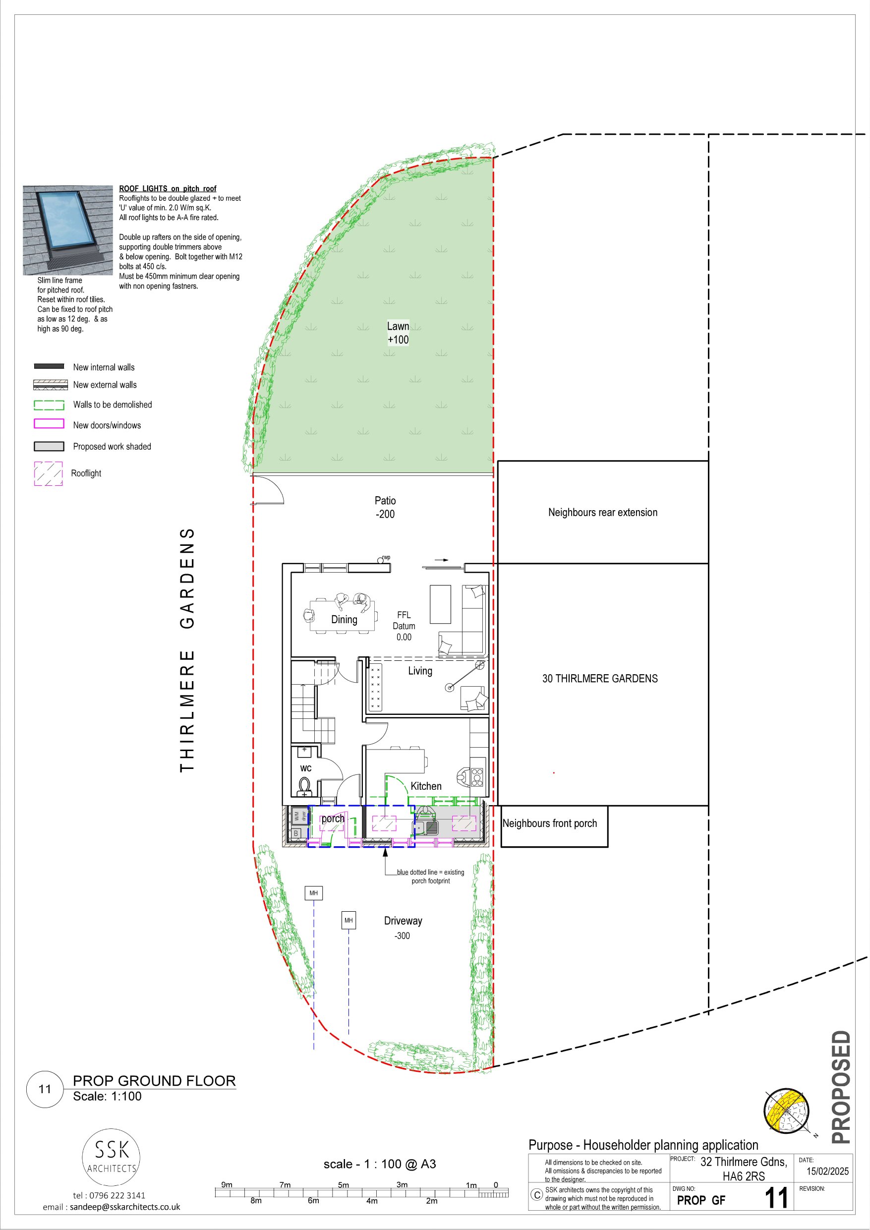
House extension
Received
21 Feb 2025
New homes
0
Full proposal
Erection of a front porch and front extension with internal alterations and installation of 3 roof lights.
Documents
Have your say
Your comment matters. Councils must consider every representation that raises material planning considerations.