← London Borough of Hillingdon

Status

Approval House extension
Received
29 Jan 2025
New homes
0

Summary

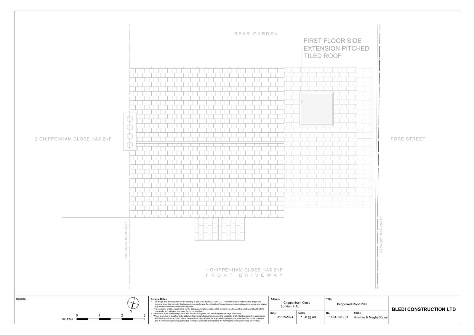
First-floor side extension.

Full proposal

Erection of first floor side extension

Documents

Document
Archived · Original link
Document
Archived · Original link
Document
Archived · Original link
Document
Archived · Original link
Document
Archived · Original link
Document
Archived · Original link
Document
Archived · Original link

Have your say

Your comment matters. Councils must consider every representation that raises material planning considerations.

Write a comment