← Back to London Borough of Hillingdon
Application
71149/APP/2025/198
London Borough of Hillingdon · OCELLA
Status
Approval
House extension
Received
28 Jan 2025
New dwellings
0
What you can do
Take Action
Make your voice heard. Authorities need to hear from people who support new homes.
Summary
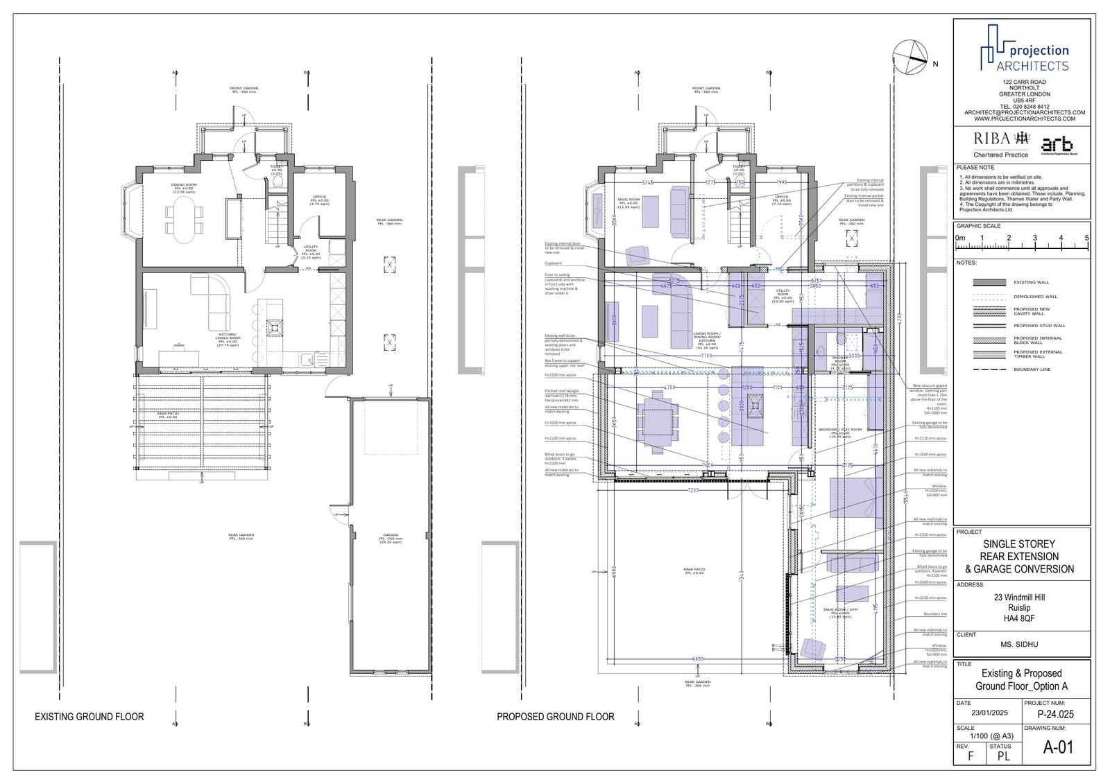
Single-storey side/rear extension, garage conversion to habitable room and first-floor rear extension.
Full Proposal
Erection of a single storey side and rear extension, including the conversion of the existing garage to be to a habitable room. Erection of a first floor rear extension.
Detail pages
- View live detail on council site
- No archived detail page available.
Documents
APPLICATION FORM
Document
Not downloaded
· Council link
DECISION NOTICE
Document
Not downloaded
· Council link
LOCATION PLAN
Document
Not downloaded
· Council link
OFFICERS REPORTS
Document
Not downloaded
· Council link
PLAN
Document
Not downloaded
· Council link
PLAN AMENDED
Document
Not downloaded
· Council link
SUPPORTING INFORMATION
Document
Not downloaded
· Council link