← London Borough of Hillingdon
74987/APP/2025/1116
London Borough of Hillingdon
Status
Approval
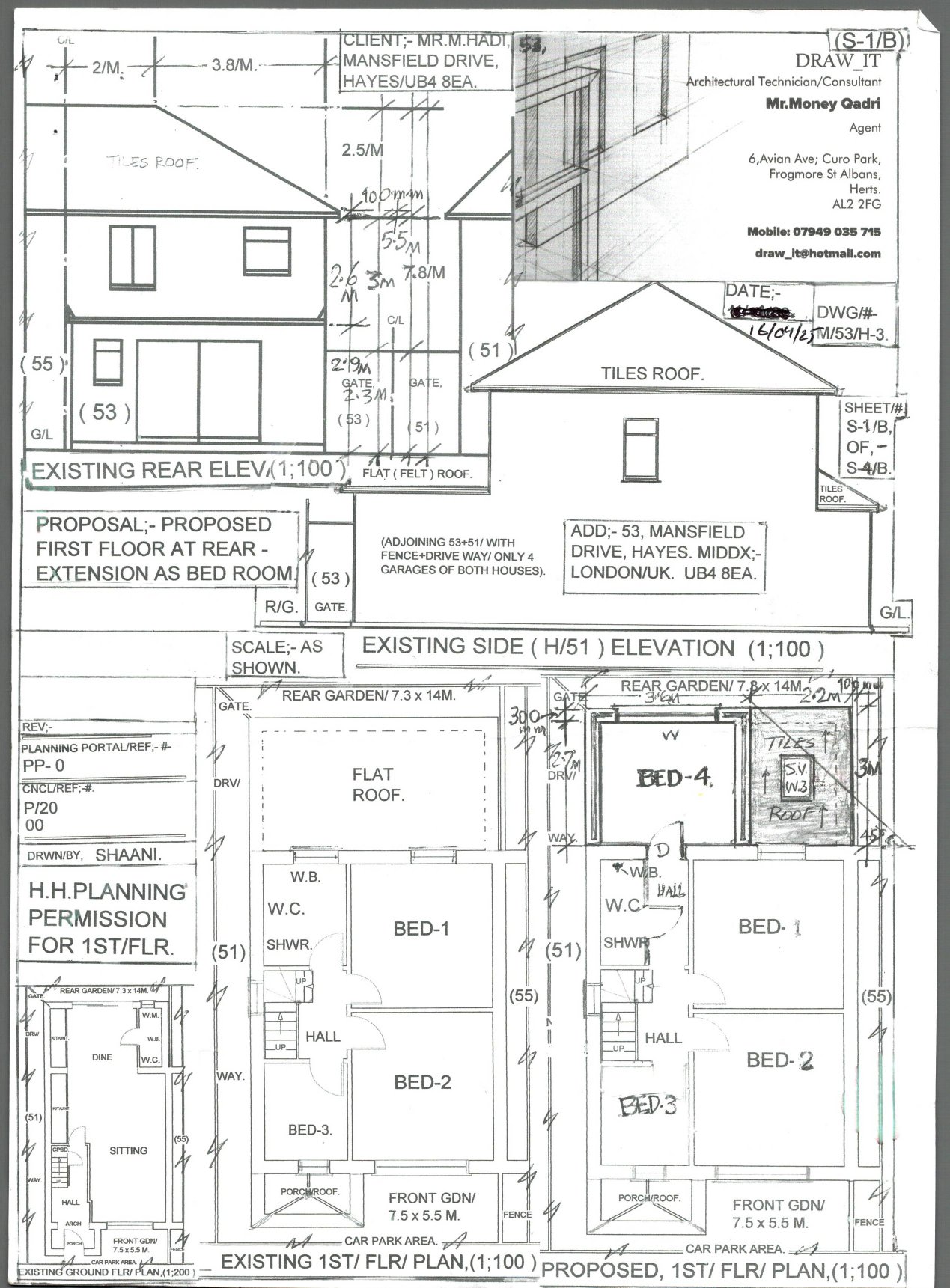
House extension
Received
16 Apr 2025
New homes
0
Full proposal
Erection of a first floor rear extension, and installation of pitched roof to existing rear extension.
Documents
Have your say
Your comment matters. Councils must consider every representation that raises material planning considerations.