← London Borough of Hillingdon

Status

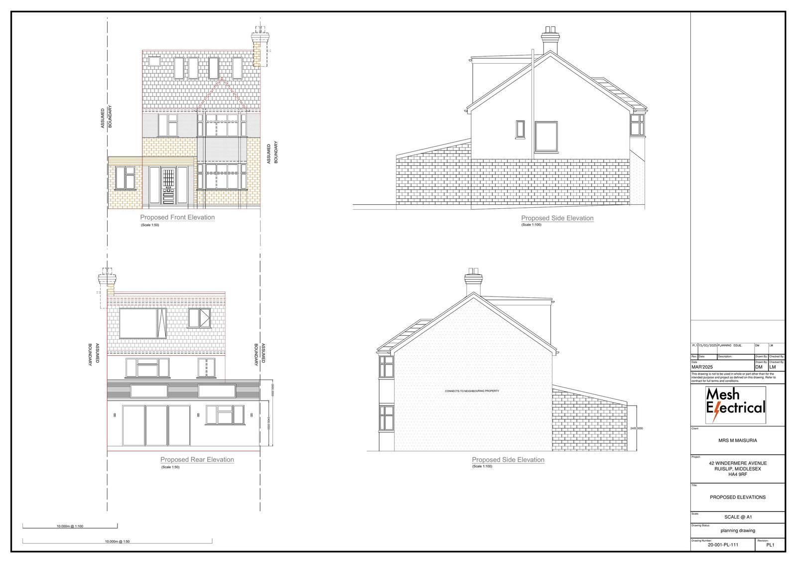
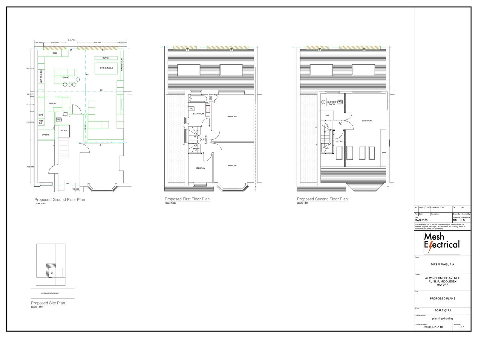
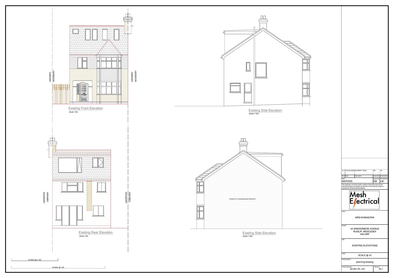
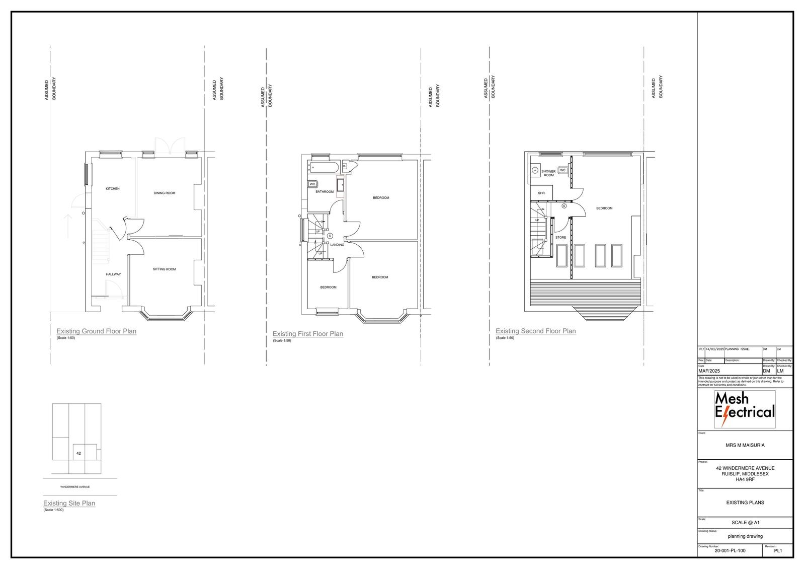
Approval House extension
Received
14 Mar 2025
New homes
0

Full proposal

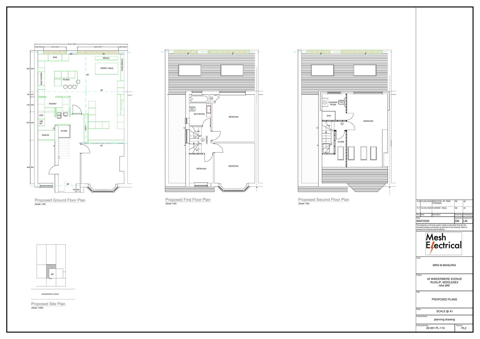
Erection of a single storey wrap around extension to the side and rear, erection of front porch

Documents

Document
Archived · Original link
Document
Archived · Original link
Document
Archived · Original link
Document
Archived · Original link
Document
Archived · Original link
Document
Archived · Original link
Document
Archived · Original link
Document
Archived · Original link
Document
Archived · Original link
Document
Archived · Original link

Have your say

Your comment matters. Councils must consider every representation that raises material planning considerations.

Write a comment