← London Borough of Hillingdon

Status

Approval House extension
Received
24 Apr 2025
New homes
0

Full proposal

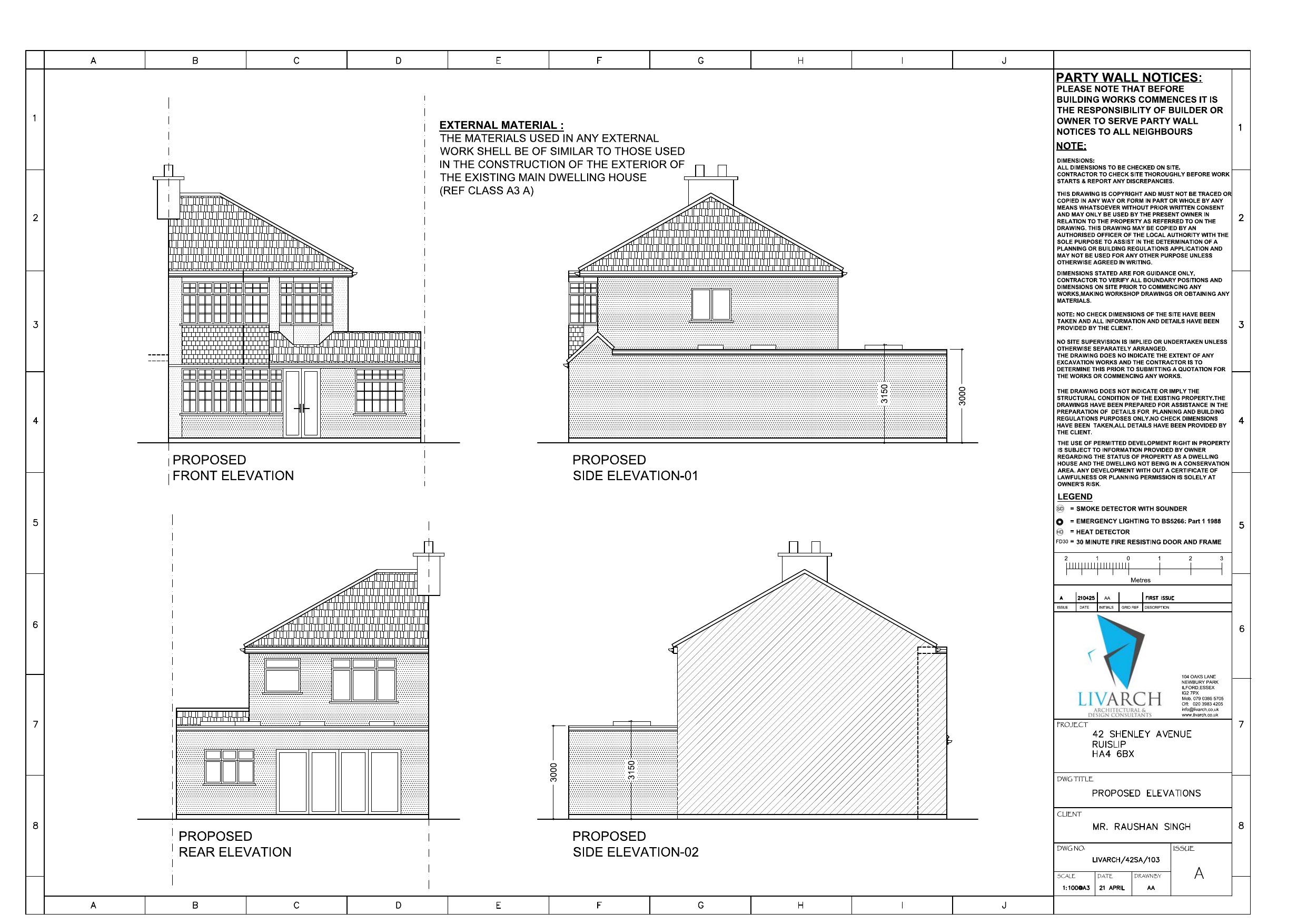
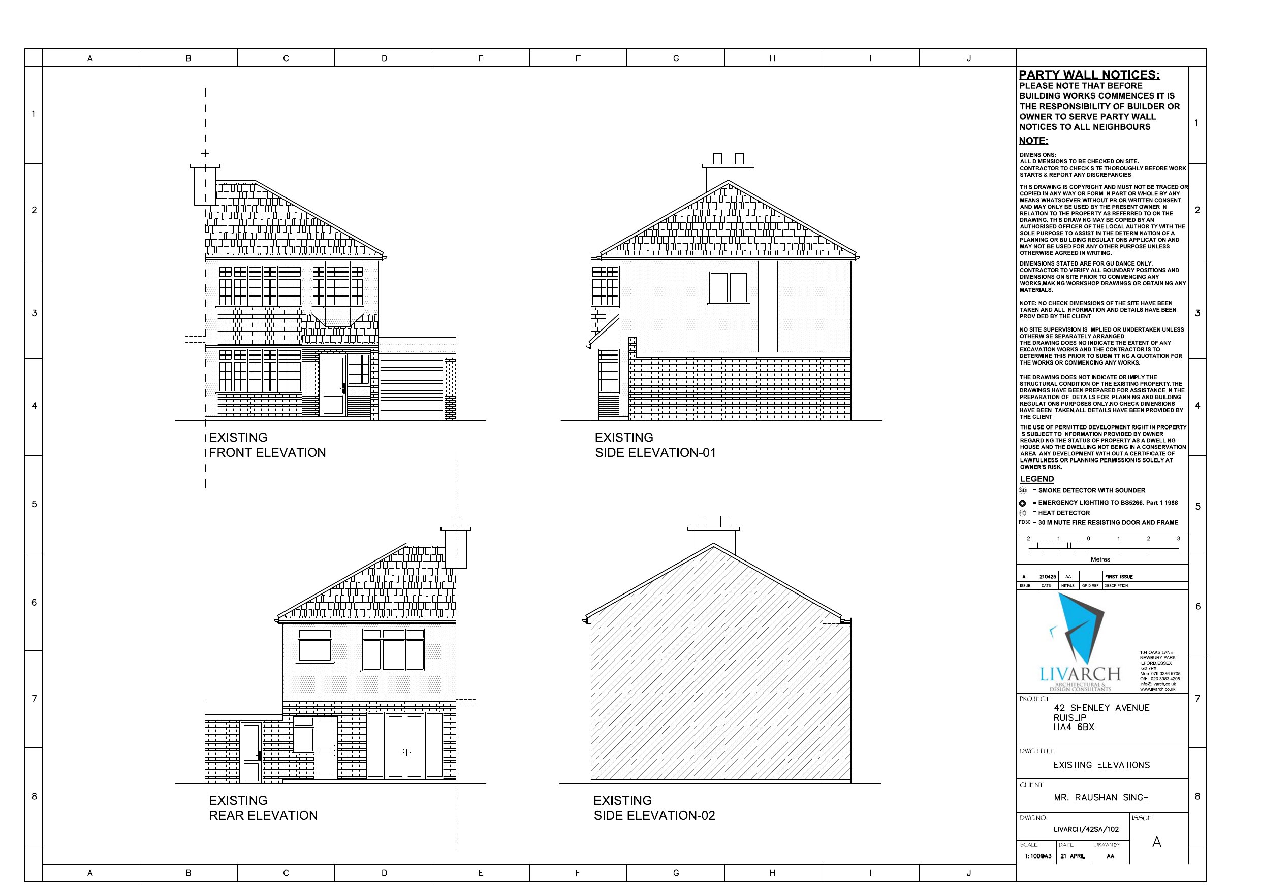
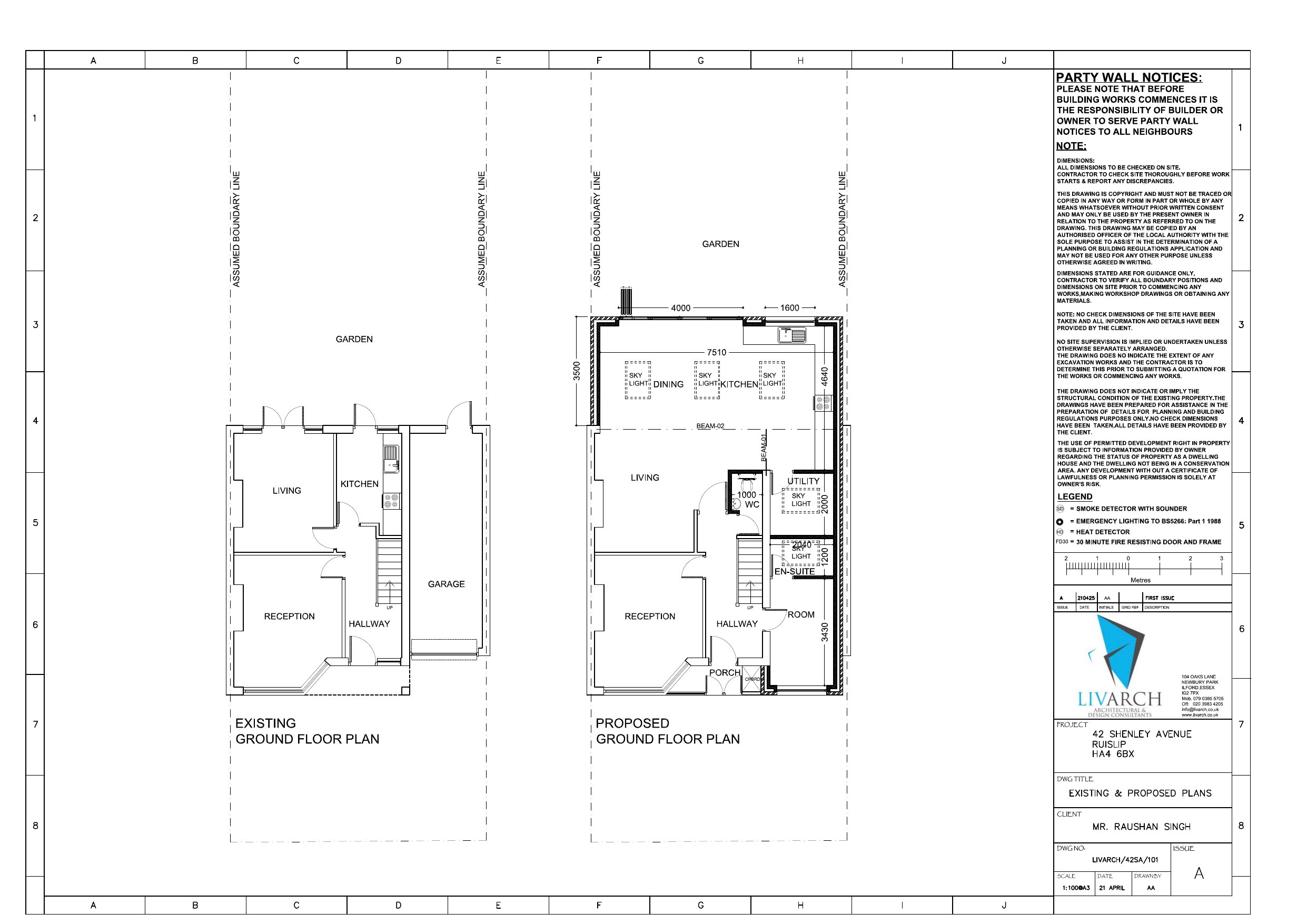
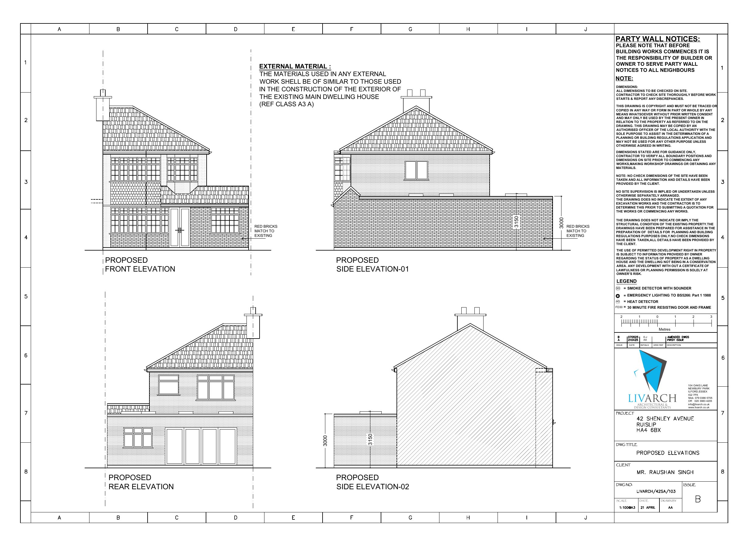
Erection of single storey front, side, and rear extension with conversion of garage into habitable room with amendments to fenestration.

Have your say

Your comment matters. Councils must consider every representation that raises material planning considerations.

Write a comment