← London Borough of Hillingdon

Status

Refusal Change of use
Received
09 May 2025
New homes
0

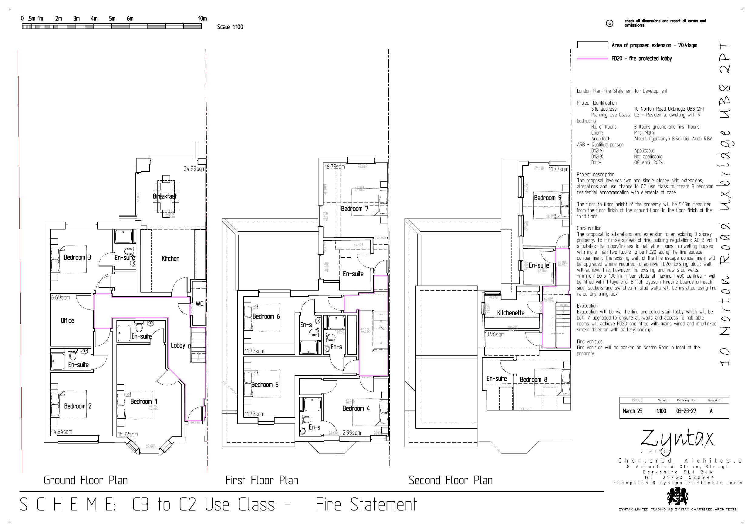
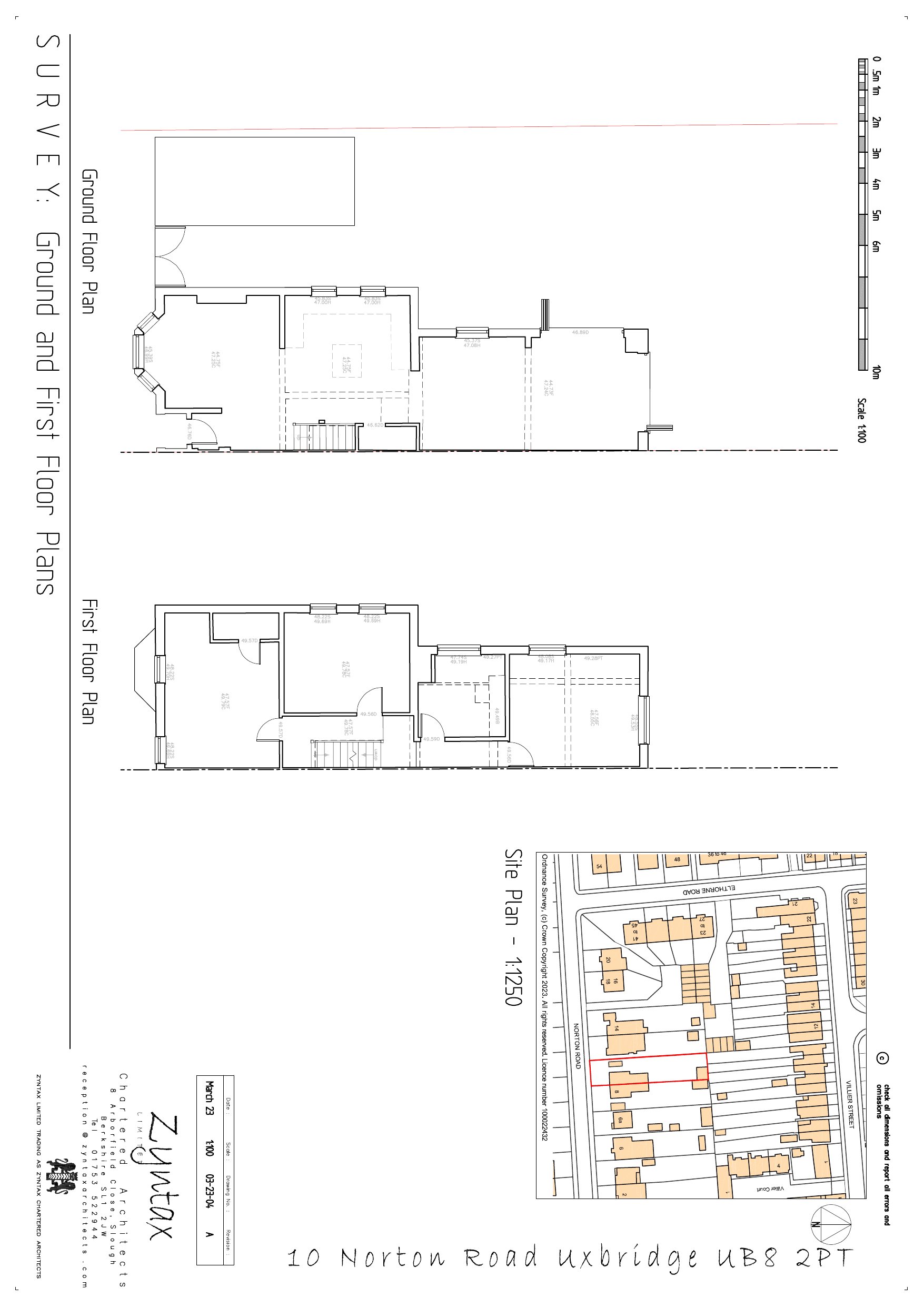
Full proposal

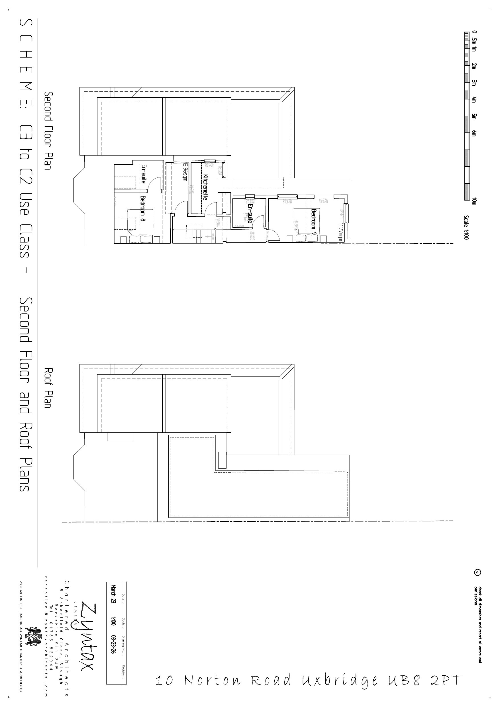
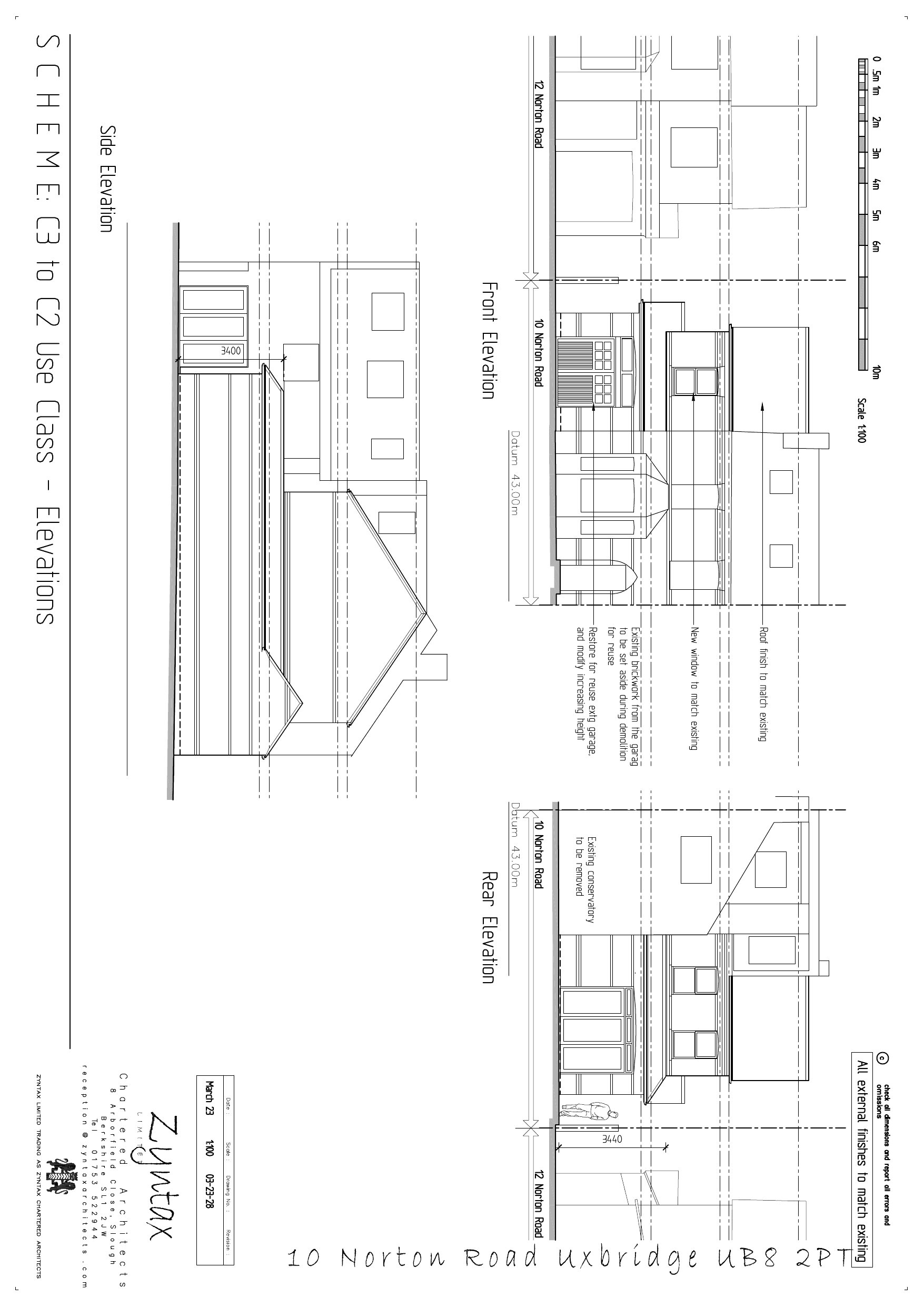
Erection of a two storey side extension with pitched roof and single storey side and rear extension with pitched and flat roof. Change of use from Class C3 - dwelling house, to Class C2 - Use for the provision of residential accommodation with elements of care being provided for adults.

Documents

Document
Archived · Original link
Document
Archived · Original link
Document
Archived · Original link
Document
Archived · Original link
Document
Archived · Original link
Document
Archived · Original link
Document
Archived · Original link
Document
Archived · Original link
Document
Archived · Original link
Document
Archived · Original link
Document
Archived · Original link

Have your say

Your comment matters. Councils must consider every representation that raises material planning considerations.

Write a comment