← London Borough of Hillingdon

Status

Approval House extension
Received
21 Mar 2025
New homes
0

Full proposal

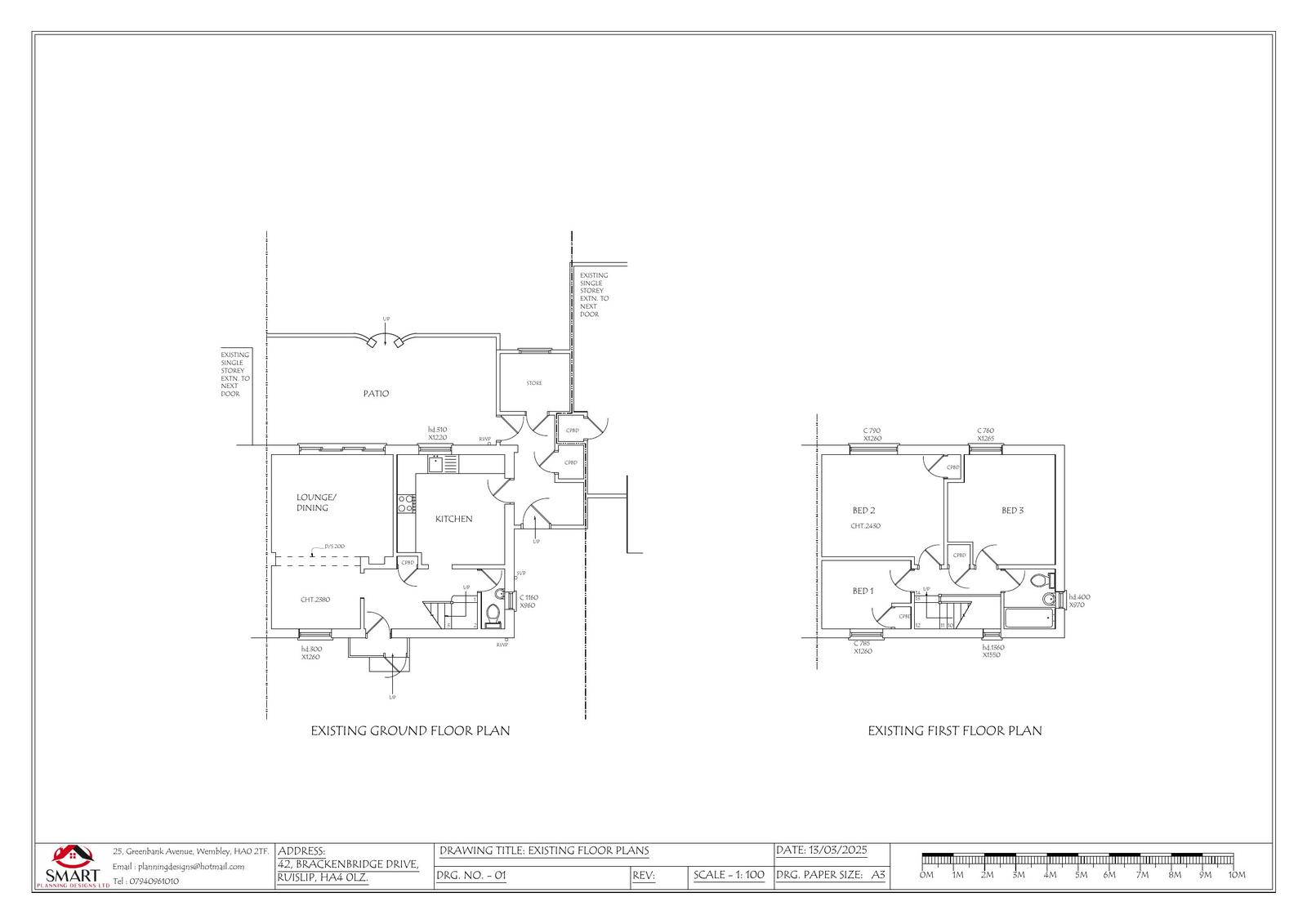
Erection of single storey extension to the rear and increase in roof height of existing side extension and front dummy pitched roof.

Documents

Document
Archived · Original link
Document
Archived · Original link
Document
Archived · Original link
Document
Archived · Original link

Have your say

Your comment matters. Councils must consider every representation that raises material planning considerations.

Write a comment