← London Borough of Hillingdon

Status

Approval House extension
Received
16 May 2025
New homes
0

Full proposal

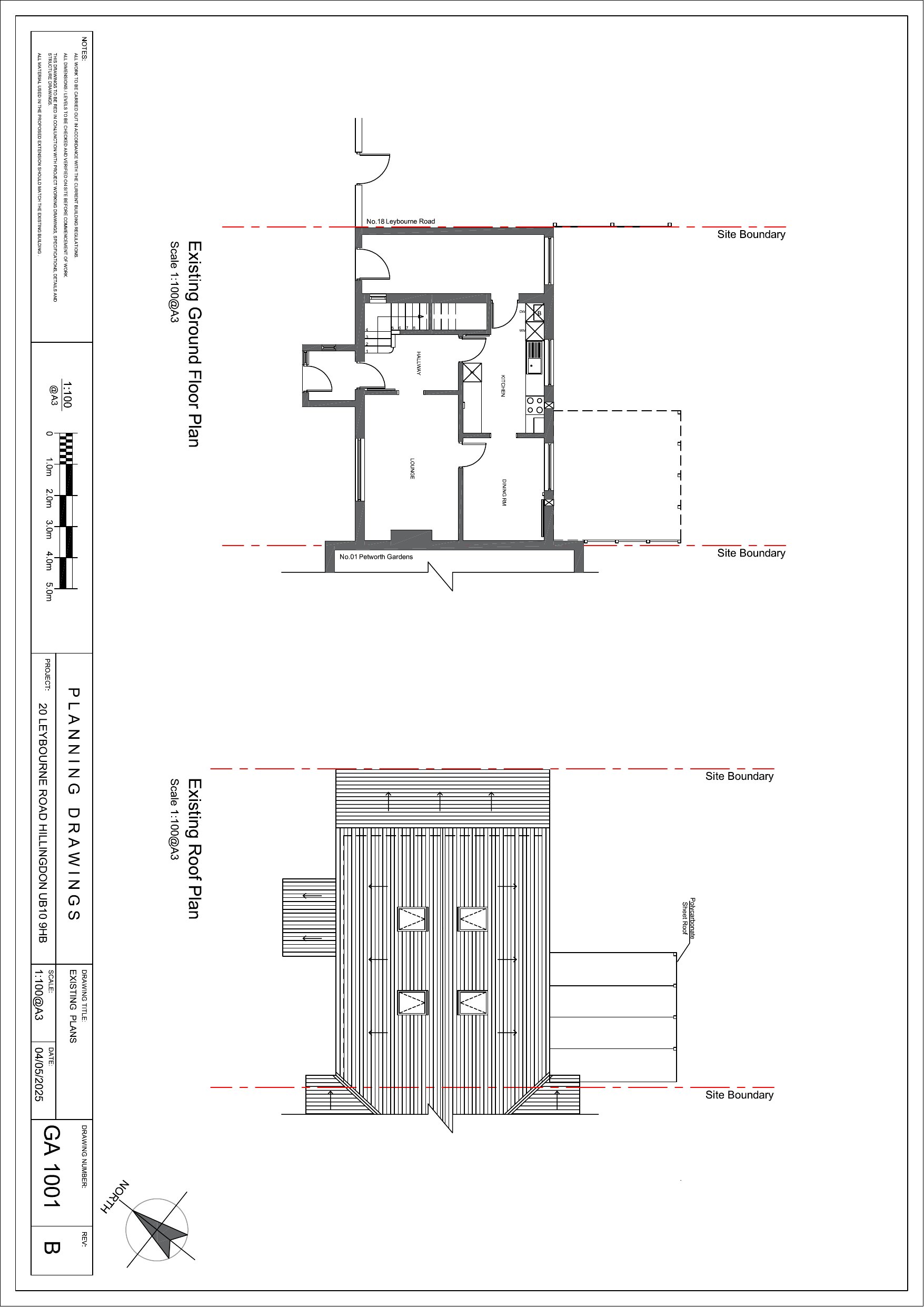
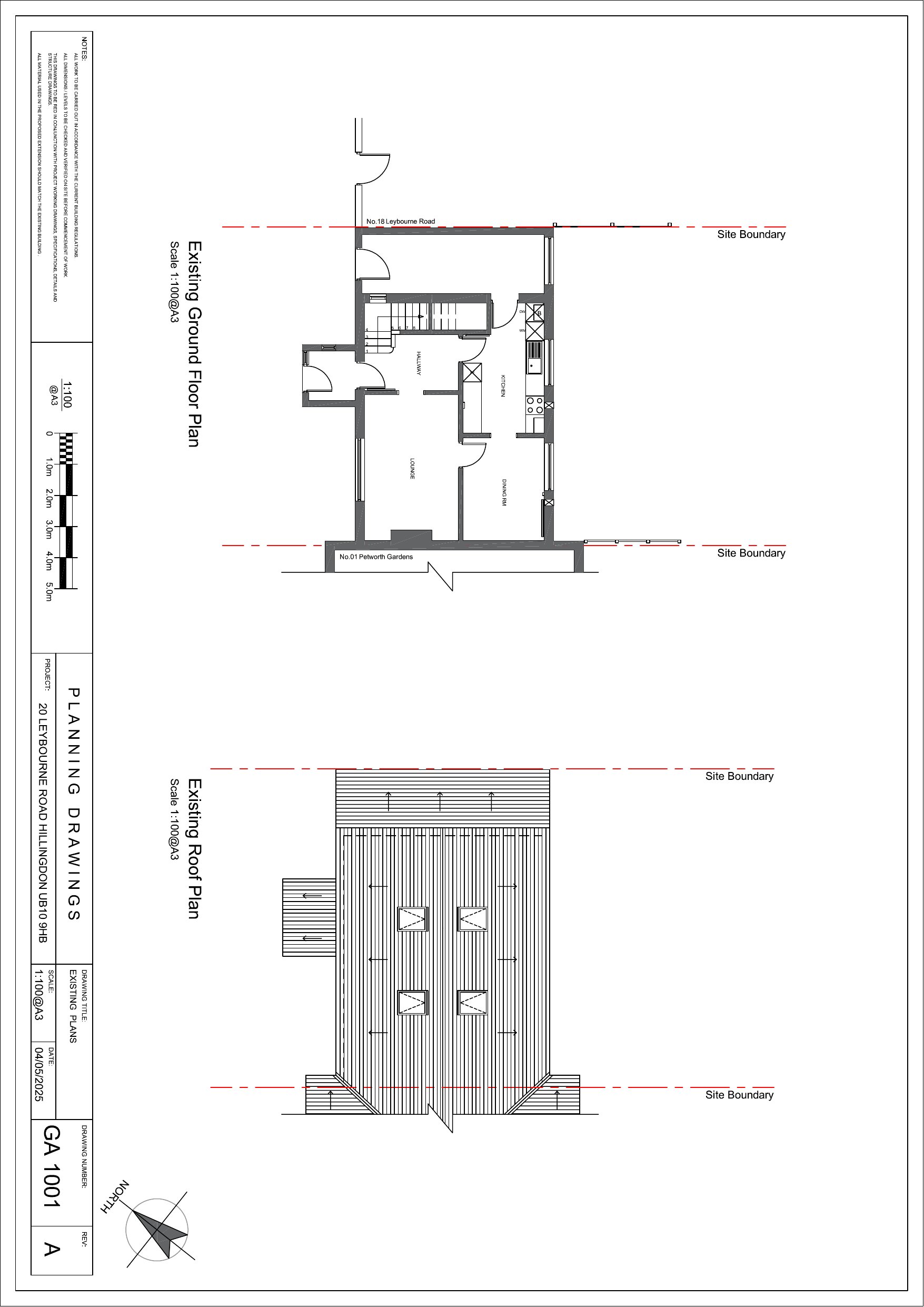
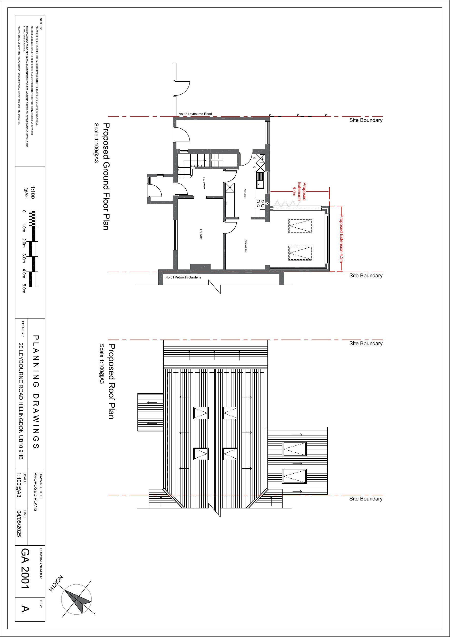
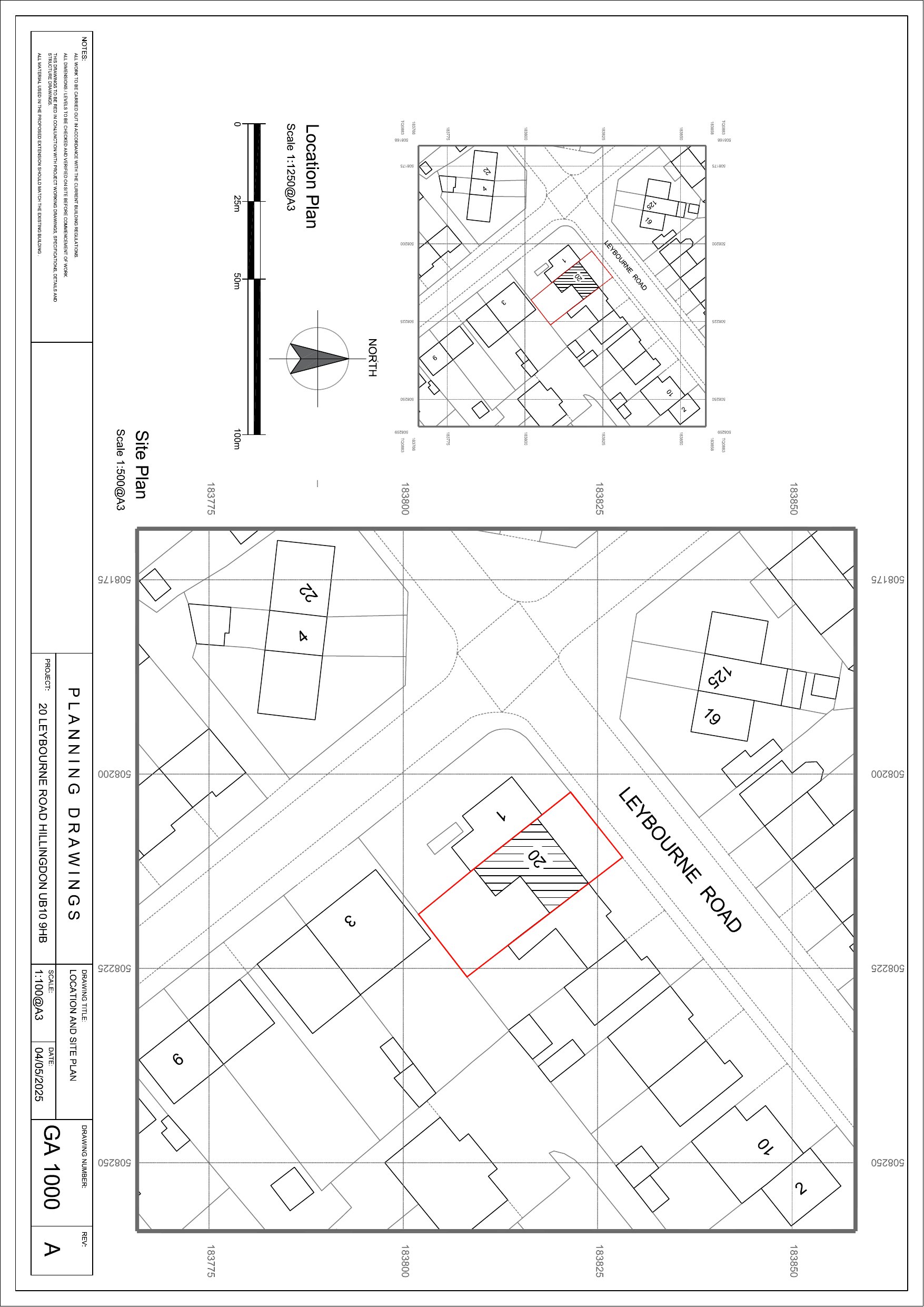
Erection of a single storey extension to the rear following demolition of existing canopy

Documents

Document
Archived · Original link
Document
Archived · Original link
Document
Archived · Original link
Document
Archived · Original link
Document
Archived · Original link
Document
Archived · Original link
Document
Archived · Original link
Document
Archived · Original link
Document
Archived · Original link
Document
Archived · Original link

Have your say

Your comment matters. Councils must consider every representation that raises material planning considerations.

Write a comment