← London Borough of Hillingdon

Status

Refusal Change of use
Received
21 Jan 2026
New homes
0

Full proposal

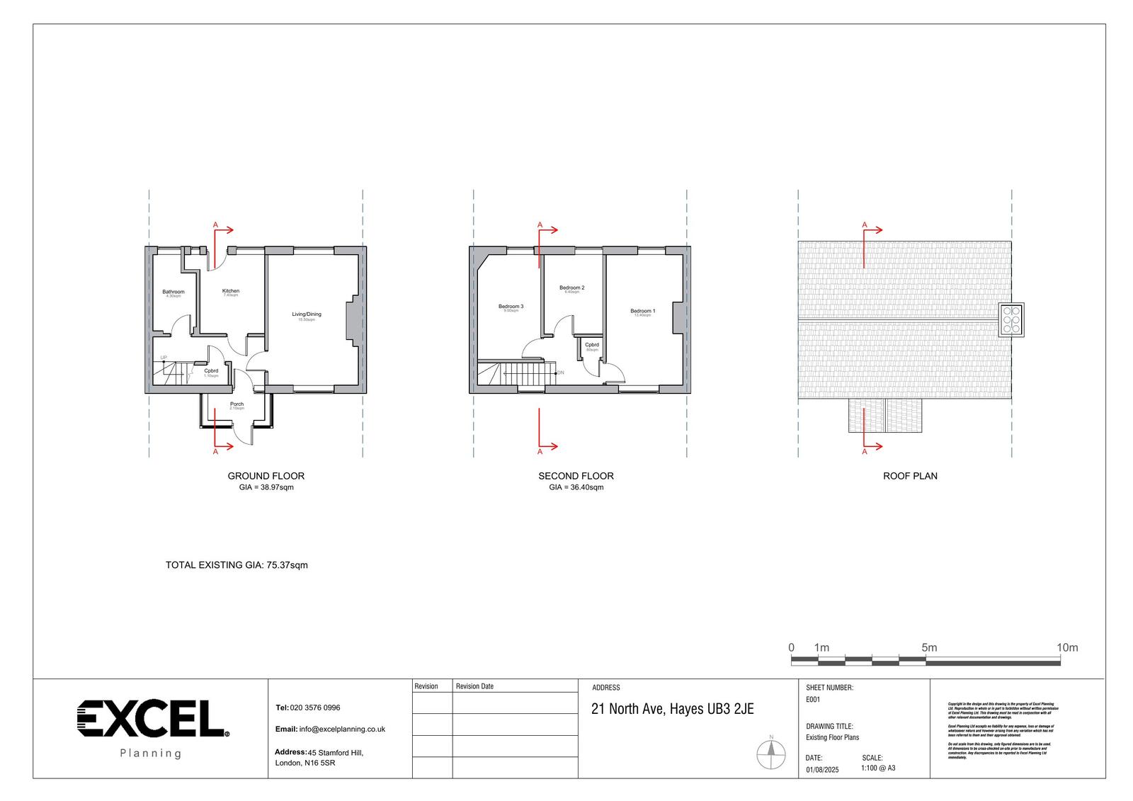
Construction of a part two storey, part single storey rear extension; together with the conversion of a single family dwellinghouse (Use Class C3) into a six-bed person HMO, with a maximum occupancy of six people and associated works.

Documents

Document
Archived · Original link
Document
Archived · Original link
Document
Archived · Original link
Document
Archived · Original link
Document
Archived · Original link

Have your say

Your comment matters. Councils must consider every representation that raises material planning considerations.

Write a comment