← Back to Hinckley & Bosworth Borough Council
Application
24/01091/FUL
Hinckley & Bosworth Borough Council · IDOX
Status
Permitted
New housing
Received
29 Nov 2024
New dwellings
3
What you can do
Take Action
Make your voice heard. Authorities need to hear from people who support new homes.
Summary
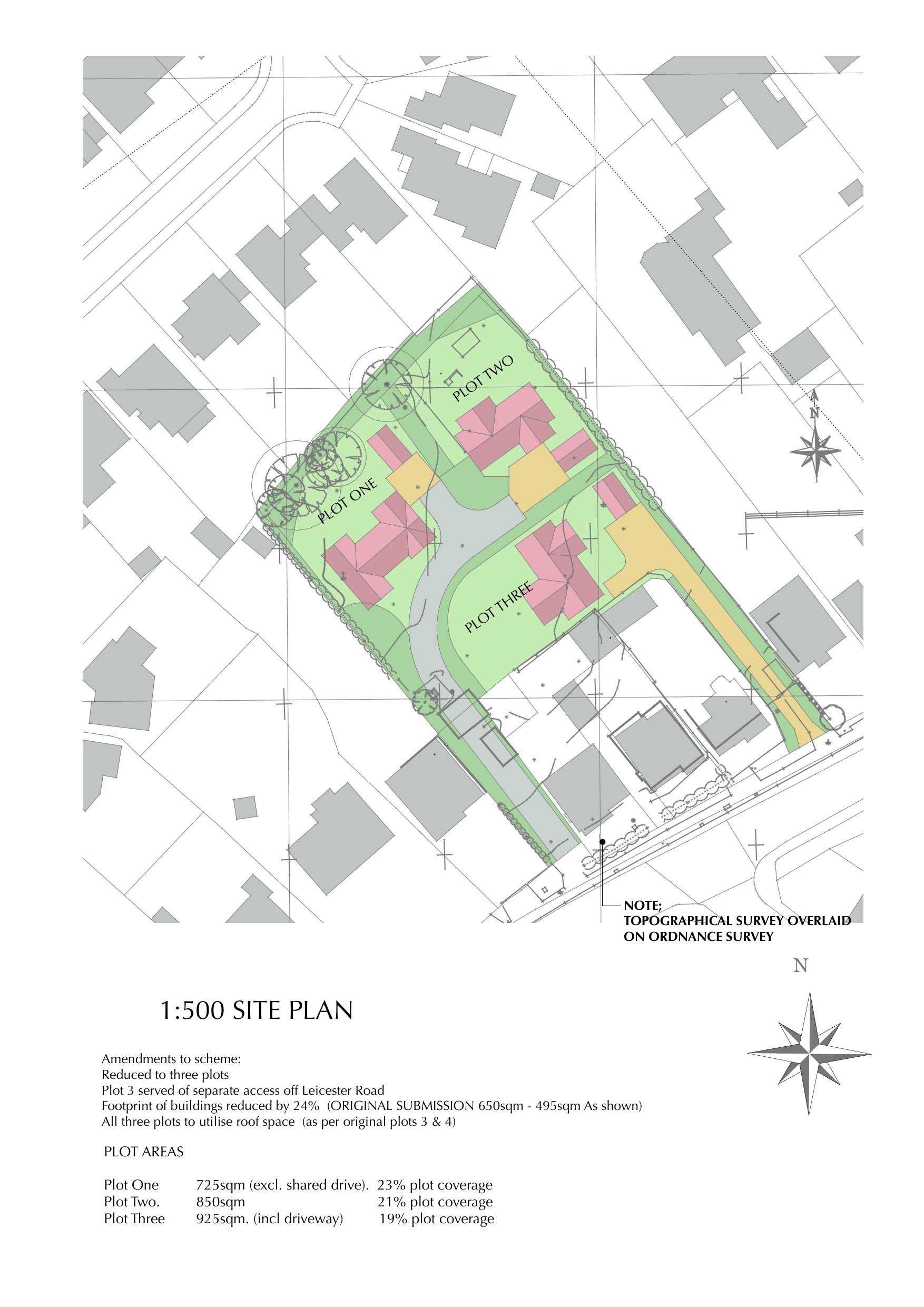
Erection of three new dwellings.
Full Proposal
Erection of three dwellings
Detail pages
- View live detail on council site
- No archived detail page available.
Documents
Application Form
1APP Public Form
Not downloaded
· Council link
Biodiversity Net gain metric
Technical Assessments/Appraisals/Surveys
Not downloaded
· Council link
Biodiversity Statement
Technical Assessments/Appraisals/Surveys
Not downloaded
· Council link
Biodiversity Statement (24-060 V1-1)
Technical Assessments/Appraisals/Surveys
Not downloaded
· Council link
Decision Notice
Decision Notice
Not downloaded
· Council link
Delegated Report
Delegated Report - Officer
Not downloaded
· Council link
HBBC Drainage
Consultation Response
Not downloaded
· Council link
HBBC Environmental Services - Pollution
Consultation Response
Not downloaded
· Council link
LCC Ecology
Consultation Response
Not downloaded
· Council link
LCC Ecology
Consultation Response
Not downloaded
· Council link
LCC Highways
Consultation Response
Not downloaded
· Council link
Planning Statement
Technical Assessments/Appraisals/Surveys
Not downloaded
· Council link
Plot Coverages
Development Control Plans
Not downloaded
· Council link
Archived copy
· Council link
Proposed Site Sections
Technical Assessments/Appraisals/Surveys
Not downloaded
· Council link
Revised BNG Metric
Technical Assessments/Appraisals/Surveys
Not downloaded
· Council link
Site Plan
Approved Plans
Archived copy
· Council link
Tree Report
Technical Assessments/Appraisals/Surveys
Not downloaded
· Council link