← Hinckley & Bosworth Borough Council

Status

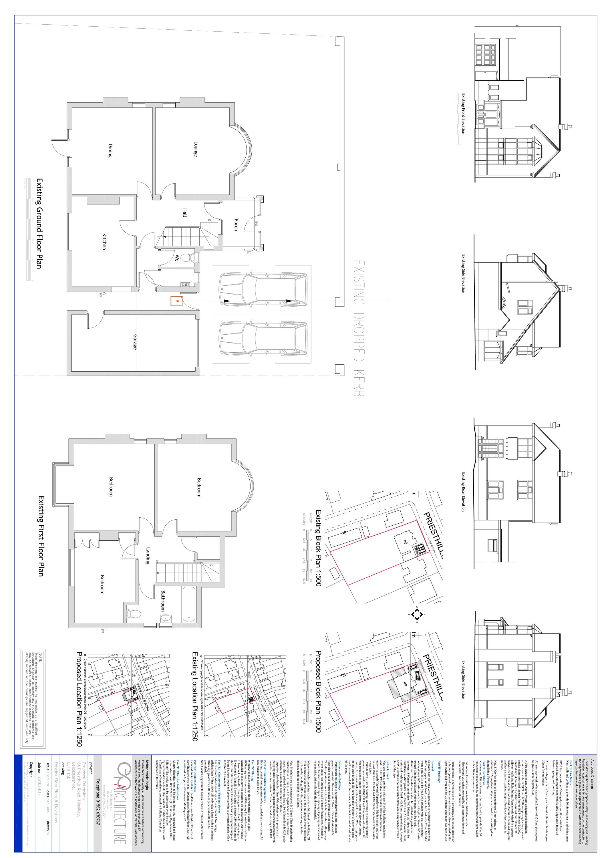
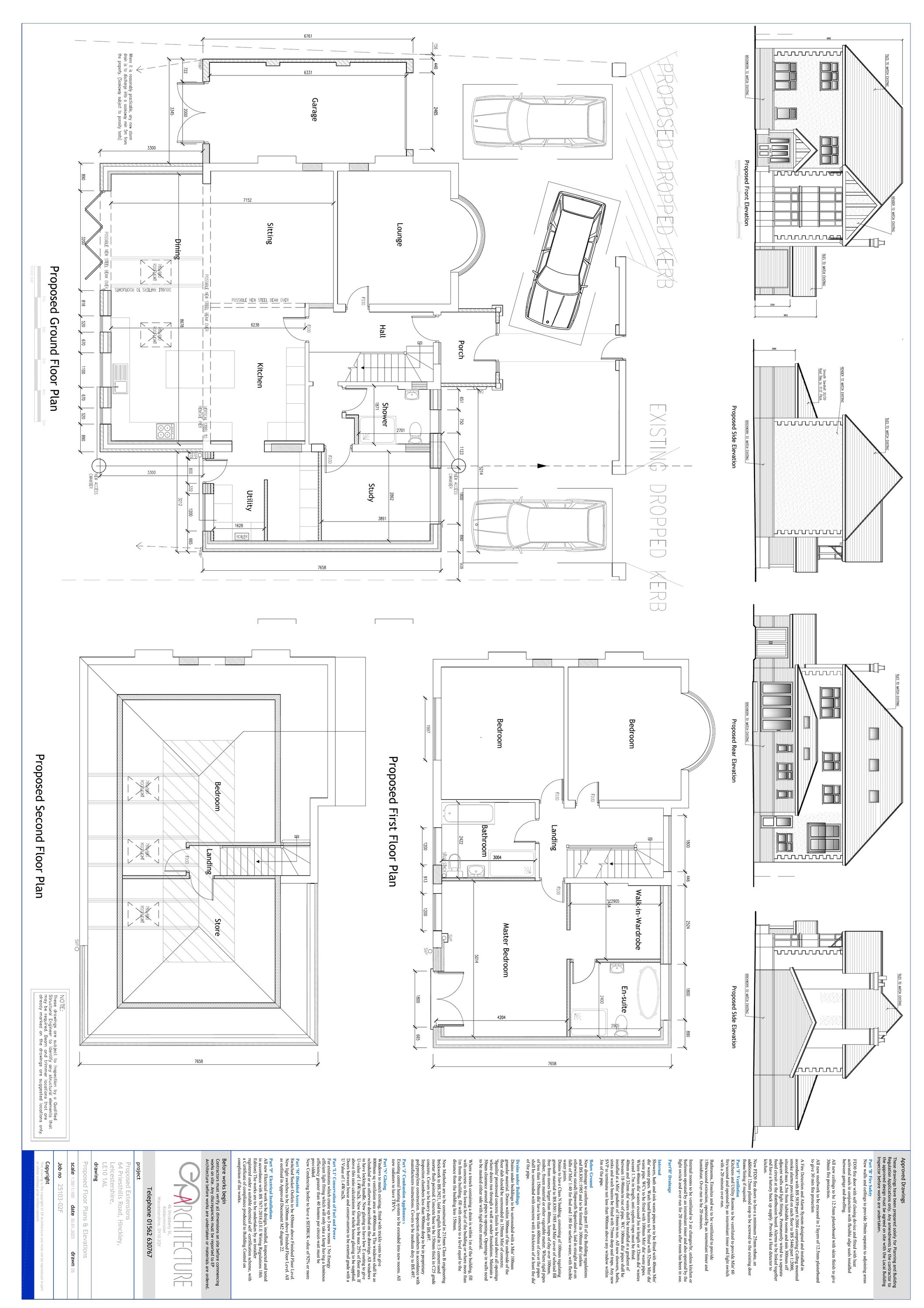
Permitted House extension
Received
28 May 2025
New homes
0

Full proposal

Two storey front and side with single storey rear and side extensions with internal alterations and raised ridge loft conversion

Documents

Technical Assessments/Appraisals/Surveys
Archived · Original link
1APP Public Form
Archived · Original link
1APP Public Form
Archived · Original link
Decision Notice
Archived · Original link
Consultation Response
Archived · Original link
Consultation Response
Archived · Original link
Consultation Response
Archived · Original link
Additional Tech Assessments/Appraisals/Surveys
Archived · Original link

Have your say

Your comment matters. Councils must consider every representation that raises material planning considerations.

Write a comment