← Hinckley & Bosworth Borough Council
26/00013/HOU
Hinckley & Bosworth Borough Council
Status
Awaiting decision
House extension
Received
07 Jan 2026
New homes
0
Full proposal
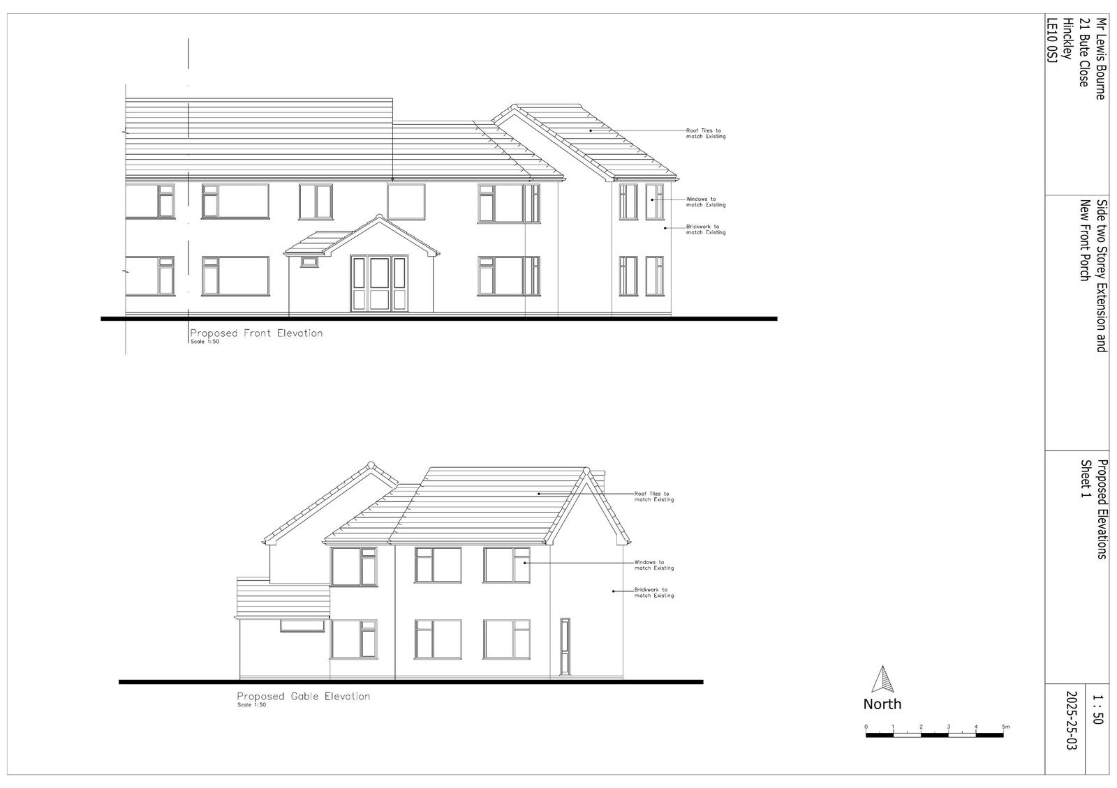
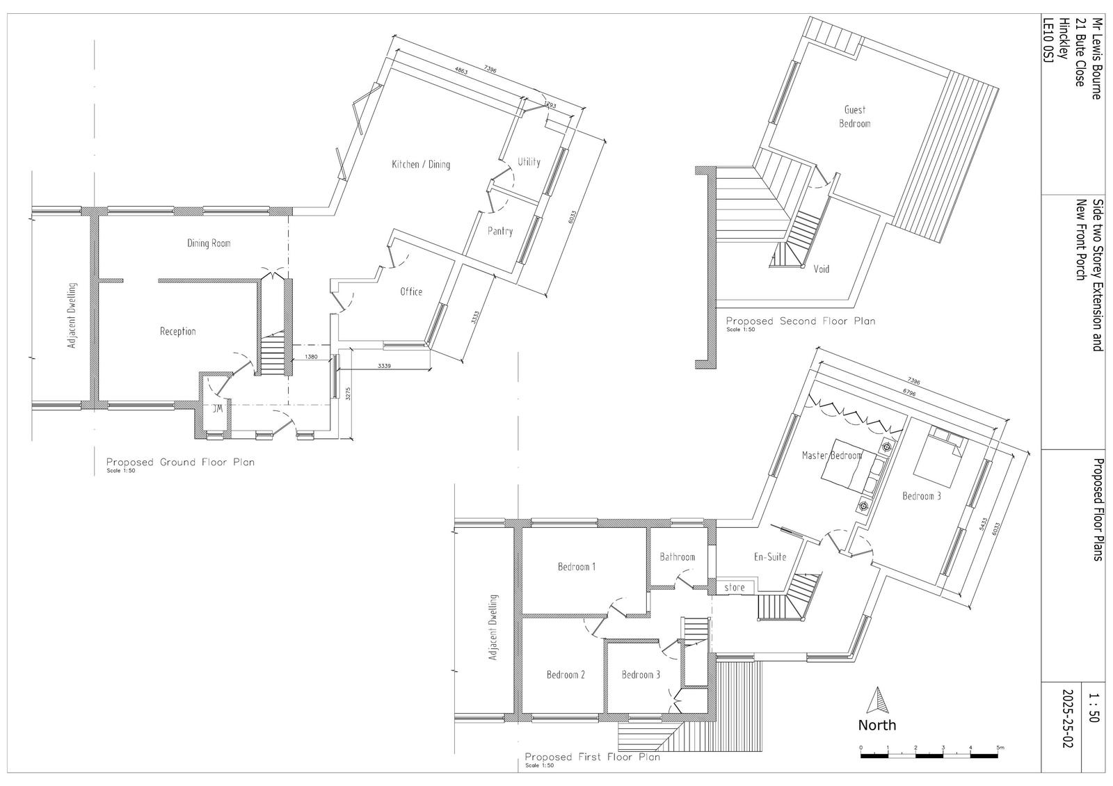
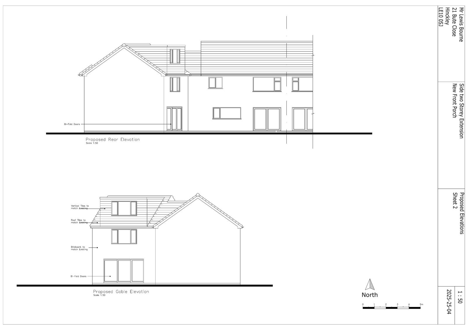
Erection of a two storey side extension
Documents
Have your say
Your comment matters. Councils must consider every representation that raises material planning considerations.