← Back to Hinckley & Bosworth Borough Council
Application
26/00045/FUL
Hinckley & Bosworth Borough Council · IDOX
Status
Awaiting decision
Received
21 days ago
New dwellings
n/a
What you can do
Take Action
Make your voice heard. Authorities need to hear from people who support new homes.
Full Proposal
Conversion of existing post office to a 12 bedroom luxury HMO (House in Multiple Occupation)
Detail pages
- View live detail on council site
- No archived detail page available.
Documents
Application Form
1APP Public Form
Not downloaded
· Council link
Design and Access Statement
Design Statement
Not downloaded
· Council link
Existing Elevations, Drg No. 25-69-PT2-PL05
Development Control Plans
Not downloaded
· Council link
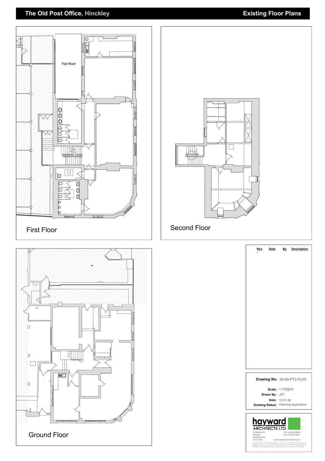
Existing Floor Plans, Drg No. 25-69-PT2-PL03
Development Control Plans
Not downloaded
· Council link
HBBC ES Pollution 2.
Consultation Response
Not downloaded
· Council link
Heritage Statement
Technical Assessments/Appraisals/Surveys
Not downloaded
· Council link
Parking Plan, Drg No. 25-69-PT2-PL06
Development Control Plans
Not downloaded
· Council link
Proposed Elevations, Drg No. 25-69-PT2-PL04
Development Control Plans
Not downloaded
· Council link
Proposed Floor Plans, Drg No. 25-69-PT2-PL02
Development Control Plans
Archived copy
· Council link
Site Location Plan, Drg No. 25-69-PT2-PL01
Site Location Plans
Archived copy
· Council link