← Hinckley & Bosworth Borough Council
26/00167/HOU
Hinckley & Bosworth Borough Council
Status
Awaiting decision
House extension
Received
Last month
New homes
0
Full proposal
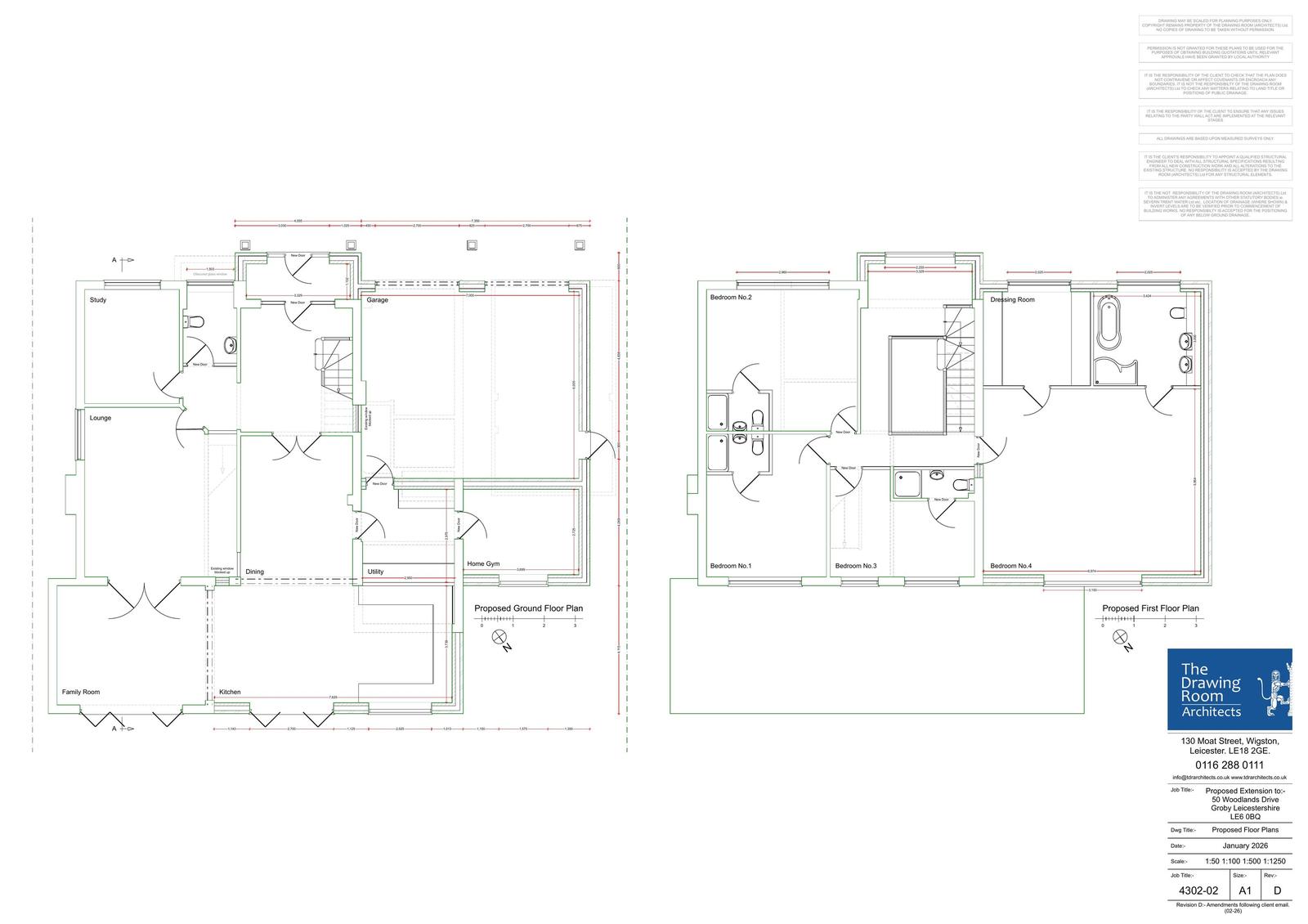
Two storey side extension, two storey extension and canopy to front elevation, single storey rear extension and replacement of extant flat roof
Documents
Development Control Plans
Archived
· Original link
Development Control Plans
Archived
· Original link
Development Control Plans
Archived
· Original link
Have your say
Your comment matters. Councils must consider every representation that raises material planning considerations.