← Hinckley & Bosworth Borough Council

Status

Awaiting decision House extension
Received
Last month
New homes
0

Full proposal

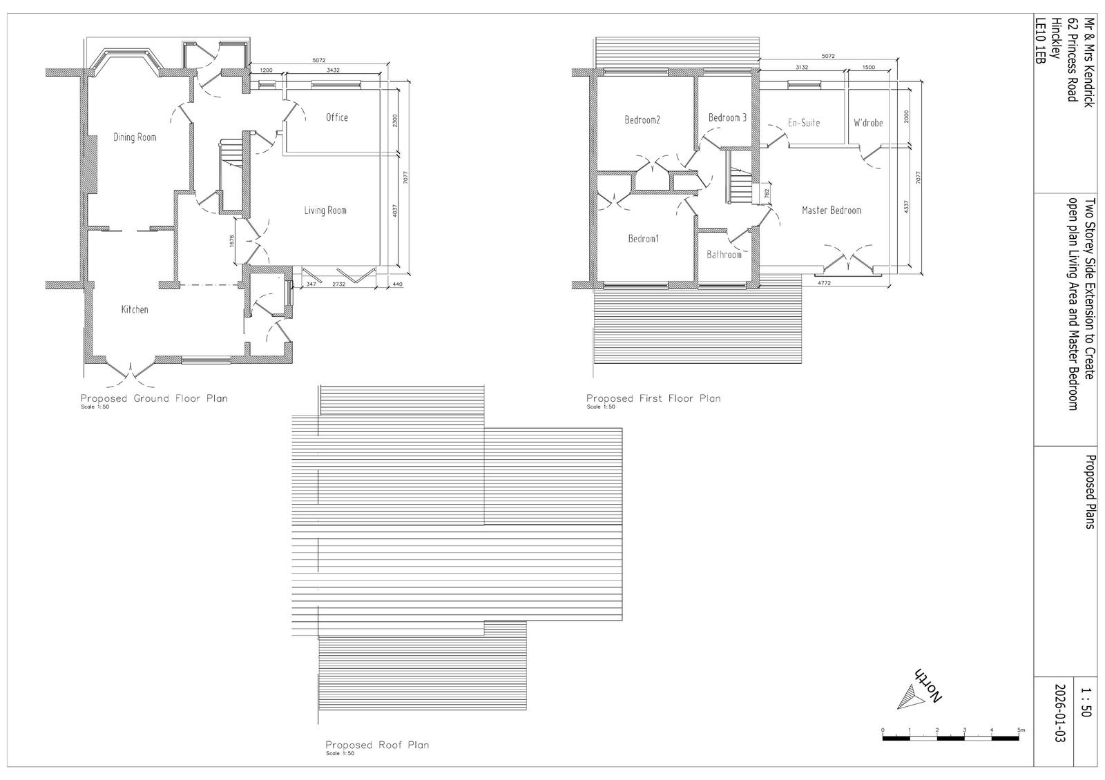
Demolition of the existing detached garage and erection of a two storey side extension.

Documents

1APP Public Form
Archived · Original link
Additional Plan
Archived · Original link
Development Control Plans
Archived · Original link
Additional Plan
Archived · Original link
Additional Plan
Archived · Original link

Have your say

Your comment matters. Councils must consider every representation that raises material planning considerations.

Write a comment