← Hinckley & Bosworth Borough Council

Status

Awaiting decision House extension
Received
Last month
New homes
0

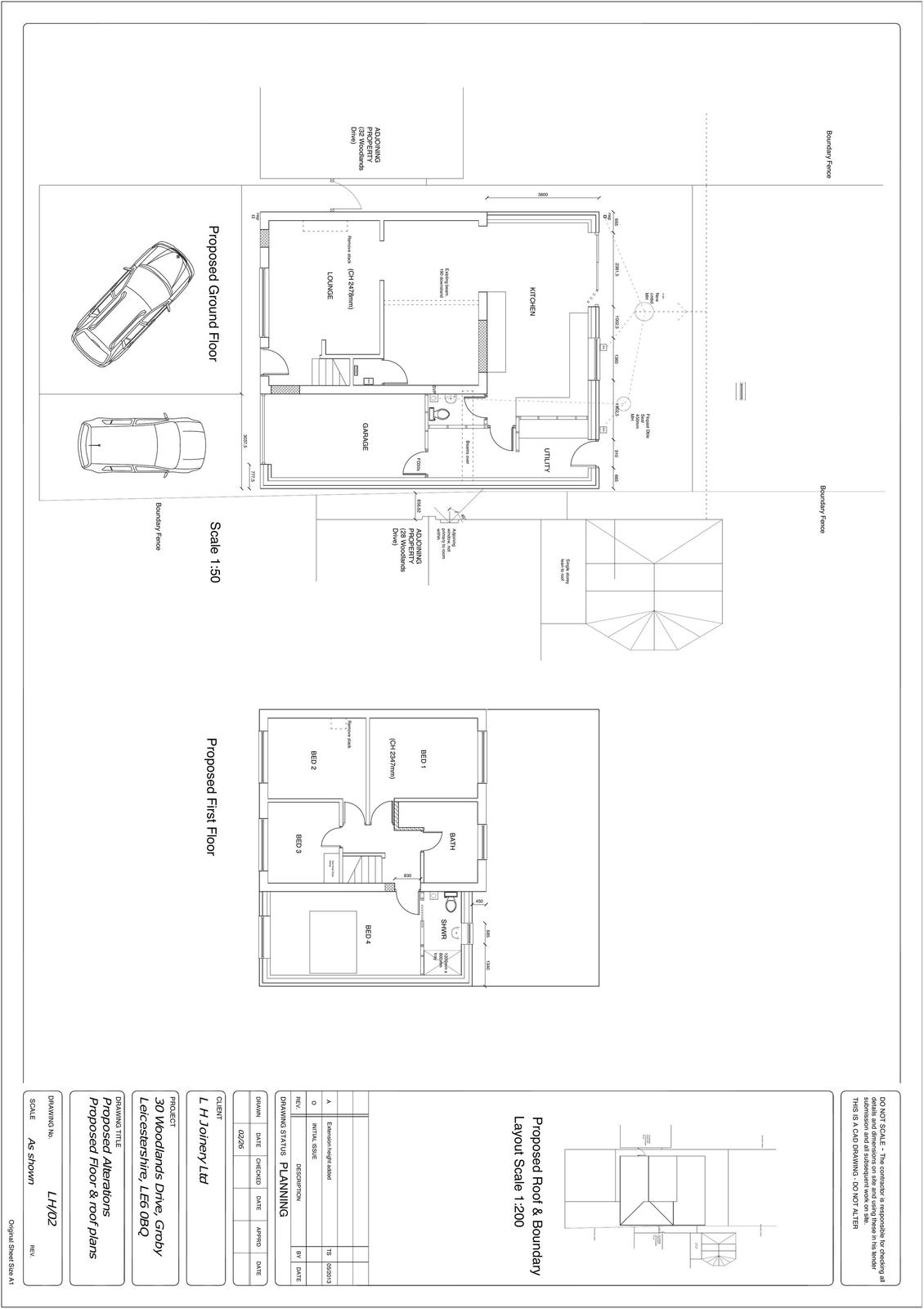
Full proposal

Erection of a two storey side extension and single storey rear extension

Documents

Block Plan
Archived · Original link
Development Control Plans
Archived · Original link
Development Control Plans
Archived · Original link
Development Control Plans
Archived · Original link
Site Location Plans
Archived · Original link

Have your say

Your comment matters. Councils must consider every representation that raises material planning considerations.

Write a comment