← Hinckley & Bosworth Borough Council
26/00203/HOU
Hinckley & Bosworth Borough Council
Status
Awaiting decision
House extension
Received
Last month
New homes
0
Full proposal
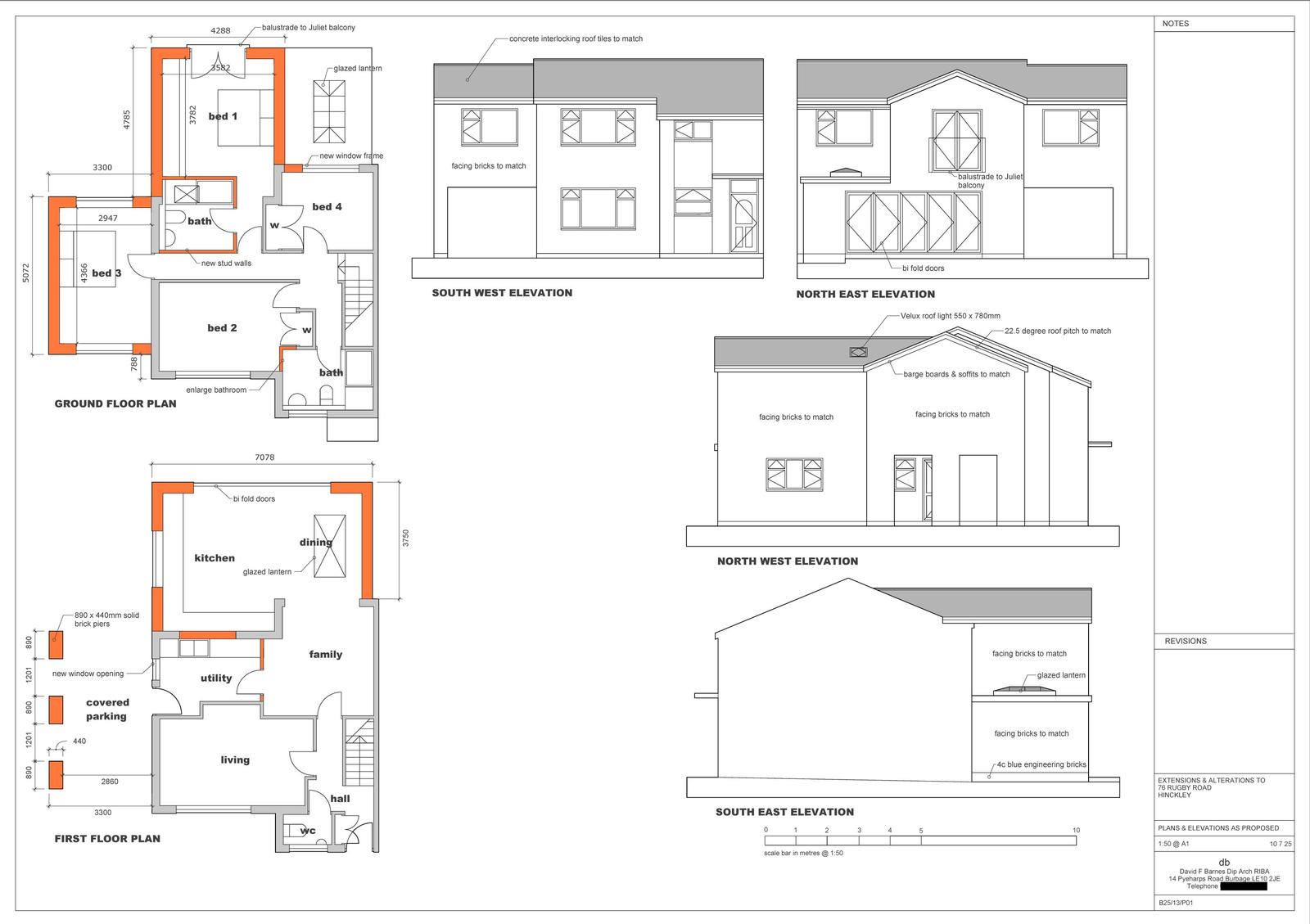
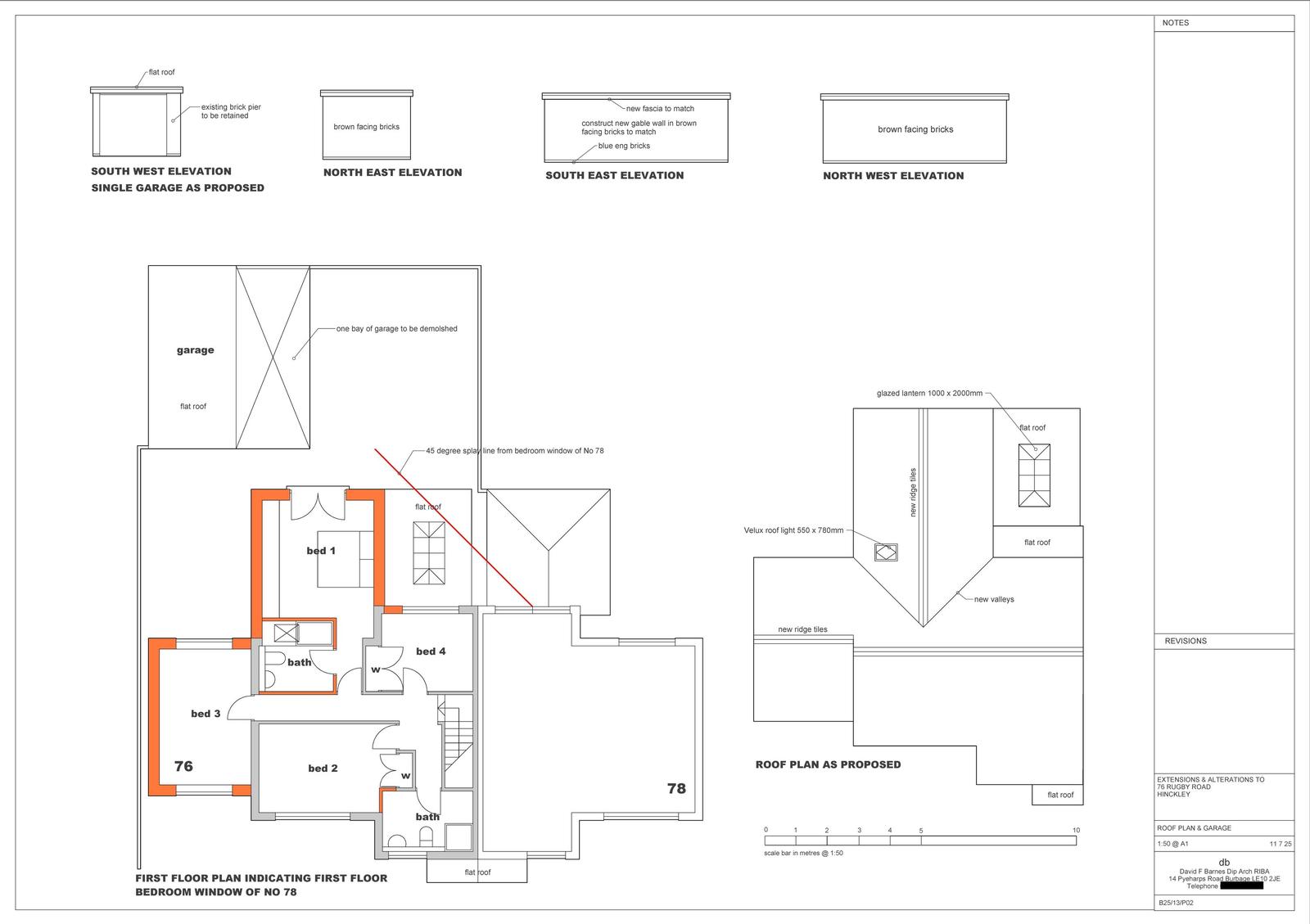
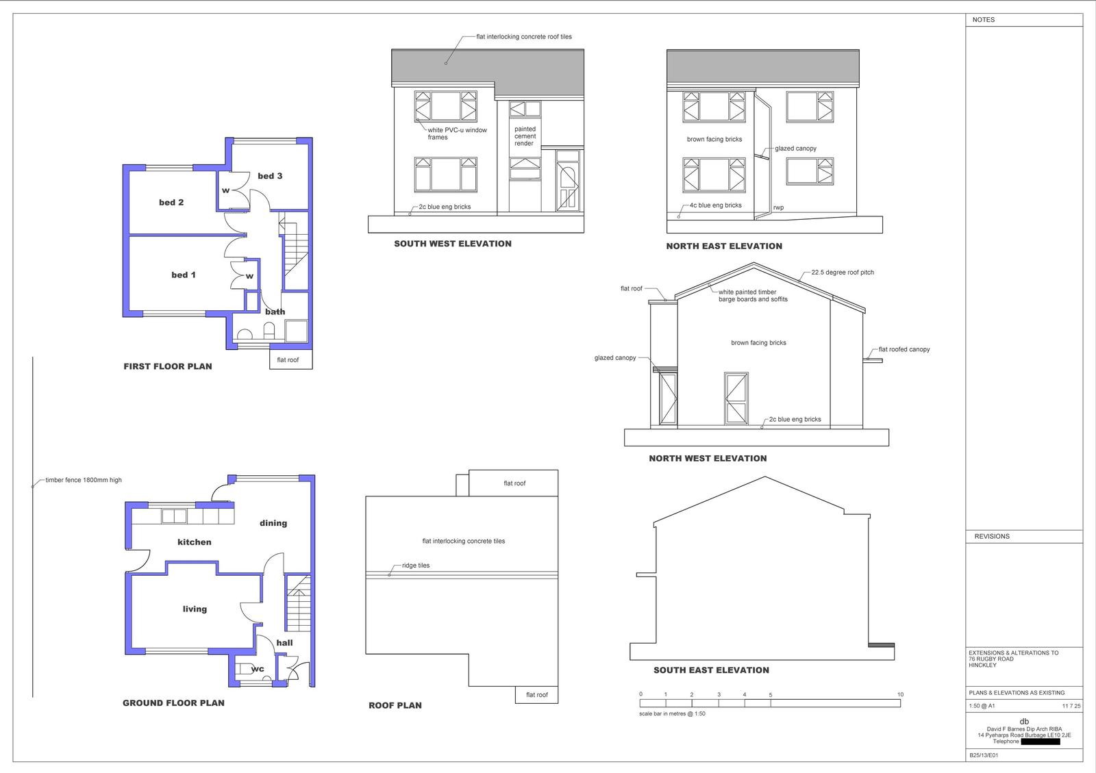
Part demolition of the existing double garage and the addition of a car port. Erection of a first floor side extension over a covered parking bay, a single and two storey rear extension.
Documents
Development Control Plans
Archived
· Original link
Development Control Plans
Archived
· Original link
Development Control Plans
Archived
· Original link
Development Control Plans
Archived
· Original link
Have your say
Your comment matters. Councils must consider every representation that raises material planning considerations.