← Hinckley & Bosworth Borough Council
26/00214/HOU
Hinckley & Bosworth Borough Council
Status
Awaiting decision
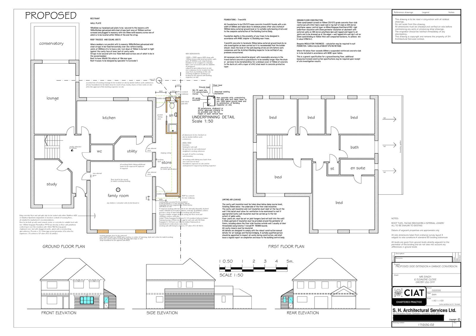
House extension
Received
Last month
New homes
0
Full proposal
Erection of a single storey side extension and garage conversion
Documents
Development Control Plans
Archived
· Original link
Development Control Plans
Archived
· Original link
Have your say
Your comment matters. Councils must consider every representation that raises material planning considerations.