← Hinckley & Bosworth Borough Council

Status

Awaiting decision Listed building
Received
Last month
New homes
0

Full proposal

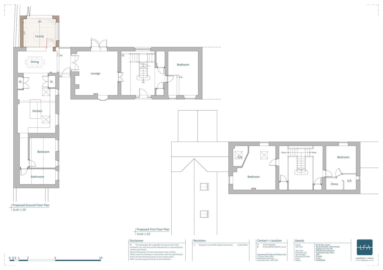
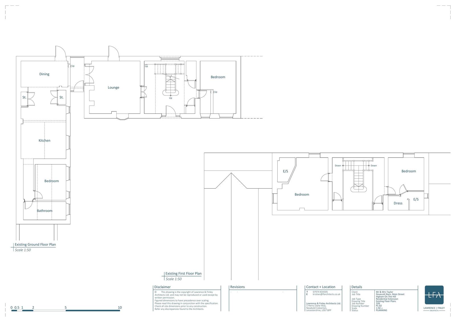
Installation of four conservation style roof lights, demolition of rear wall and a single storey rear extension. Alteration of existing single rear door to double door (revised scheme of 25/00767/LBC)

Documents

Development Control Plans
Archived · Original link
Development Control Plans
Archived · Original link
Development Control Plans
Archived · Original link
Development Control Plans
Archived · Original link

Have your say

Your comment matters. Councils must consider every representation that raises material planning considerations.

Write a comment