← Horsham District Council

Status

Registered New housing
Received
16 Dec 2025
New homes
1

Full proposal

Erection of a self-build dwelling with associated landscaping

Documents

APPLICATION FORM
Application form
Not yet archived · Original link
CIL
CIL Additional Info Form
Not yet archived · Original link
DESIGN AND ACCESS STATEMENT
Design and Access Statement
Not yet archived · Original link
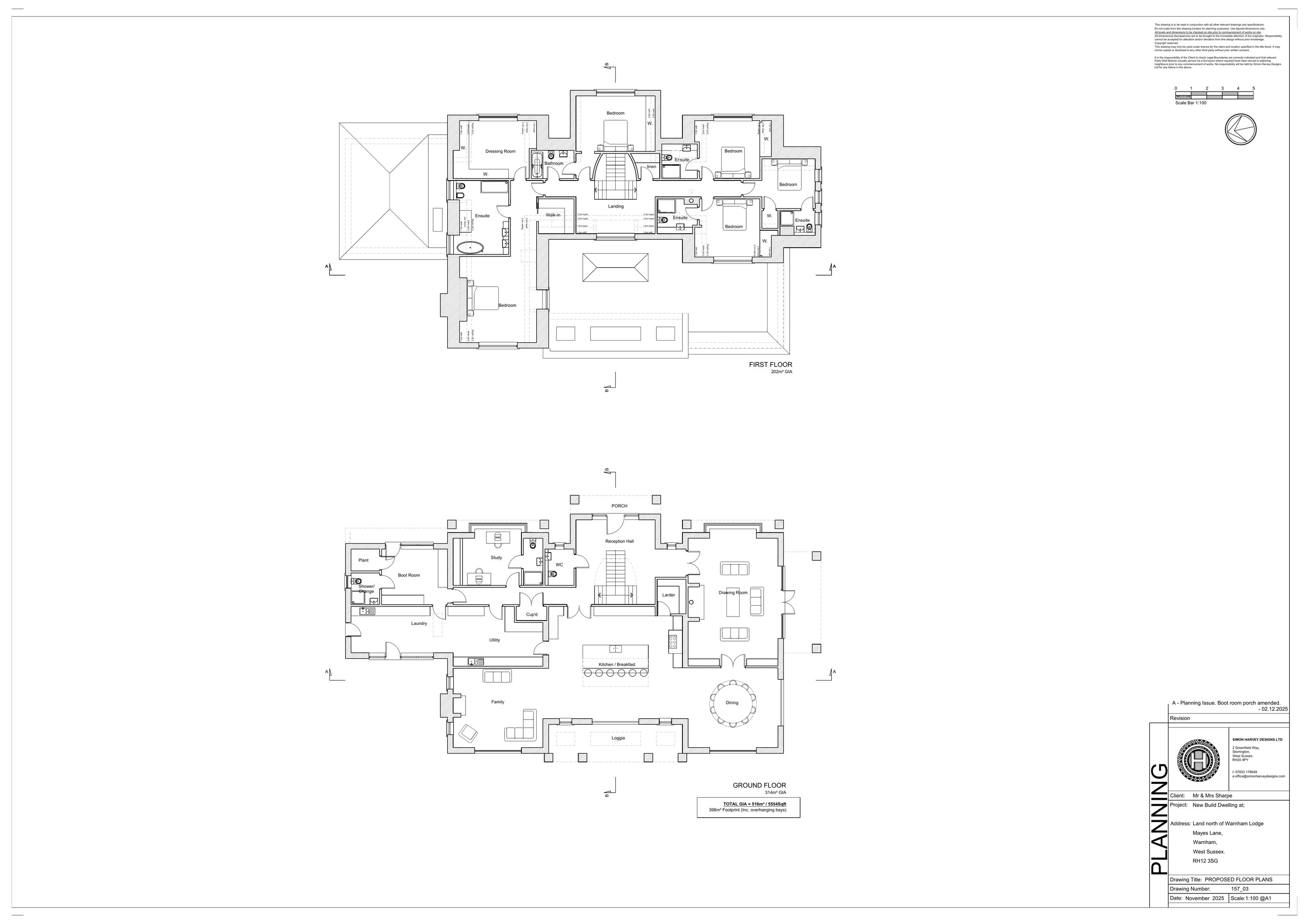
Latest plan
Archived · Original link
FLOOD RISK ASSESSMENT AND OUTLINE SURFACE WATER DRAINAGE STRATEGY: 73515, REV 1
Supporting statement
Not yet archived · Original link
LANDSCAPE DESIGN STRATEGY: LAR2518-LAN-REP-0310, REV P02
Supporting statement
Not yet archived · Original link
LOCATION PLAN: 157-01
Latest plan
Not yet archived · Original link
MATERIAL SCHEDULE: 157_07
Latest plan
Not yet archived · Original link
PLANNING STATEMENT
Supporting statement
Not yet archived · Original link
PRELIMINARY ECOLOGICAL APPRAISAL: RVS150625, REV 01
Supporting statement
Not yet archived · Original link
PROPOSED BLOCK PLAN: 157-02
Latest plan
Not yet archived · Original link
PROPOSED ELEVATIONS: 157-05
Latest plan
Not yet archived · Original link
PROPOSED LANDSCAPE PLAN: 0901, REV P02
Latest plan
Not yet archived · Original link
PROPOSED ROOF PLAN: 157-04
Latest plan
Not yet archived · Original link
PROPOSED SECTIONS: 157-08
Latest plan
Not yet archived · Original link
Site Notice
Site Notice
Not yet archived · Original link
SOUTHERN WATER RESPONSE
Consultation Response
Not yet archived · Original link
TREE SURVEY AND ARBORICULTURAL IMPACT ASSESSMENT: 26/01/06/NH, REV 1.0
Supporting statement
Not yet archived · Original link

Have your say

Your comment matters. Councils must consider every representation that raises material planning considerations.

Write a comment