← Horsham District Council

Status

Registered House extension
Received
13 Jan 2026
New homes
0

Full proposal

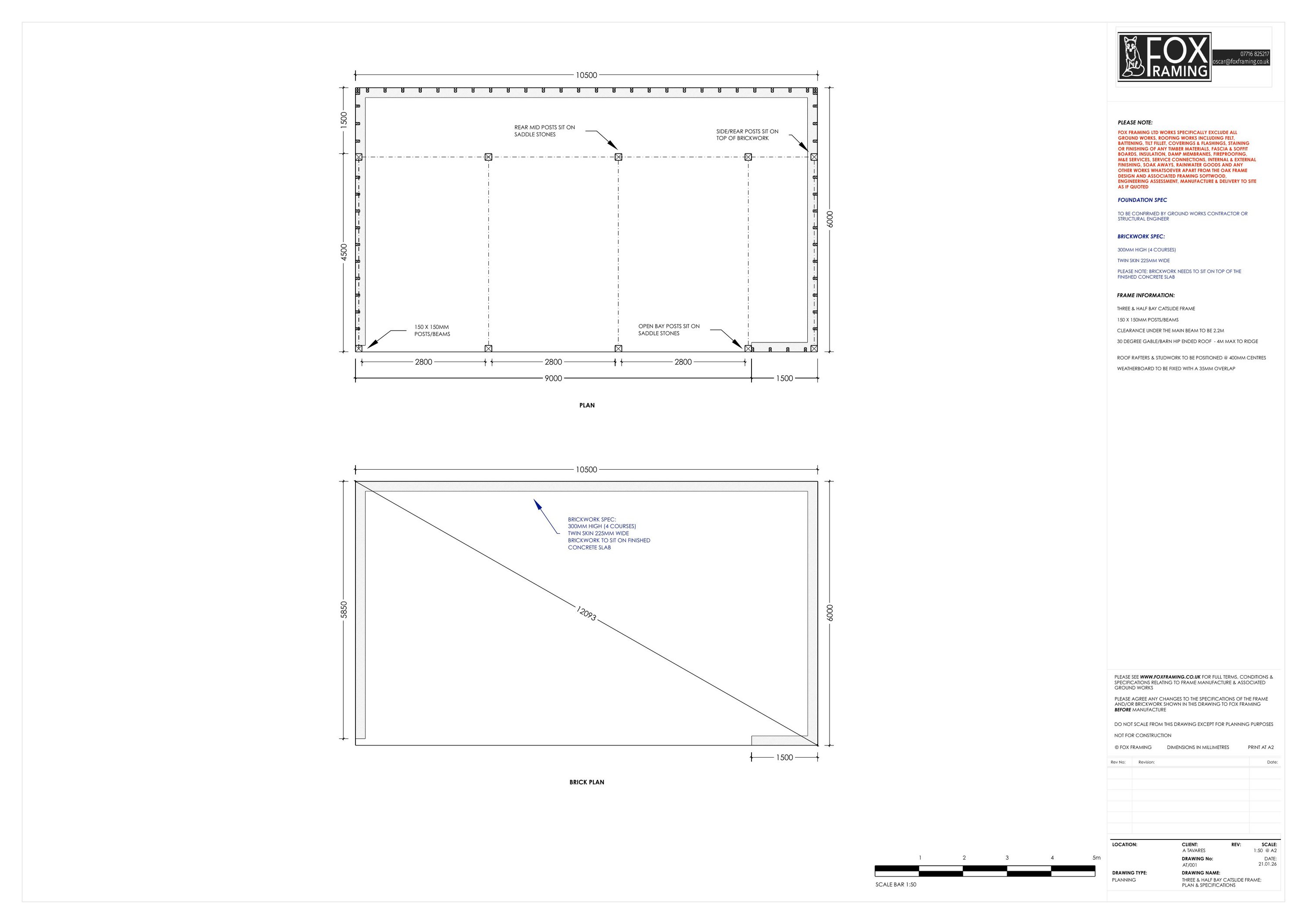
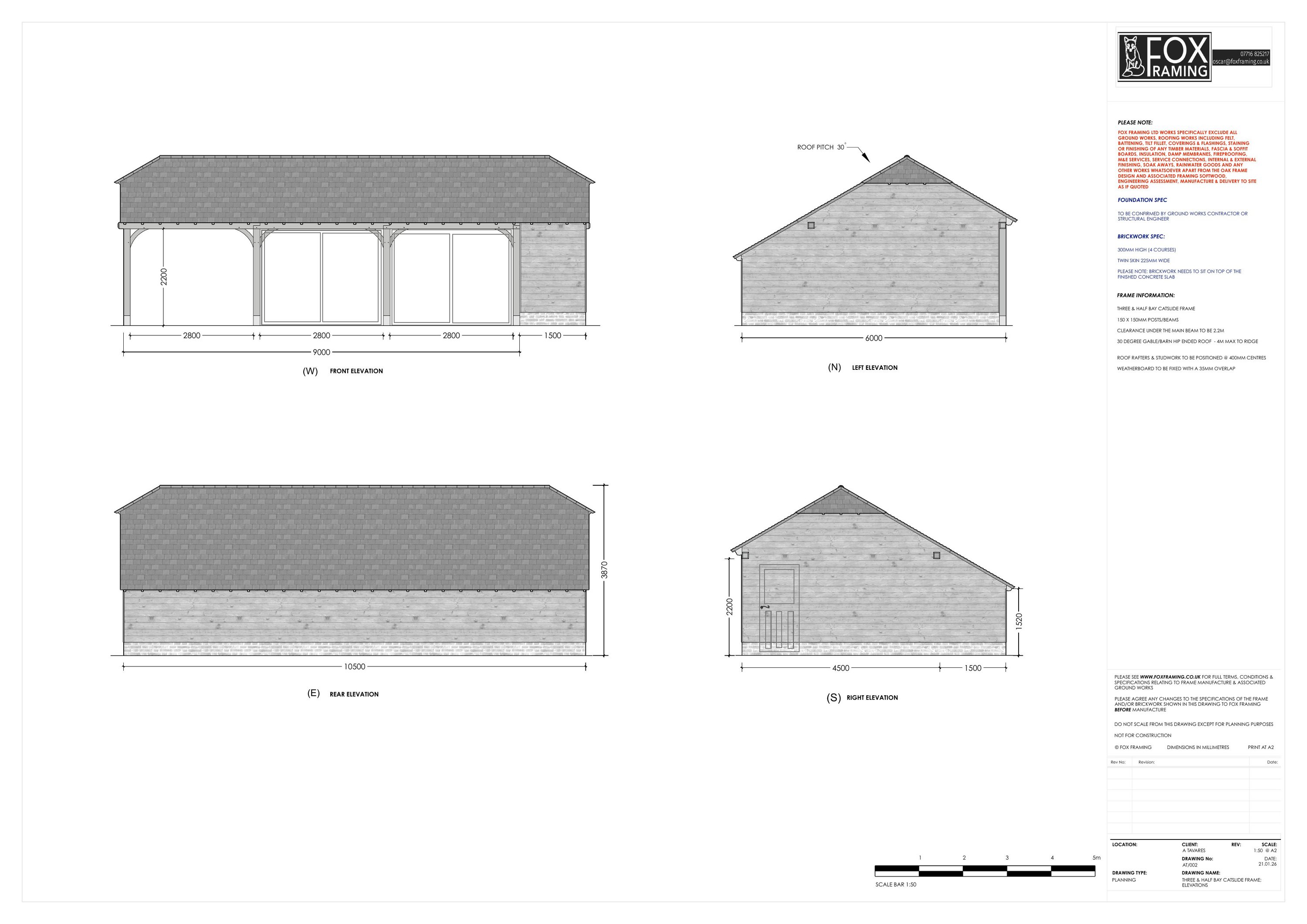
Erection of detached oak framed garage and conversion of existing integral garage to study/hobbyroom

Documents

Photograph - Applicant Provided
Archived · Original link
Application form
Archived · Original link
CIL
CIL Additional Info Form
Archived · Original link
Latest plan
Archived · Original link
Consultation Response
Archived · Original link
Latest plan
Archived · Original link
Latest plan
Archived · Original link
Consultation Response
Archived · Original link
Supporting statement
Archived · Original link

Have your say

Your comment matters. Councils must consider every representation that raises material planning considerations.

Write a comment