← Horsham District Council

Status

Awaiting decision House extension
Received
15 Jan 2026
New homes
0

Full proposal

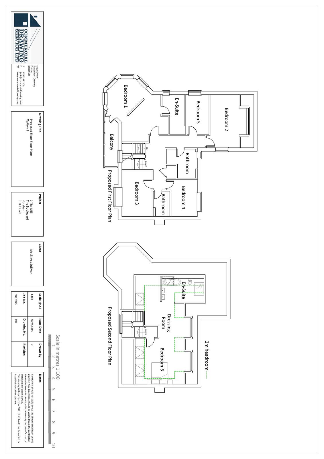
Loft conversion with 2 dormers to rear elevation, 1 dormer and 3 rooflights to front elevation, and 1 rooflight to side elevation.

Documents

Latest plan
Archived · Original link
Latest plan
Archived · Original link
Latest plan
Archived · Original link
Latest plan
Archived · Original link
Latest plan
Archived · Original link
Latest plan
Archived · Original link
Latest plan
Archived · Original link

Have your say

Your comment matters. Councils must consider every representation that raises material planning considerations.

Write a comment