← Horsham District Council

Status

Registered Change of use
Received
26 Jan 2026
New homes
0

Full proposal

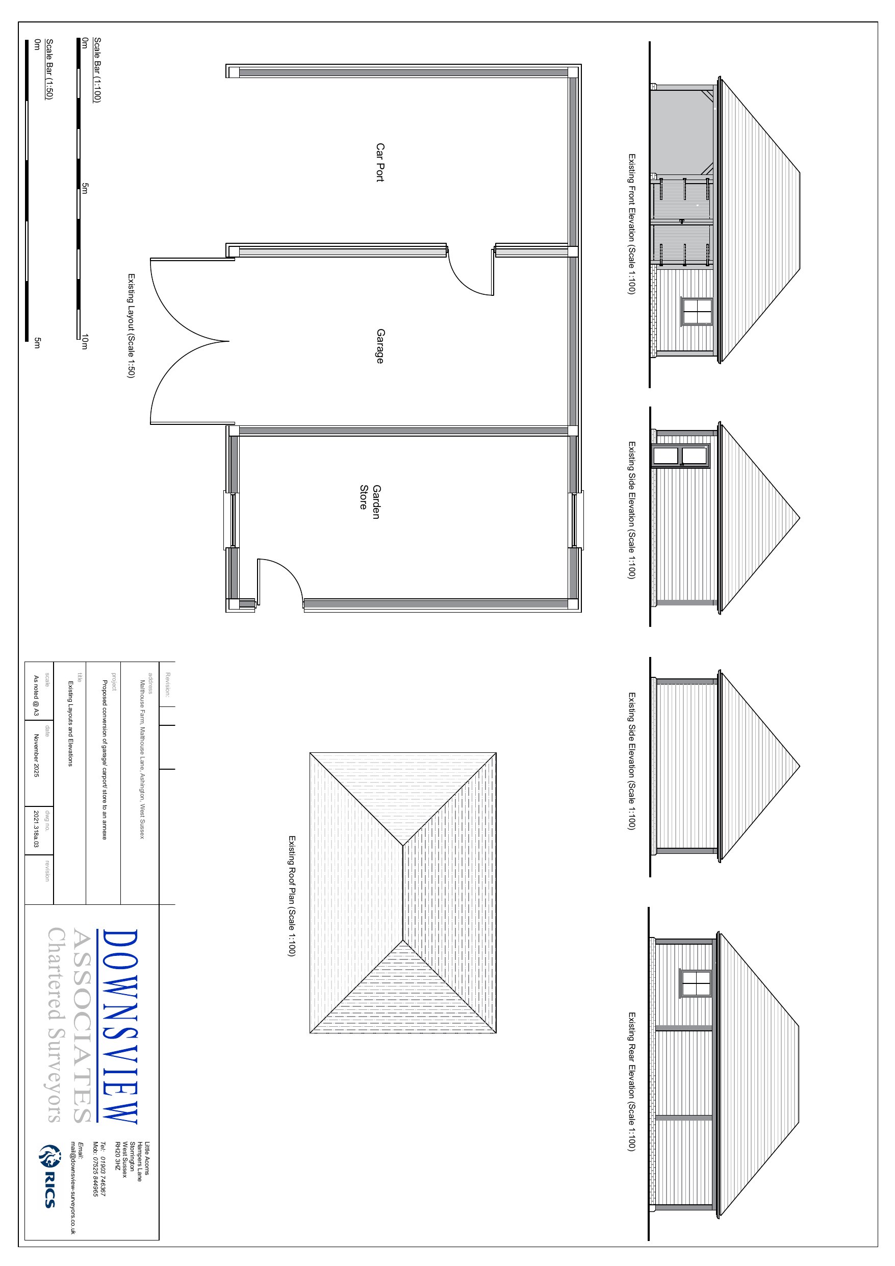
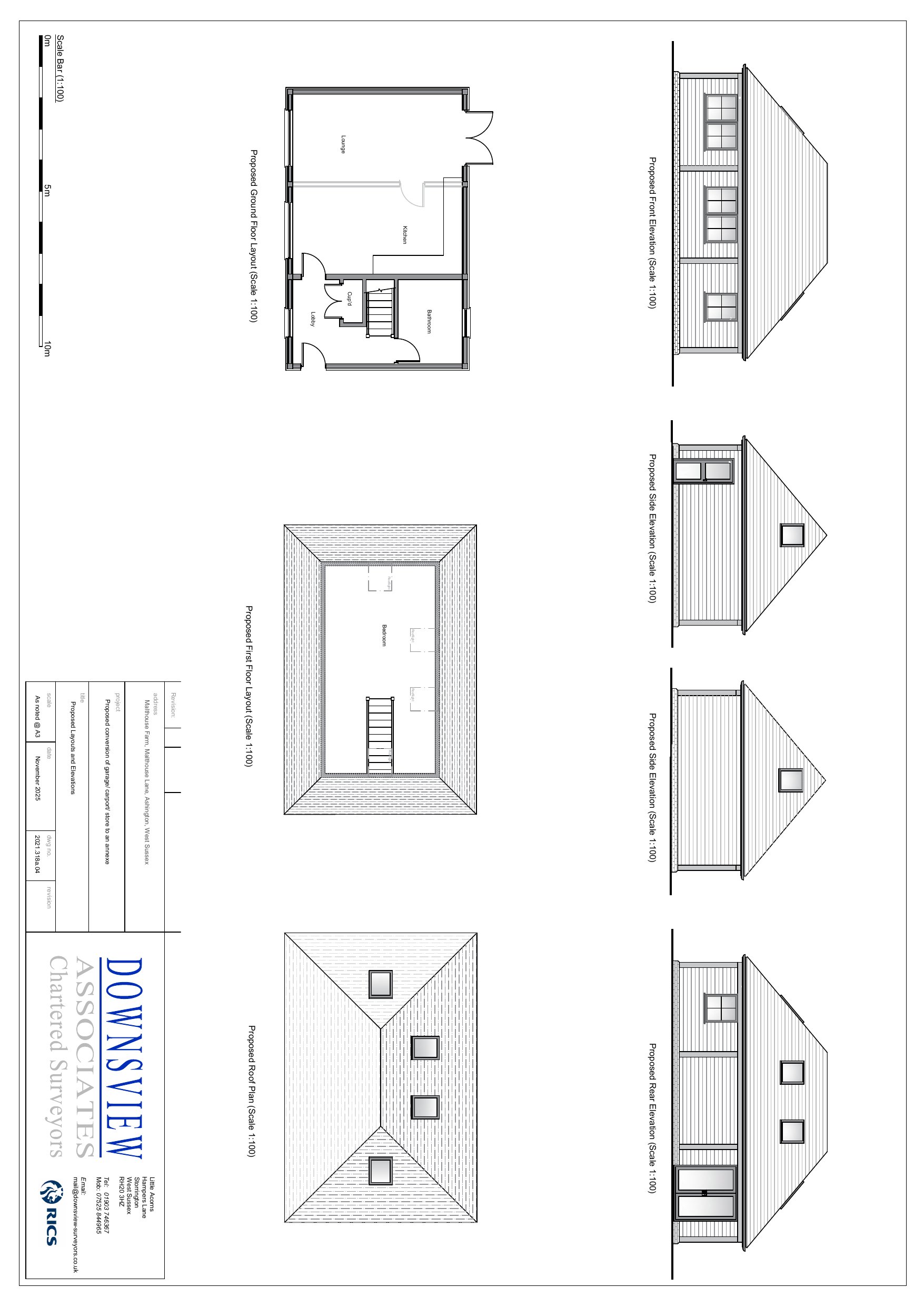
Conversion of existing garage into a one bedroom annexe.

Documents

Application form
Archived · Original link
CIL Additional Info Form
Archived · Original link
Consultation Response
Archived · Original link
Representation letter
Archived · Original link
Supporting statement
Archived · Original link
Latest plan
Archived · Original link
Supporting statement
Archived · Original link
Site Notice
Archived · Original link
Consultation Response
Archived · Original link
Representation letter
Archived · Original link
Representation letter
Archived · Original link
Representation letter
Archived · Original link

Have your say

Your comment matters. Councils must consider every representation that raises material planning considerations.

Write a comment