← Horsham District Council

Status

Registered House extension
Received
30 Jan 2026
New homes
0

Full proposal

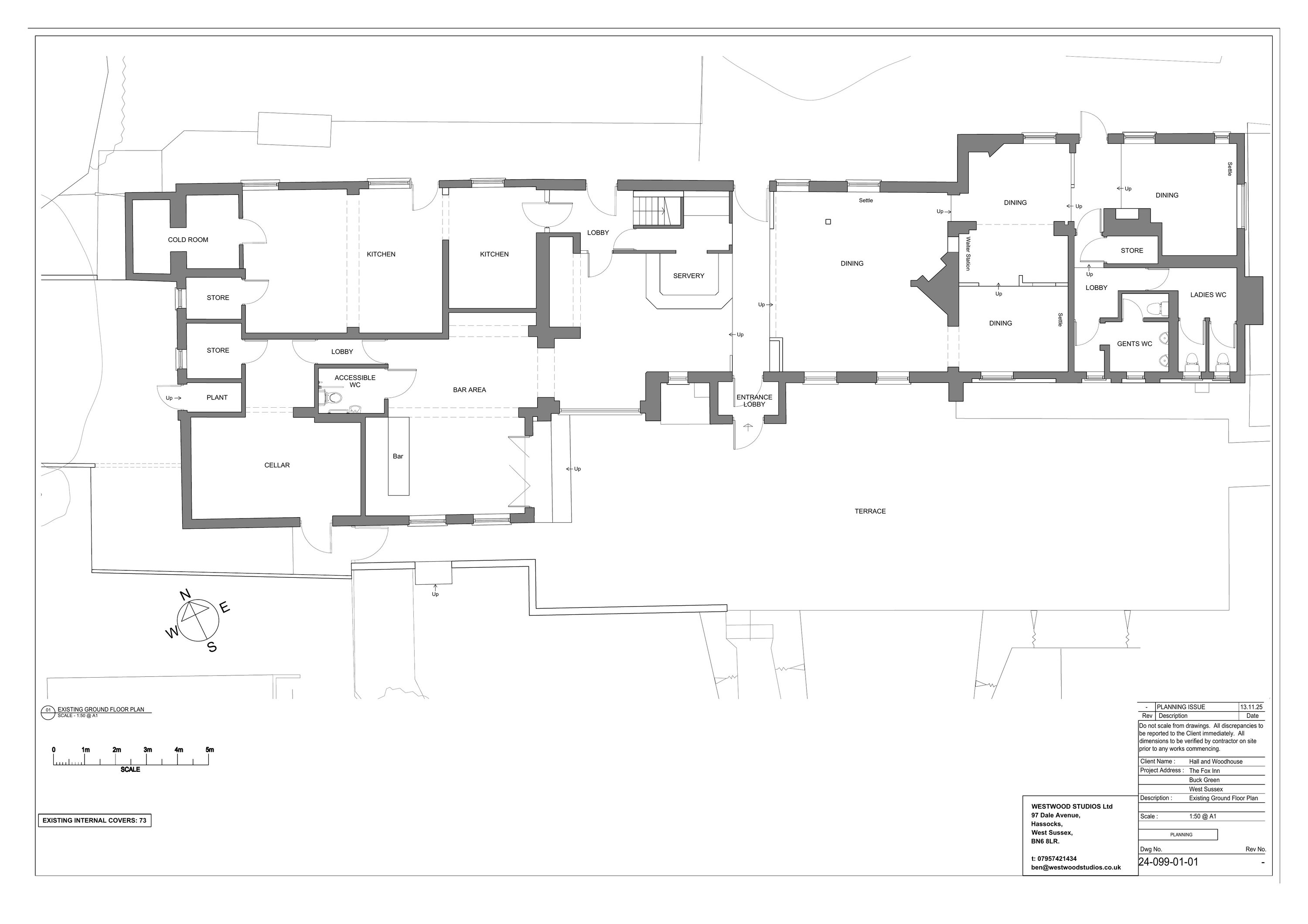
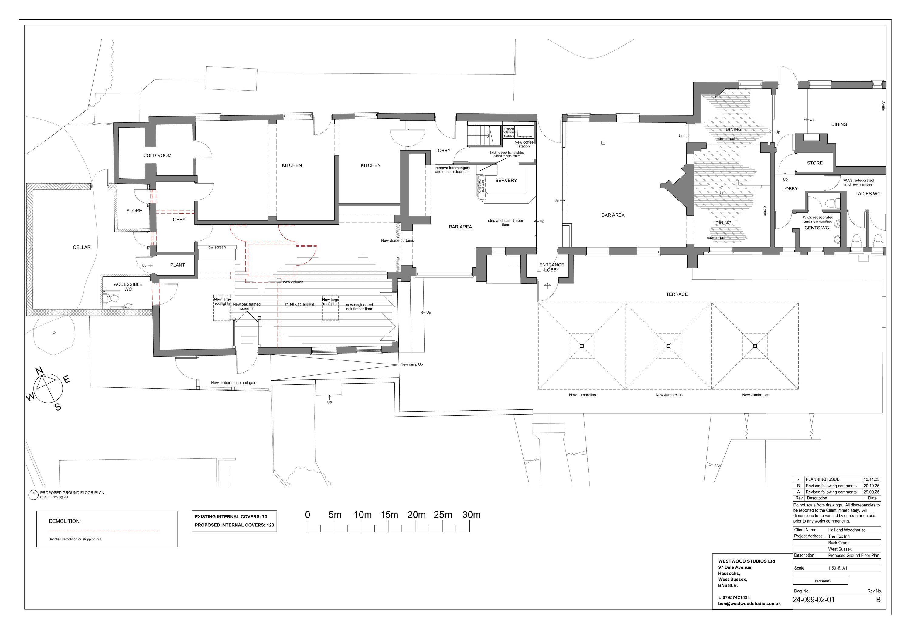
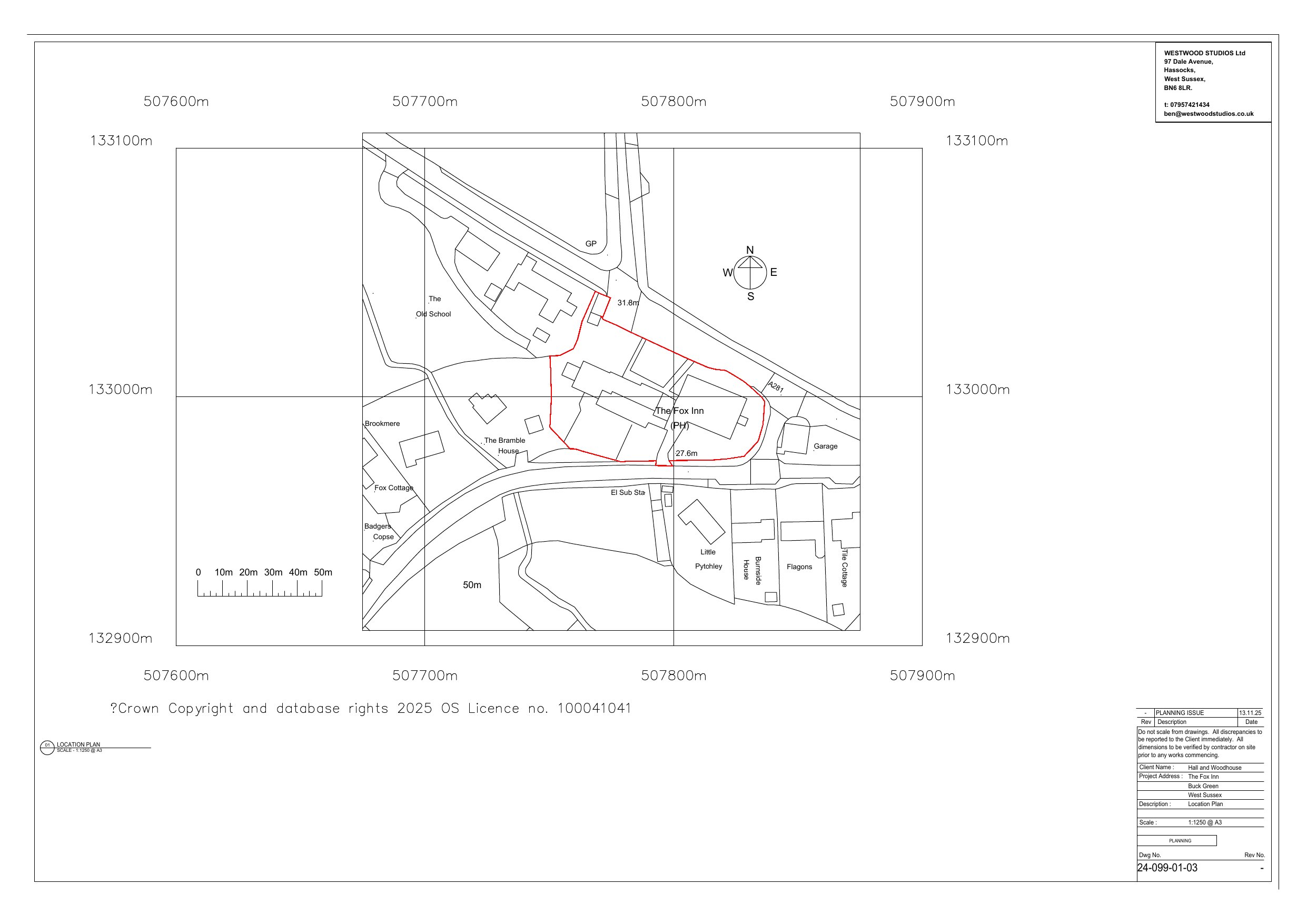
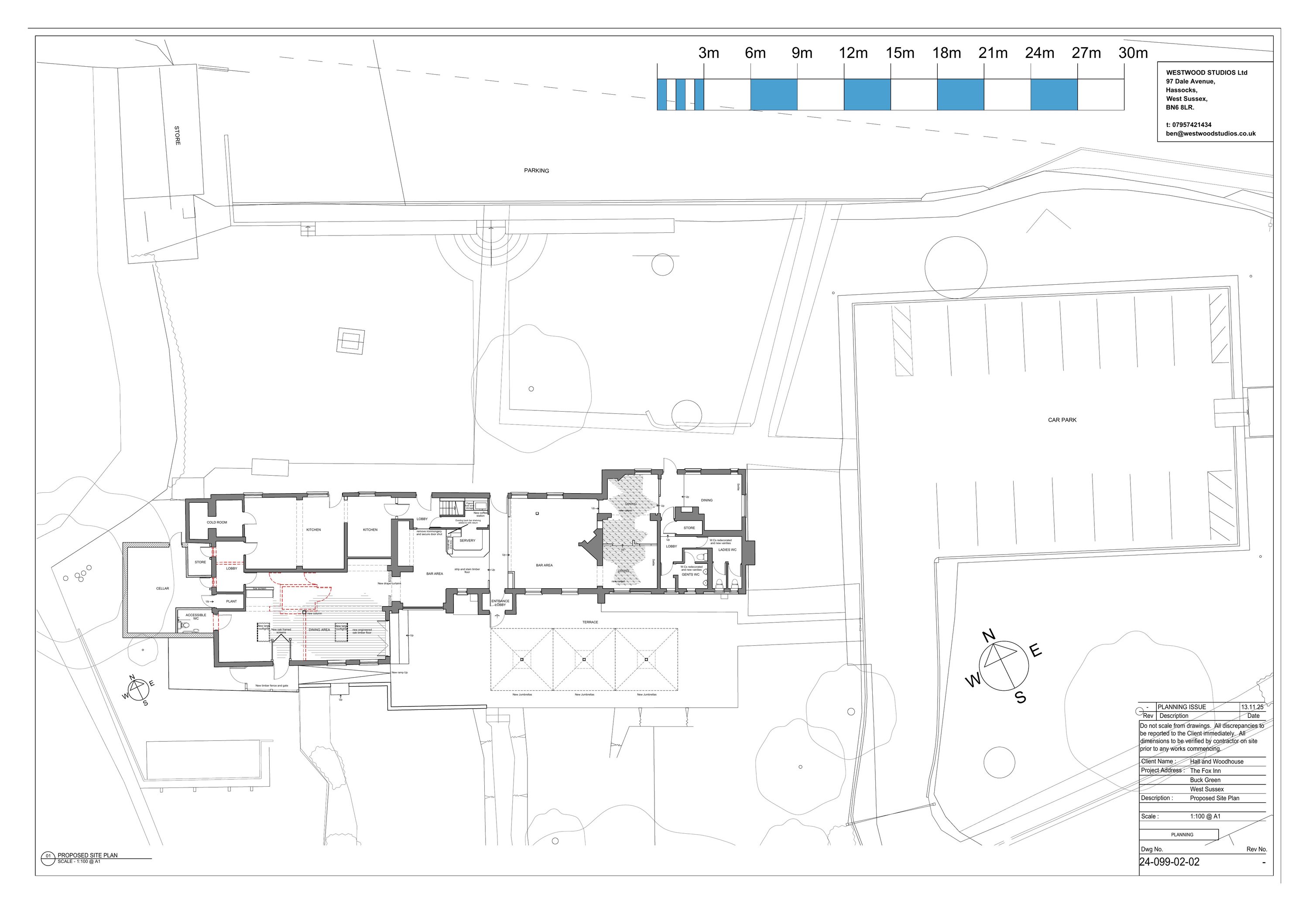
Erection of a single storey side extension, and internal and external alterations. (Full Application).

Have your say

Your comment matters. Councils must consider every representation that raises material planning considerations.

Write a comment