← Horsham District Council

Status

Registered New housing
Received
04 Feb 2026
New homes
1

Full proposal

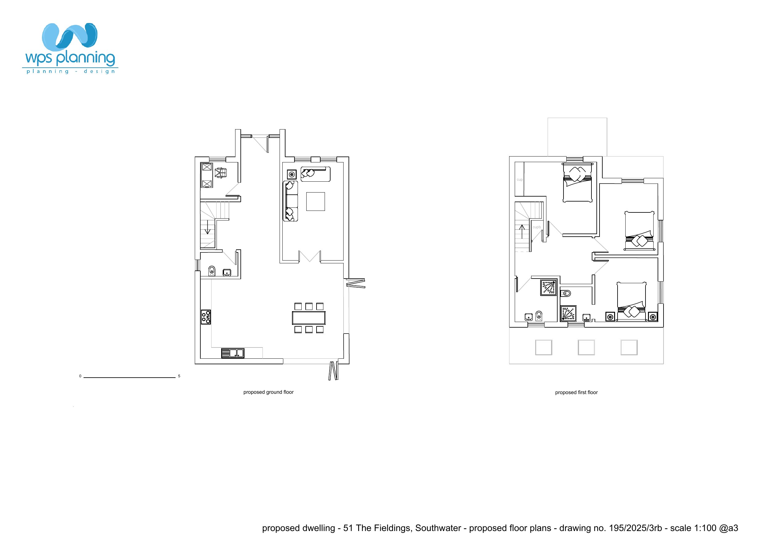
Erection of 1no dwellinghouse

Documents

APPLICATION FORM
Application form
Not yet archived · Original link
CIL
CIL Additional Info Form
Not yet archived · Original link
PLANNING STATEMENT: 195/2025
Supporting statement
Not yet archived · Original link
PROPOSED ELEVATIONS: 195/2025/4ra
Latest plan
Not yet archived · Original link
PROPOSED PARKING AND TURNING PLAN: 195/2025/6
Latest plan
Not yet archived · Original link
PROPOSED SITE LAYOUT PLAN: 195/2025/2
Latest plan
Not yet archived · Original link
PROPOSED VISABILITY SPLAYS: 195/2025/5
Latest plan
Not yet archived · Original link

Have your say

Your comment matters. Councils must consider every representation that raises material planning considerations.

Write a comment