← Horsham District Council

Status

Registered House extension
Received
Last month
New homes
0

Full proposal

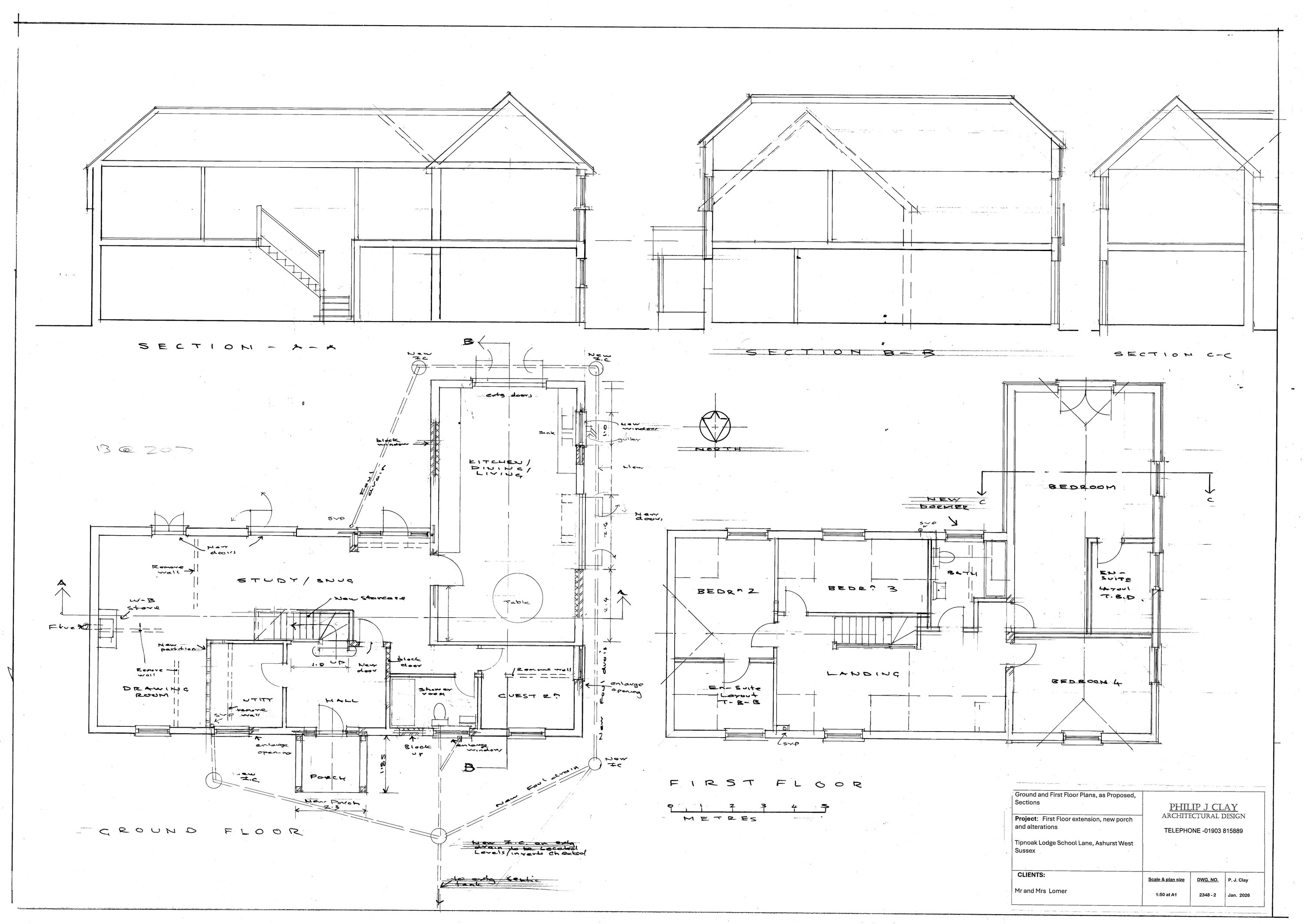
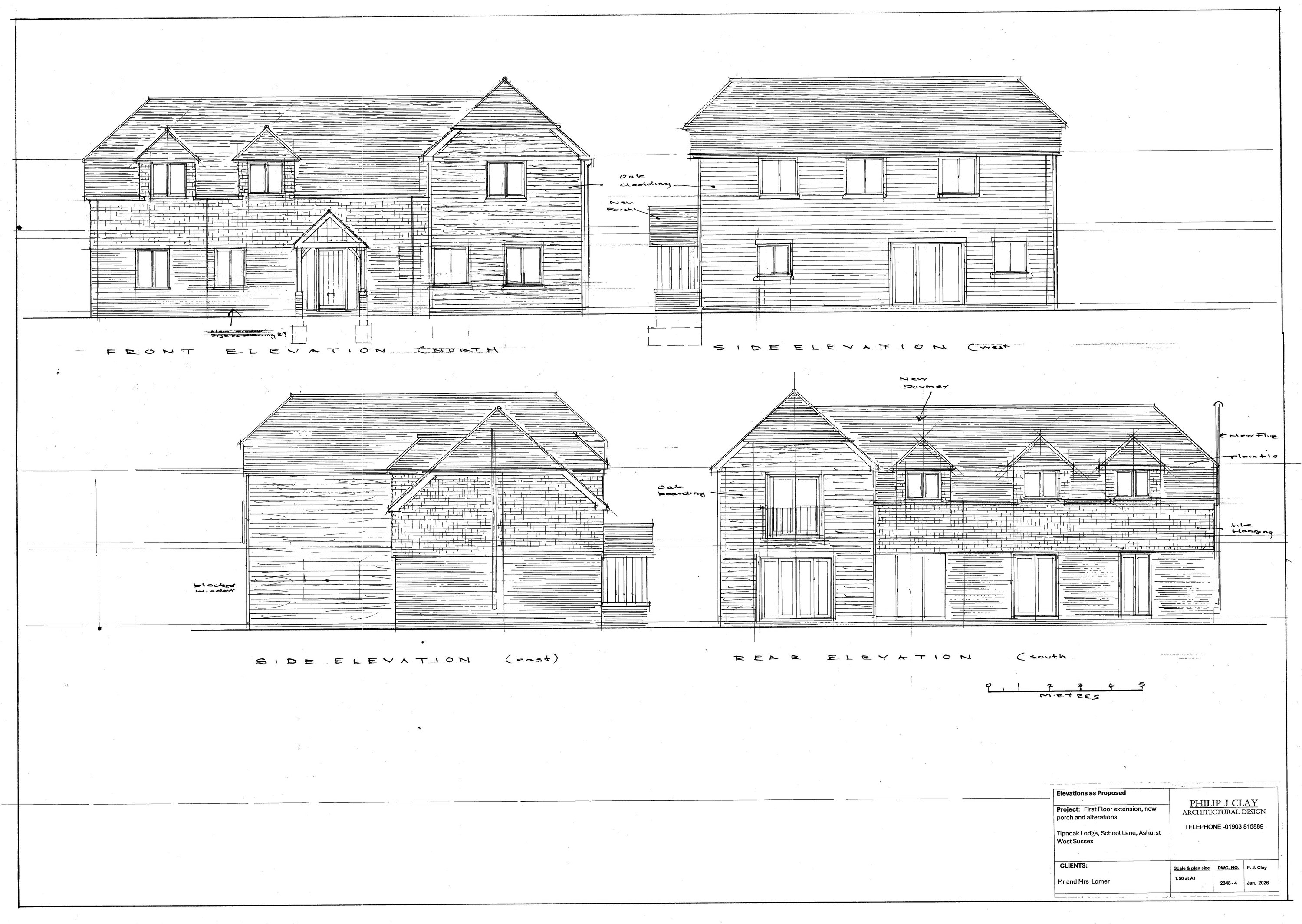
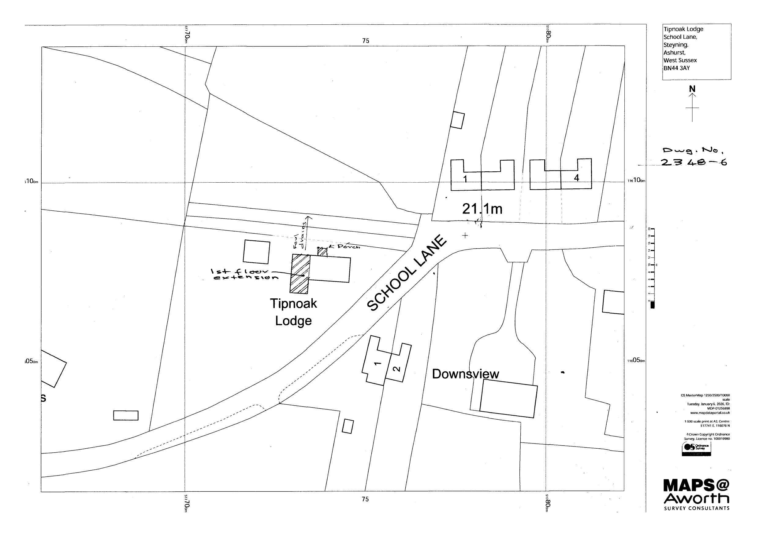
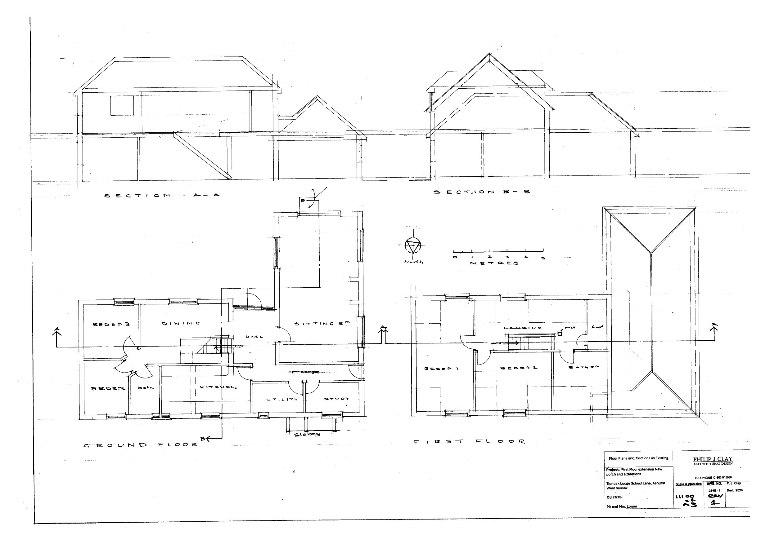
Erection of a first floor extension above existing ground floor, erection of a front porch, and installation of windows.

Documents

Application form
Archived · Original link
Latest plan
Archived · Original link
CIL Additional Info Form
Archived · Original link
Supporting statement
Archived · Original link
Latest plan
Archived · Original link
Photograph - Applicant Provided
Archived · Original link
Latest plan
Archived · Original link

Have your say

Your comment matters. Councils must consider every representation that raises material planning considerations.

Write a comment