← Horsham District Council

Status

Registered House extension
Received
Last month
New homes
0

Full proposal

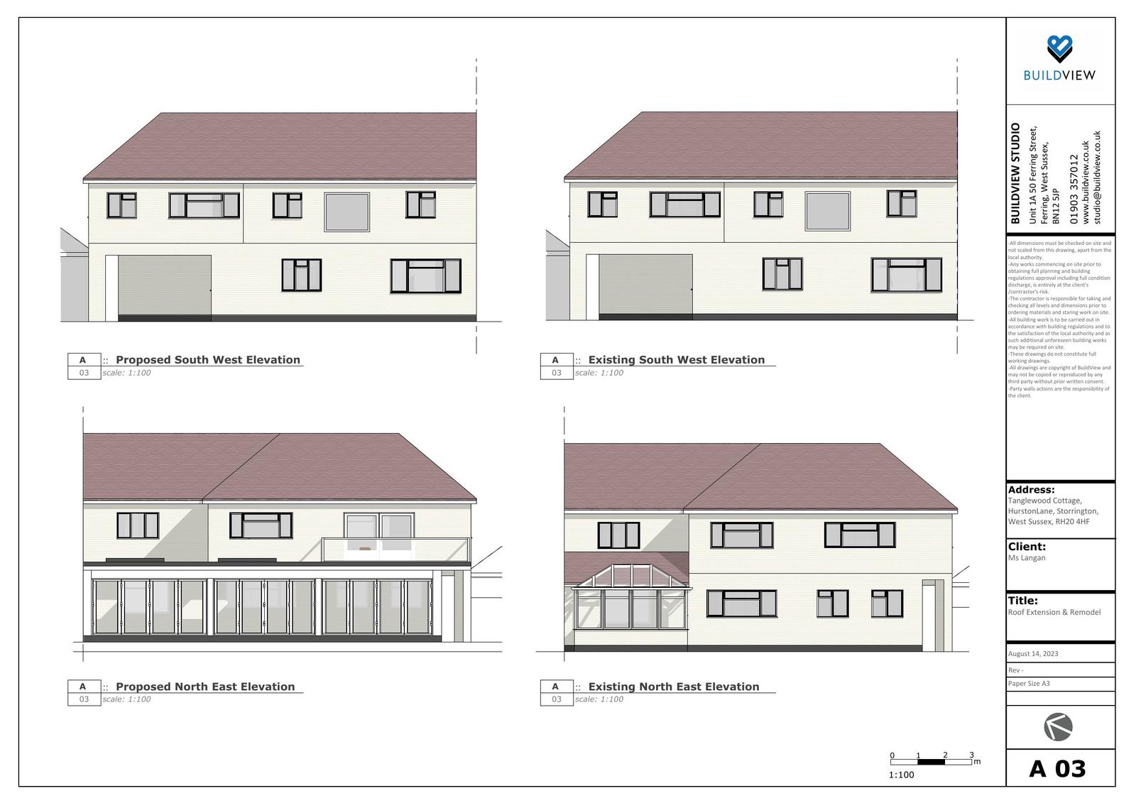
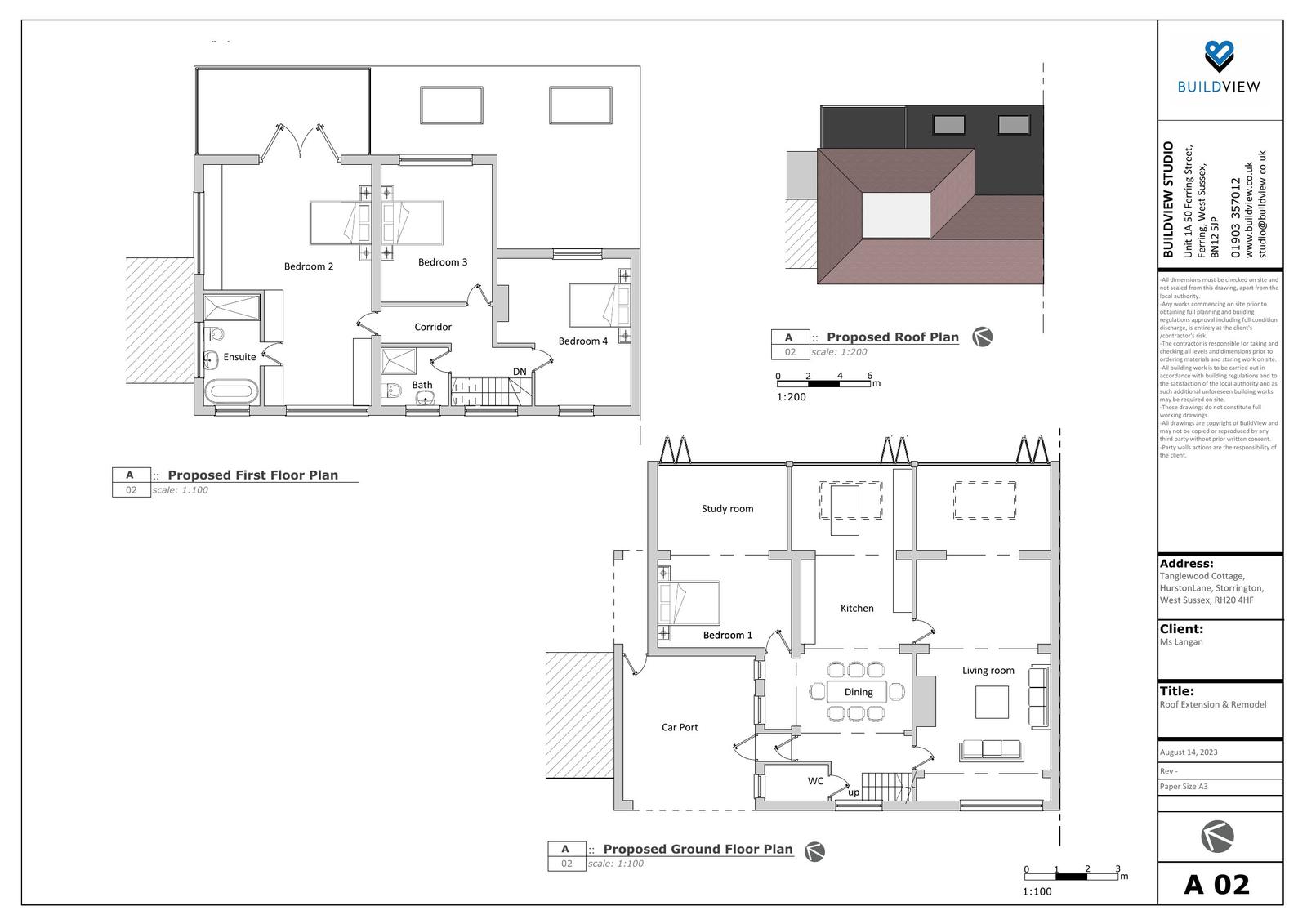
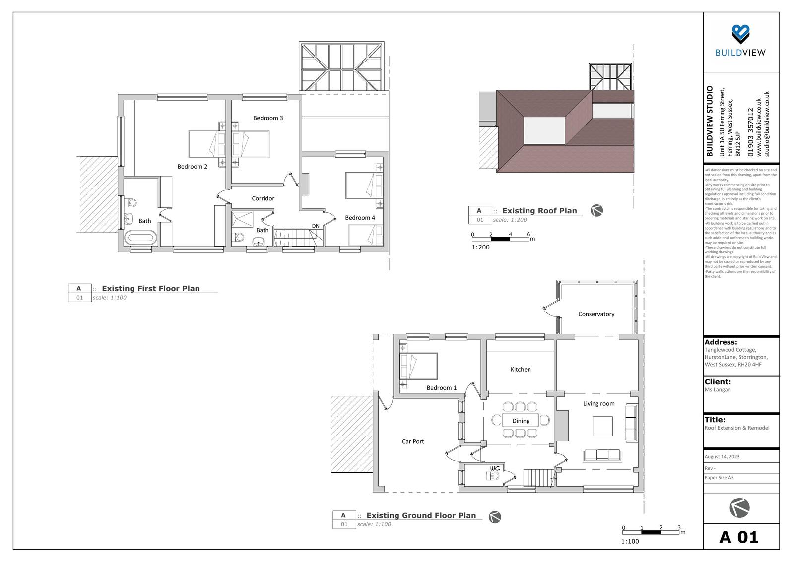
Erection of a first floor side and rear extension over existing car port and a single storey rear extension with roof terrace.

Have your say

Your comment matters. Councils must consider every representation that raises material planning considerations.

Write a comment