← Horsham District Council

Status

Registered House extension
Received
Last month
New homes
0

Full proposal

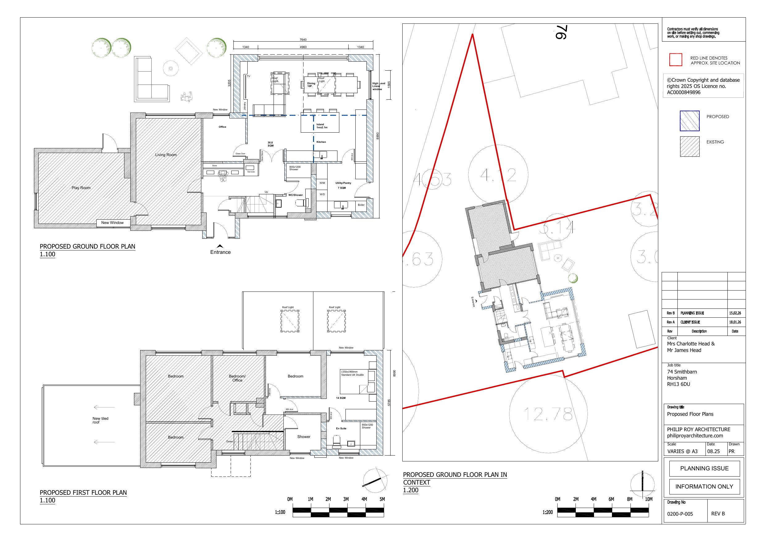
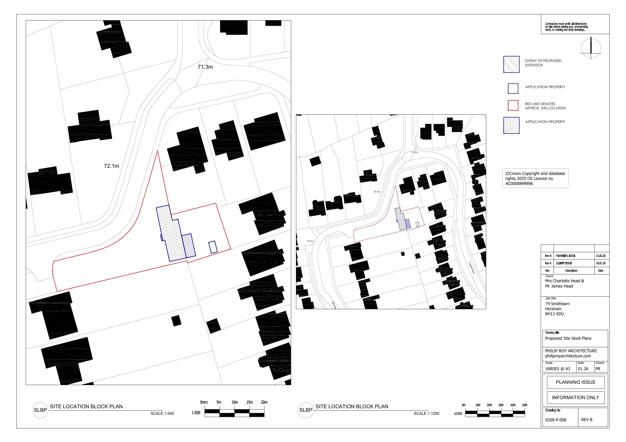
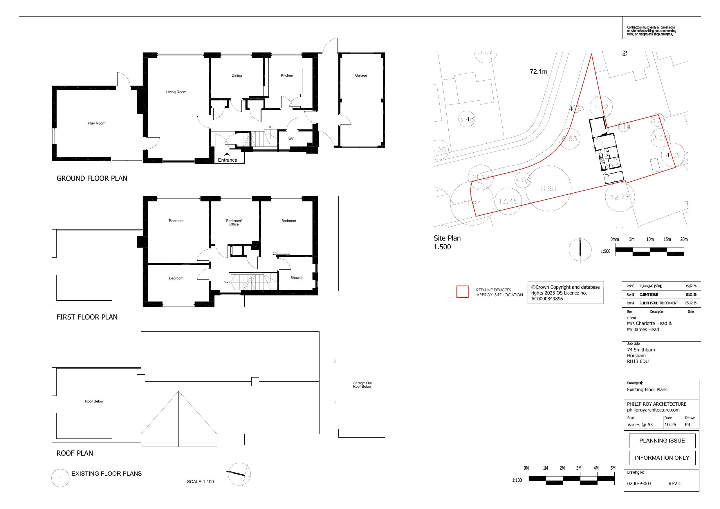
Erection of a two storey side extension, single storey rear extension and alterations to single-storey side extension.

Have your say

Your comment matters. Councils must consider every representation that raises material planning considerations.

Write a comment